Eladó jó állapotú ház Budapest II. kerület
| Kedvencbe | Megosztás | Árfigyelő |
| Kedvezményes lakáshitel ajánlatok | ||
| 165 000 000 HUF | ||
Ingatlan adatai
- Eladó vagy kiadó:Eladó
- Település:Budapest II. kerület
- Kategória:Ház
- Alkategória:Ikerház
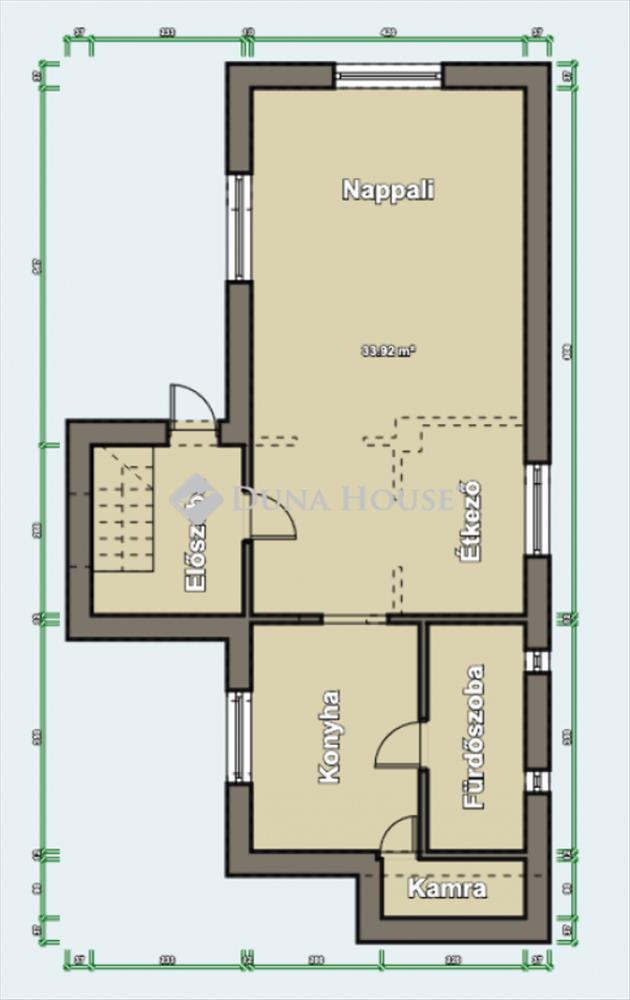
- Alapterület:93 m2
- Telekterület:501 m2
- Csere is:Nem
- Hirdető:Cég
- Élő videón megtekinthető:Nem
- Építés éve:1986
- Szobaszám:3
- Állapot:Jó állapotú
- Hány szintes az ingatlan:Földszintes
- Tetőtér:nincs megadva
- Komfortosság:nincs megadva
- Parkolási lehetőség:Udvaron
- Fűtés:Gáz (cirko)
- Bútorozottság:nincs megadva
- Fényviszony:Napfényes
- Tájolás:D
- Kilátás:nincs megadva
- Internet:nincs megadva
- Akadálymentesített:nincs megadva
- Energiatanúsítvány:nincs megadva
- Villany:Van
- Víz:Van
- Gáz:Van
- Csatorna:Van
- Üzenetküldés
- Hívás

Referencia szám: HZ044559

Hitel ajánlat
Ingatlan hirdetés leírása
Eladó ház, Budapest 2. ker.
Budapest ii/a kerület pesthidegkút Széphalom városrészében, zöldövezeti környezetben eladó egy, D_DNY-i fekvésű, 98 m²-es ikerház, amely ideális választás azoknak, akik nyugodt, természetközeli életre vágynak, viszont nem szeretnének távol maradni a város által nyújtott kényelmi szolgáltatásoktól sem. Az otthonban két hálószoba, tágas nappali, étkező, konyha és két fürdőszoba található, valamint egy hangulatos terasz, amely tavasztól télig alkalmat nyújt a meghitt családi és baráti együttlétekre. a 501 m²-es telek árnyékos kertje tökéletes családi programokhoz, nyáron pedig medence is felállítható. a fedett autóbeálló és a szerszámoskamra praktikus kényelmet nyújt, míg a 25 m²-es pince extra tárolóhelyet biztosít. Külső felújítás és hőszigetelés 2020-ban történt, a belső részek nagy felújítása pedig 2009-ben. a kert osztatlan közös tulajdon, de ügyvéd által ellenjegyzett használati megállapodás garantálja a zavartalan használatot. a kert teljesen elszeparált, kerítéssel elválasztva, és a háznak nincs utcafrontja, így többszörösen is biztosított a privát tér. a környék különlegessége a közeli nagy játszótér, valamint több iskola és óvoda, sportpálya, orvosi rendelő, uszoda és a Széphalom Üzletház minden adott a kényelmes családi élethez néhány 100 méteres körzetben, séta távolságra. Ha szeretne csendes, zöld környezetben élni, mégis közel maradni a városhoz, ez az otthon Önre vár, várom megtisztelő hívását.Amennyiben nem találta mg az Önnek megfelelő ingatlant, kérem keresse fel a https://luzsi-tatjana. Dh. Hu oldalt. Hitel.hu - Hasonlítsa össze a bankok lakáshitel ajánlatait
Tetszett ez az eladó Budapest II. kerületi jó állapotú 3 szobás ikerház? Hívd fel a hirdetőt most, és tudj meg mindent erről az eladó ikerházról! Ha gondolod nézelődj tovább az eladó ház Budapest II. kerület oldal hirdetései között. Ennek az eladó háznak az ára 165000000 Ft és mivel az alapterülete 93 négyzetméter, ezért az átlagos négyzetméterára 1774194 HUF/m2.
Az eladó ház menüpontban további hirdetések között is böngészhetsz. Ha van kedved, akkor böngészhetsz a Luzsi Tatjana összes hirdetése között, vagy akár a/az Duna House Ferenc tér összes hirdetése között is.

