Eladó új építésű ház - Budapest III. kerület
- INGYENES HIRDETÉS FELADÁS
Ingatlan adatai
- Eladó vagy kiadó:Eladó
- Település:Budapest III. kerület
- Kategória:Ház
- Alkategória:Ikerház
- Alapterület:160 m2
- Telekterület:400 m2
- Csere is:Nem
- Hirdető:Cég
- Élő videón megtekinthető:Nem
- Építés éve:2026
- Szobaszám:4
- Állapot:Új építésű
- Hány szintes az ingatlan:nincs megadva
- Tetőtér:nincs megadva
- Komfortosság:nincs megadva
- Pince:nincs megadva
- Parkolási lehetőség:nincs megadva
- Fűtés:nincs megadva
- Bútorozottság:nincs megadva
- Fényviszony:nincs megadva
- Tájolás:DK
- Kilátás:nincs megadva
- Internet:nincs megadva
- Klíma:nincs megadva
- Akadálymentesített:nincs megadva
- Energiatanúsítvány:nincs megadva
- Villany:Van
- Víz:Van
- Gáz:Nincs
- Csatorna:Van
- Kapcsolatfelvétel

Giczi Andrea
+36-(70)-412-4351
Mondd meg a hirdetőnek, hogy a megveszLAK-on találtad a hirdetést.
Hitel ajánlatok
Ingatlan hirdetés leírása
Álmai otthona várja Aranyhegyen! – Új építésű, modern ikerház ...
Álmai otthona várja Aranyhegyen! – Új építésű, modern ikerház fél eladó
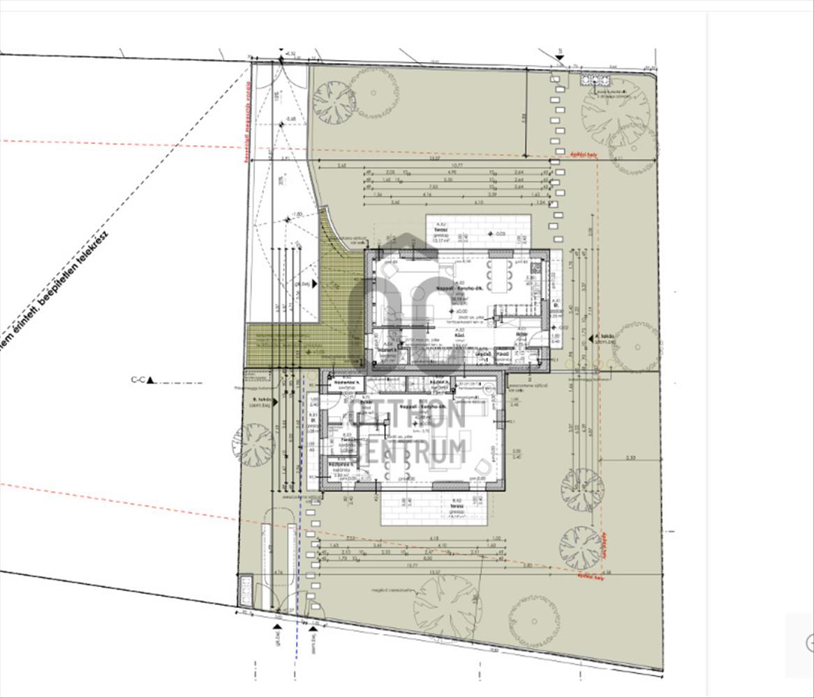
Tapasztalt fejlesztő kínál eladásra Aranyhegyen egy új építésű, 4 szobás (nappali + 3 hálószoba) ikerház felet magas műszaki tartalommal, sík, kizárólagos használatú, teljesen szeparált telekrésszel. Az egyedi adottságoknak köszönhetően a kínált ingatlan olyan, mintha önálló családi házat venne. Az ingatlan Aranyhegy közepén, egy már teljesen kiépült, szinte kizárólag új építésű házakkal körülvett lakókörnyezetben helyezkedik el, így ez az utolsó beépítetlen telek a környéken!
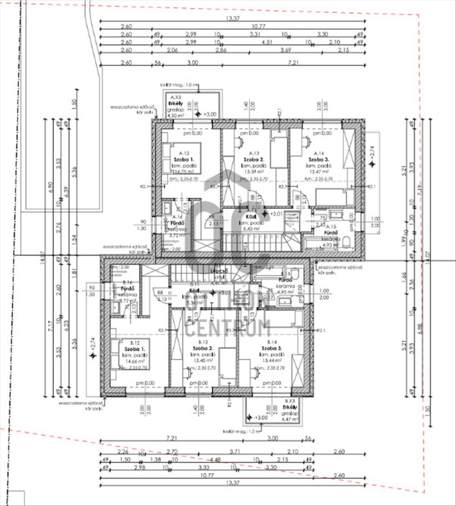
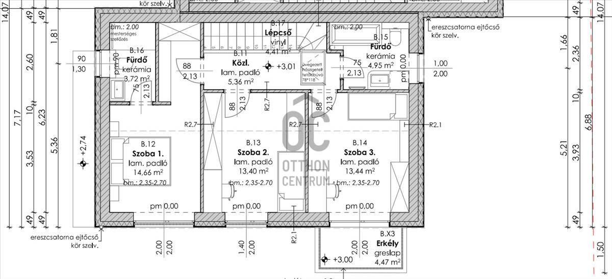
A lakótér mérete nettó 118, 5m2, amely tökéletes elosztást kínál. a földszinten tágas nappali-konyha-étkező, előtér, fürdő és egy háztartási helyiség, míg az emeleten 3 hálószoba és 2 fürdőszoba kap helyet a mellékelt alaprajzok szerinti ideális elrendezésben. a nappaliból leválasztva akár egy 5. Szoba is kialakítható eseti igény szerint.
Ezen kívül az eladásra kínált ingatlan részét képezi még egy 14nm -es kertre néző terasz, illetve egy 4, 5nm -es emeleti erkély panorámás kilátással, valamint a 2db kényelmes méretű gépkocsi udvari beálló.
Energiatakarékos, környezettudatos kialakítás:
Az ingatlan alapesetben bb energetikai besorolással rendelkezik, azonban napelemek telepítésével aa++ kategóriára fejleszthető – garantált energiatakarékosság és fenntarthatóság!
Kiemelkedő műszaki tartalom:
Monolit vasbeton födém, kerámia falazat;
Hőtechnikailag méretezett grafitos hőszigetelés;
Háromrétegű nyílászárók;
Levegő-víz hőszívattyús, energiatakarékos hűtés-fűtési rendszer – mennyezet hűtés-fűtés, padlófűtés;
Motoros redőnyök szúnyoghálóval;
Magas minőségű hideg- és melegburkolatok, szaniterek, csaptelepek és belső nyílászárók,
motoros kapu
videó kaputelefon
durva tereprendezés
Az ár kulcsrakész állapotra vonatkozik.
Szolgáltatások a közelben: élelmiszerbolt, pékség, játszótér, kávézó, kutyafuttató
Tömegközlekedés: a 219-es és 160-as buszjáratok megállói 5-10 perc sétatávolságon belül
Átadás várható ideje: 2026 II. Félév
Teljes körű ügyintézéssel várom a hívását a hét minden napján! Hitel.hu - Hasonlítsa össze a bankok lakáshitel ajánlatait
Tetszett ez az eladó Budapest III. kerületi új építésű 4 szobás ikerház? Hívd fel a hirdetőt most, és tudj meg mindent erről az eladó ikerházról! Ha gondolod nézelődj tovább az eladó ház Budapest III. kerület oldal hirdetései között. Ennek az eladó háznak az ára 222500000 Ft és mivel az alapterülete 160 négyzetméter, ezért az átlagos négyzetméterára 1390625 HUF/m2.
Az eladó házak menüpontban további hirdetések között is böngészhetsz. Ha van kedved, akkor böngészhetsz a Giczi Andrea összes hirdetése között, vagy akár a/az Otthon Centrum III. kerület - Csillaghegy összes hirdetése között is.

