Eladó új építésű ház Budapest III. kerület
| Kedvencbe | Megosztás | Árfigyelő |
| Kedvezményes lakáshitel ajánlatok | ||
| 249 900 000 HUF | ||
Ingatlan adatai
- Eladó vagy kiadó:Eladó
- Település:Budapest III. kerület
- Kategória:Ház
- Alkategória:Ikerház
- Alapterület:157 m2
- Telekterület:350 m2
- Csere is:Nem
- Hirdető:Cég
- Élő videón megtekinthető:Nem
- Építés éve:2022
- Szobaszám:5
- Állapot:Új építésű
- Hány szintes az ingatlan:nincs megadva
- Tetőtér:nincs megadva
- Komfortosság:nincs megadva
- Parkolási lehetőség:Garázsban
- Fűtés:nincs megadva
- Bútorozottság:nincs megadva
- Fényviszony:nincs megadva
- Tájolás:nincs megadva
- Kilátás:Panorámás
- Internet:nincs megadva
- Akadálymentesített:nincs megadva
- Energiatanúsítvány:nincs megadva
- Villany:Van
- Víz:Van
- Gáz:Van
- Csatorna:Van
- Üzenetküldés
- Hívás


Hitel ajánlat
Ingatlan hirdetés leírása
Eladó Aranyhegyen 137 m2-es ikerház
Költözhető szuper áron - Eladó Budapest III. kerület, Arany-hegy kedvelt részén új építésű ikerházfél – a Családi Ingatlan Iroda kínálatában.Budapest egyik legkeresettebb zöldövezeti részén, Arany-hegyen kínáljuk eladásra ezt a modern, lapostetős, letisztult minimál stílusú, költözhető prémium műszaki tartalommal megépült 137 m²-es ikerházfelet. Az épületek csak a garázsnál érnek össze, ezáltal nincs áthallás, intim elhelyezkedés.
A kizárólagos használatú telek összesen 350 m², ebből kb. 260 M² a kialakított privát kertrész.
A garázsban két autó kényelmesen parkolhat, közvetlen lakáskapcsolattal.
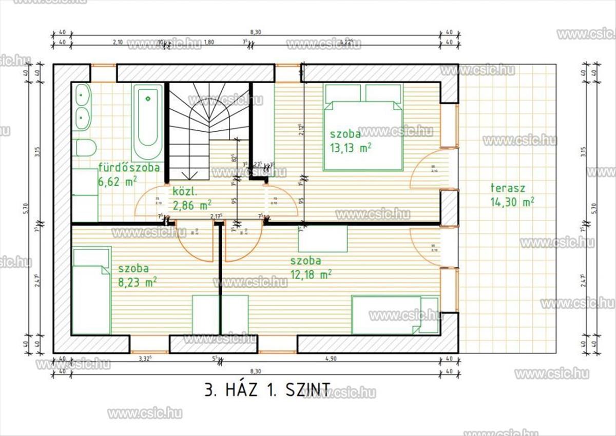
Helyiségek és elosztás
Földszint:
•Nappali + konyha + étkező egy légtérben, terasz- és kertkapcsolattal
•Hálószoba / dolgozószoba (ideális vendégszoba vagy iroda)
•Zuhanyzós fürdőszoba + WC
Emelet:
•2 hálószoba (ebből az egyik nagy méretű, könnyedén két külön szobára átalakítható) → így akár nappali + 4 hálós elrendezés is elérhető, az alaprajza a képek között megtalálható
•Kádas fürdőszoba WC-vel
Garázsszint:
•Tágas, 2 autós garázs közvetlen belső bejárattal a lakásba, gépészet és háztartási helyiség
Műszaki felszereltség és extrák:
•Tégla falazat + 15 cm grafitos külső hőszigetelés
•Lapostető 25-30 cm grafitos hőszigeteléssel
•Energiatakarékos hőszivattyús padlófűtés + mennyezethűtés
•3 rétegű nyílászárók (kívül antracit, belül fehér)
•Redőnytokok előkészítve
•Szellőztető rendszer előkészítése a födémben
•Prémium burkolatok ( Italgraniti Tavertin )
•Fürdőkben Grohe csaptelepek, Laufen szaniterek, Hppe zuhanyfal
•Teljesen beépített, gépesített konyhabútor konyhaszigettel
•Előszoba és fürdőszobai bútorok
•Panorámás nagyméretű földszinti és emeleti terasz üvegkorláttal
•Bioetanol látványkandalló
Fő erősségek
•Kizárólagos, kellemes méretű saját kert
•Letisztult modern építészet
•Energiatakarékos
•Kiváló benapozás, csodás hegyi panoráma
•Csendes, biztonságos, értékálló lokáció
•Azonnal költözhető, kulcsrakész állapot
•Jogilag rendezett Hitel.hu - Hasonlítsa össze a bankok lakáshitel ajánlatait

