Eladó jó állapotú ház - Budapest X. kerület
- INGYENES HIRDETÉS FELADÁS
Ingatlan adatai
- Feladva:86 napja a megveszLAK-on
- Eladó vagy kiadó:Eladó
- Település:Budapest X. kerület
- Kategória:Ház
- Alkategória:Ikerház
- Alapterület:171 m2
- Telekterület:526 m2
- Csere is:Nem
- Hirdető:Cég
- Élő videón megtekinthető:Nem
- Építés éve:1982
- Szobaszám:5
- Állapot:Jó állapotú
- Hány szintes az ingatlan:3 szintes
- Tetőtér:nincs megadva
- Komfortosság:nincs megadva
- Pince:Van
- Parkolási lehetőség:Garázsban
- Fűtés:Gáz
- Bútorozottság:nincs megadva
- Fényviszony:nincs megadva
- Tájolás:nincs megadva
- Kilátás:nincs megadva
- Internet:nincs megadva
- Klíma:nincs megadva
- Akadálymentesített:nincs megadva
- Energiatanúsítvány:nincs megadva
- Villany:Van
- Víz:Van
- Gáz:Van
- Csatorna:Van
- Kapcsolatfelvétel

Goldea Edit Anikó
+36-(20)-588-7800
Mondd meg a hirdetőnek, hogy a megveszLAK-on találtad a hirdetést.
Hitel ajánlatok
Ingatlan hirdetés leírása
Megvételre kínálunk, Budapest X. kerületében, Újhegy csendes k...
Megvételre kínálunk, Budapest x. kerületében, Újhegy csendes kertvárosi részében, egy jó elosztású 3 szintes ikerházat.
Az ingatlan a 80-as évek elején, téglából épült, hasznos alapterülete 171 nm , mely tökéletes életteret biztosít, egy nagyobb család, vagy akár két generáció számára is.
Az ingatlanhoz 526nm , saját telekrész tartozik.
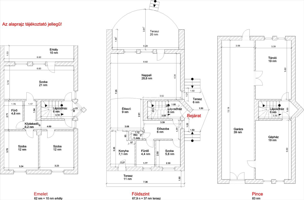
Az ingatlan beosztása:
Földszint -
-előszoba: 6nm ,
-lépcsőház: 6nm ,
-szoba: 5, 8nm ,
-fürdő: 4, 4nm ,
-wc: 1nm ,
-konyha: 7, 1nm ,
-étkező: 9nm ,
-nappali: 28, 6nm
--------------------------
67, 9 nm .
+ Fedett terasz: 20 nm ,
+ terasz 6 nm ,
+ terasz 11 nm .
Emelet:
-lépcsőház: 6nm ,
-közlekedő: 6, 2nm ,
-fürdő: 4, 8nm ,
-szoba: 12nm ,
-szoba: 12nm ,
-szoba: 21nm ,
-----------------------
62 nm .
+Erkély: 10nm ,
Pince:
-garázs: 39nm ,
-gépház: 19nm ,
-tároló: 19nm ,
-lépcsőház: 6nm ,
---------------------
83 nm .
2015-Ben egy nagyobb felújítás történt:
-festés,
-a fenti erkélyek beépítése,
-nyílászárók cseréje, (műanyag, redőnyös, szúnyoghálós)
-a ház külső szigetelést, színezést kapott,
-gázkazán, villanybojler cseréje,
-konyha felújítása.
A hátsó terasz, filagória, tároló, kerítés építése, 8 évvel ezelőtt.
A tárolóban, kézmosó+wc, fali csap került kialakításra.
Az ingatlanban, 3 db hűtő-fűtő klíma működik, melyeket 5 éven belül szereltek fel.
Riasztó rendszer van beépítve.
A fűtés gázkazánról működik, radiátoros hőleadással.
A beltéri ajtók, eredeti fából készültek.
Az ingatlan, saját mérőórákkal rendelkezik.
Az udvar parkosított, amiben 2db 35 éves diófa, és 1db 20 éves kajszi barack fa ad nyáron hűsítő árnyékot, és meghatározza a kert hangulatát.
Közelben iskolák, óvodák, bevásárlóközpont, minden egy helyen!
Kimondottan jó tömegközlekedés!
Amivel segítjük az Ön ingatlanvásárlását:
- ingyenes hitelügyintézés,
- jogi háttér,
- földhivatali ügyintézés,
- energetikai tanúsítvány,
- a vevő számára az ingatlanközvetítés ingyenes.
Irodánk 30 éves szakmai tapasztalattal áll ügyfelei rendelkezésére!
Várom szíves megkeresését! FIX 3% lakáshitelre megvehető
Tetszett ez az eladó Budapest X. kerületi jó állapotú 5 szobás ikerház? Hívd fel a hirdetőt most, és tudj meg mindent erről az eladó ikerházról! Ha gondolod nézelődj tovább az eladó ház Budapest X. kerület oldal hirdetései között. Ennek az eladó háznak az ára 149500000 Ft és mivel az alapterülete 171 négyzetméter, ezért az átlagos négyzetméterára 874269 HUF/m2.
Az eladó házak menüpontban további hirdetések között is böngészhetsz. Ha van kedved, akkor böngészhetsz a Goldea Edit Anikó összes hirdetése között, vagy akár a/az GDN Ingatlanhálózat összes hirdetése között is.

