Eladó új építésű ház - Budapest XVII. kerület
- INGYENES HIRDETÉS FELADÁS
Ingatlan adatai
- Feladva:63 napja a megveszLAK-on
- Eladó vagy kiadó:Eladó
- Település:Budapest XVII. kerület
- Kategória:Ház
- Alkategória:Ikerház
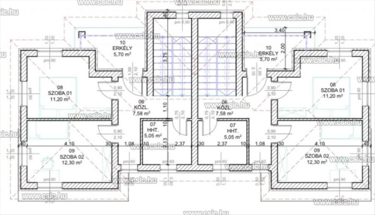
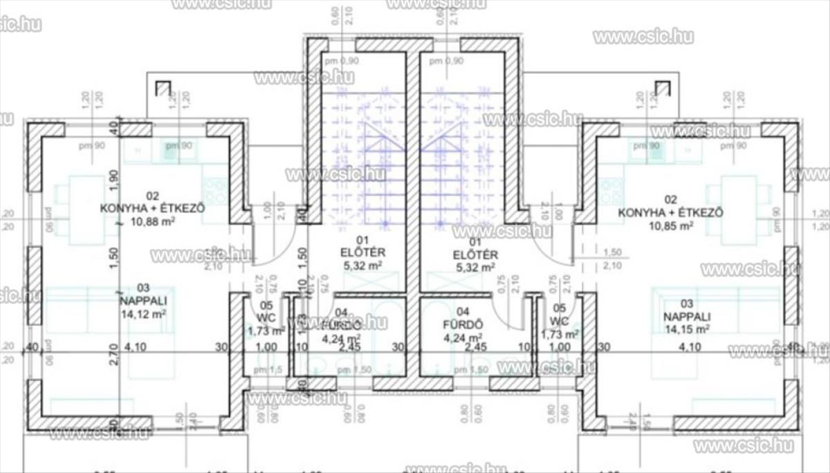
- Alapterület:105 m2
- Telekterület:500 m2
- Csere is:Nem
- Hirdető:Cég
- Élő videón megtekinthető:Nem
- Szobaszám:4
- Állapot:Új építésű
- Hány szintes az ingatlan:nincs megadva
- Tetőtér:nincs megadva
- Komfortosság:Összkomfortos
- Pince:nincs megadva
- Parkolási lehetőség:Garázsban
- Fűtés:nincs megadva
- Bútorozottság:nincs megadva
- Fényviszony:nincs megadva
- Tájolás:nincs megadva
- Kilátás:nincs megadva
- Internet:nincs megadva
- Klíma:nincs megadva
- Akadálymentesített:nincs megadva
- Energiatanúsítvány:nincs megadva
- Villany:Van
- Víz:Van
- Gáz:Van
- Csatorna:Van
- Kapcsolatfelvétel

Turós Ivett
+36-(20)-323-6690
Mondd meg a hirdetőnek, hogy a megveszLAK-on találtad a hirdetést.
Hitel ajánlatok
Ingatlan hirdetés leírása
BUDAPEST 17. KERÜLET ÚJ ÉPÍTÉSŰ, IKERHÁZFÉL ELADÓ
Budapest 17. kerületében új építésű, ikerházfél ELADÓ
Rákoscsaba és Rákoskeresztúr határán, egyik legkedveltebb környéken új építésű, modern, nappali+3 szobás ikerház még elérhető!
Alakítsa egyéni igényeire jövőbeni, energiatakarékos otthonát!
A hideg- és melegburkolatok, szaniterek még szabadon választhatók, hogy minden az Ön ízlése és kényelme szerint készülhessen.
A fejlesztő kizárólag minőségi alapanyagokkal dolgozik, számos referenciával rendelkezik, jelenleg is zajló beruházásai a igény esetén megtekinthetők.
A házak oldalanként 500 nm telekrésszel rendelkeznek és lakásonként nettó 105 nm -re tervezettek, 3 hálószoba, amerikai konyhás, tágas nappali, 1 fürdőszoba és külön wc, továbbá 1 gépészeti helyiség kerül kialakításra 2 szinten. a falazat Porotherm tégla és 10 cm-es grafit szigeteléssel készül, a fűtésről pedig hőszivattyú gondoskodik, mely mellé kiegészítésként wi-fi-ről vezérelhető Ariston okosbojlert csatlakoztatnak a tökéletes kényelemért.
Az ingatlanba klímát is terveztek, emellett riasztó-, és napelemelőkészítéssel is számoltak.
A környéken minden adott a kényelmes élethez; iskola, óvoda, orvosi rendelők és bevásárlási lehetőségek is a közelben vannak.
Jöjjön, tekintse meg a páratlan lehetőségű ingatlant és alakítsa saját igényei szerint otthonát!
Megtisztelő megkeresését hétvégén is örömmel fogadom! FIX 3% lakáshitelre megvehető
Tetszett ez az eladó Budapest XVII. kerületi új építésű 4 szobás ikerház? Hívd fel a hirdetőt most, és tudj meg mindent erről az eladó ikerházról! Ha gondolod nézelődj tovább az eladó ház Budapest XVII. kerület oldal hirdetései között. Ennek az eladó háznak az ára 135900000 Ft és mivel az alapterülete 105 négyzetméter, ezért az átlagos négyzetméterára 1294286 HUF/m2.
Az eladó házak menüpontban további hirdetések között is böngészhetsz. Ha van kedved, akkor böngészhetsz a Turós Ivett összes hirdetése között, vagy akár a/az Családi Ingatlan összes hirdetése között is.

