Eladó újszerű állapotú ház - Budapest XVIII. kerület
- INGYENES HIRDETÉS FELADÁS
Ingatlan adatai
- Feladva:4 hónapja a megveszLAK-on
- Eladó vagy kiadó:Eladó
- Település:Budapest XVIII. kerület
- Kategória:Ház
- Alkategória:Ikerház
- Alapterület:110 m2
- Telekterület:266 m2
- Csere is:Nem
- Hirdető:Cég
- Élő videón megtekinthető:Nem
- Építés éve:2026
- Szobaszám:5
- Állapot:Újszerű, kitűnő
- Hány szintes az ingatlan:2 szintes
- Tetőtér:nincs megadva
- Komfortosság:nincs megadva
- Pince:nincs megadva
- Parkolási lehetőség:Beállóban
- Fűtés:nincs megadva
- Bútorozottság:nincs megadva
- Fényviszony:nincs megadva
- Tájolás:nincs megadva
- Kilátás:nincs megadva
- Internet:nincs megadva
- Klíma:nincs megadva
- Akadálymentesített:nincs megadva
- Energiatanúsítvány:nincs megadva
- Villany:Van
- Víz:Van
- Gáz:Van
- Csatorna:Van
- Kapcsolatfelvétel

Ivanics Anita
+36-(70)-743-9189
Mondd meg a hirdetőnek, hogy a megveszLAK-on találtad a hirdetést.
Hitel ajánlatok
Ingatlan hirdetés leírása
Újépítésű ikerház a Nagykőrösi útnál – pontosan 908.181Ft/m² á...
Új építésű ikerház a Nagykőrösi útnál – pontosan 908. 181Ft/m² áron! Ezt ne hagyja ki!
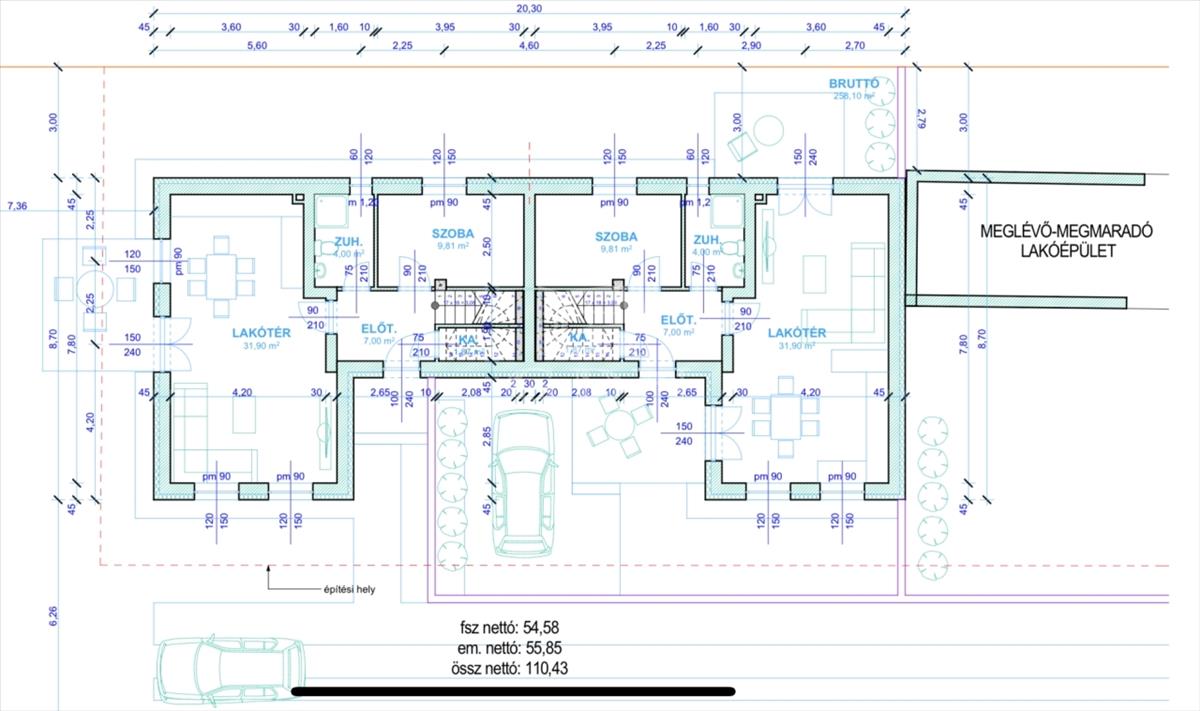
Ez az ingatlan ár alatt érhető el a környék új építésű társaihoz képest: a 110 m²-es ház ára 110 millió Ft, a telekhasználaton 2. Lakás! a 3. Lakás is eladó, annak az ára 120Mft!
A ház hátsó telekrészen helyezkedik el, így az utcazajtól teljesen védett, nyugodt, csendes környezetet kínál.
Főbb jellemzők:
•amerikai konyhás nappali + 4 hálószoba
•2 fürdőszoba WC-vel, kamra
•terasz, kert, udvari autóbeálló
Műszaki tartalom:
•hőszivattyú + padlófűtés
•3 rétegű nyílászárók
•klíma előkészítés (nappali vagy minden szobába kiállás)
•elektromos kapu
•riasztó és kamerarendszer beépítve
•napelem előkészítés
•vastag szigetelések
Burkolatok, szaniterek, belső ajtók választhatók (árban: 5. 000 Ft/m²-ig).
A kivitelezőről:
Megbízható, tapasztalt cég, számos referenciamunkával a környéken, amelyek személyesen is megtekinthetők. a minőségi kivitelezés és a korrekt együttműködés garantált.
Átadás: 2026. II. Negyedév
30% önerővel lefoglalható
Állami támogatások igénybe vehetők.
A hét bármely napján elérhető vagyok, akár hétvégén is! FIX 3% lakáshitelre megvehető
Tetszett ez az eladó Budapest XVIII. kerületi újszerű állapotú 5 szobás ikerház? Hívd fel a hirdetőt most, és tudj meg mindent erről az eladó ikerházról! Ha gondolod nézelődj tovább az eladó ház Budapest XVIII. kerület oldal hirdetései között. Ennek az eladó háznak az ára 110000000 Ft és mivel az alapterülete 110 négyzetméter, ezért az átlagos négyzetméterára 1000000 HUF/m2.
Az eladó házak menüpontban további hirdetések között is böngészhetsz. Ha van kedved, akkor böngészhetsz a Ivanics Anita összes hirdetése között, vagy akár a/az GDN Ingatlanhálózat összes hirdetése között is.

