Eladó új építésű ház - Budapest XVIII. kerület
- INGYENES HIRDETÉS FELADÁS
Ingatlan adatai
- Eladó vagy kiadó:Eladó
- Település:Budapest XVIII. kerület
- Kategória:Ház
- Alkategória:Ikerház
- Alapterület:143 m2
- Telekterület:375 m2
- Csere is:Nem
- Hirdető:Cég
- Élő videón megtekinthető:Nem
- Építés éve:2022
- Szobaszám:5
- Állapot:Új építésű
- Hány szintes az ingatlan:Földszintes
- Tetőtér:nincs megadva
- Komfortosság:nincs megadva
- Pince:nincs megadva
- Parkolási lehetőség:Garázsban
- Fűtés:Elektromos
- Bútorozottság:nincs megadva
- Fényviszony:Napfényes
- Tájolás:ÉNY
- Kilátás:nincs megadva
- Internet:nincs megadva
- Klíma:nincs megadva
- Akadálymentesített:nincs megadva
- Energiatanúsítvány:nincs megadva
- Villany:Van
- Víz:Van
- Gáz:Nincs
- Csatorna:Van
- Kapcsolatfelvétel

Drevnó Béla
+36-(70)-307-7503
Mondd meg a hirdetőnek, hogy a megveszLAK-on találtad a hirdetést.
Referencia szám: HZ011673
Ingatlan hirdetés leírása
Eladó ház, Budapest 18. ker.
Új építésű, amerikai konyhás nappali + 4 szobás, napelemes, dupla erkélyes ikerházfél Ganzkertvárosban
Eladó Budapest 18. kerületében, Ganzkertváros csendes, új építésű részén egy 143 nm - es, amerikai konyhás nappali + 4 szobás ikerházfél 375 nm - es telekkel.
Minden állami támogatás, csok, illetékmentesség, 5% áfa VISSZAIGÉNYELHETŐ!
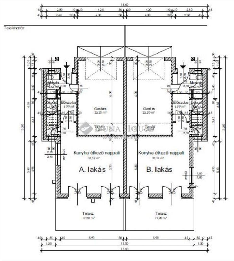
A lakás földszinti helyiségei: amerikai konyhás nappali, kamra, előszoba, mosdó, garázs, tároló, terasz.
A lakás nettó földszinti alapterület: 77 nm.
A lakás emeleti helyiségei: 4 db szoba (mindegyik erkélyes), közlekedő, wc, fürdő, 2 db erkély.
A lakás nettó emeleti alapterület: 66 nm
Műszaki leírás:
- 30 - as phorotherm tégla
- 10 cm szigetelés
- hideg- és melegburkolatok 4. 000 - 4. 500 Ft / nm-ig
- beton födém
- műanyag nyílászárók
- műanyag bejárati ajtó, garázskapu
- infra film fűtés
- napelem
Várható átadás 2022. 4. Negyedév!
Teljes műszaki leírás, méretarányos tervrajz, teljes dokumentáció irodánkban megtekinthető.
A Duna House teljes kínálatával kapcsolatban forduljon hozzám bizalommal. Hitel ügyintézés garantáltan a legjobb feltételekkel és a leggyorsabban. Eladás és vétel teljes körű ügyintézése, ingyenes tanácsadás, értékbecslés, megbízható ügyvédi háttér biztosítása. Igény esetén - élő skypevideo lakásbemutatás, teljes körű online ÜGYINTÉZÉS!
A Duna House teljes kínálatával kapcsolatban forduljanak hozzám bizalommal!
Bankfüggetlen pénzügyi szakembereink tanácsadással, ügyintézéssel tudják segíteni Önöket álmaik, céljaik megvalósításában!
Vegye igénybe díjmentes konzultációinkat!
Https://www. Facebook. Com/otthonkonnyeden
Referencia szám: hz011673 FIX 3% lakáshitelre megvehető


