Eladó új építésű ház - Budapest XVIII. kerület
- INGYENES HIRDETÉS FELADÁS
Ingatlan adatai
- Eladó vagy kiadó:Eladó
- Település:Budapest XVIII. kerület
- Kategória:Ház
- Alkategória:Ikerház
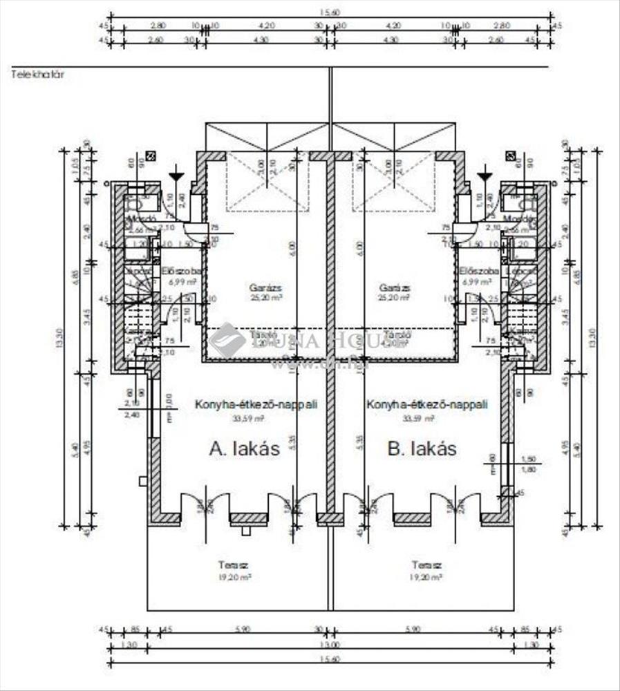
- Alapterület:143 m2
- Telekterület:375 m2
- Csere is:Nem
- Hirdető:Cég
- Élő videón megtekinthető:Nem
- Építés éve:2022
- Szobaszám:5
- Állapot:Új építésű
- Hány szintes az ingatlan:Földszintes
- Tetőtér:nincs megadva
- Komfortosság:nincs megadva
- Pince:nincs megadva
- Parkolási lehetőség:nincs megadva
- Fűtés:Elektromos
- Bútorozottság:nincs megadva
- Fényviszony:Napfényes
- Tájolás:ÉNY
- Kilátás:nincs megadva
- Internet:nincs megadva
- Klíma:nincs megadva
- Akadálymentesített:nincs megadva
- Energiatanúsítvány:nincs megadva
- Villany:nincs megadva
- Víz:nincs megadva
- Gáz:nincs megadva
- Csatorna:nincs megadva
- Kapcsolatfelvétel

Gáspár Olivér
+36-(70)-653-2920
Mondd meg a hirdetőnek, hogy a megveszLAK-on találtad a hirdetést.
Referencia szám: HZ011673
Ingatlan hirdetés leírása
Eladó ház, Budapest 18. ker.
Új építésű, amerikai konyhás nappali + 4 szobás, napelemes, dupla erkélyes ikerházfél GanzkertvárosbanEladó Budapest 18. kerületében, Ganzkertváros csendes, új építésű részén egy 143 nm - es, amerikai konyhás nappali + 4 szobás ikerházfél 375 nm - es telekkel. Minden állami támogatás, CSOK plusz, illetékmentesség igénybe vehető! a lakás földszinti helyiségei: amerikai konyhás nappali, kamra, előszoba, mosdó, garázs, tároló, terasz. a lakás nettó földszinti alapterület: 77 nm. a lakás emeleti helyiségei: 4 db szoba (mindegyik erkélyes), közlekedő, wc, fürdő, 2 db erkély. a lakás nettó emeleti alapterület: 66 nmMűszaki leírás:- 30 - as phorotherm tégla- 10 cm szigetelés- hideg- és melegburkolatok 4. 000 - 4. 500 Ft / nm-ig- beton födém- műanyag nyílászárók- műanyag bejárati ajtó, garázskapu- infra film fűtés- napelemTeljes műszaki leírás, méretarányos tervrajz, teljes dokumentáció irodánkban megtekinthető. a Duna House teljes kínálatával kapcsolatban forduljon hozzám bizalommal. Hitel ügyintézés garantáltan a legjobb feltételekkel és a leggyorsabban. Eladás és vétel teljes körű ügyintézése, ingyenes tanácsadás, értékbecslés, megbízható ügyvédi háttér biztosítása. IGÉNY esetén - élő skypevideo lakásbemutatás, teljes körű online ügyintézés! FIX 3% lakáshitelre megvehető


