Eladó új építésű ház - Budapest XVIII. kerület
- INGYENES HIRDETÉS FELADÁS
Ingatlan adatai
- Feladva:41 napja a megveszLAK-on
- Eladó vagy kiadó:Eladó
- Település:Budapest XVIII. kerület
- Kategória:Ház
- Alkategória:Ikerház
- Alapterület:214 m2
- Telekterület:200 m2
- Csere is:Nem
- Hirdető:Cég
- Élő videón megtekinthető:Nem
- Építés éve:2026
- Szobaszám:4
- Állapot:Új építésű
- Hány szintes az ingatlan:Földszintes
- Tetőtér:nincs megadva
- Komfortosság:nincs megadva
- Pince:nincs megadva
- Parkolási lehetőség:nincs megadva
- Fűtés:Hőszivattyús
- Bútorozottság:nincs megadva
- Fényviszony:Jó
- Tájolás:ÉNY
- Kilátás:nincs megadva
- Internet:nincs megadva
- Klíma:nincs megadva
- Akadálymentesített:nincs megadva
- Energiatanúsítvány:nincs megadva
- Villany:nincs megadva
- Víz:nincs megadva
- Gáz:nincs megadva
- Csatorna:nincs megadva
- Kapcsolatfelvétel

Velencei Zelina
+36-(30)-358-2475
Mondd meg a hirdetőnek, hogy a megveszLAK-on találtad a hirdetést.
Referencia szám: HZ044131
Hitel ajánlatok
Ingatlan hirdetés leírása
Eladó ház, Budapest 18. ker.
Budapest XVIII. kerületének egyik legkeresettebb részén a Péterhalmi erdő szomszédságában épül ez a kétlakásos, háromszintes, a+ energetikájú otthon, amelyből mindössze egy bal és egy jobb ikerfél készül.
A 2026-os átadás miatt most még minden részlet személyre szabható. Ez az a pillanat, amikor még bele lehet nyúlni a burkolatokba, színekbe, kialakításokba később már nem. Főbb adatok:-214m2-es alapterület
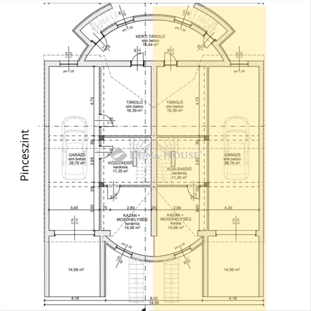
Pinceszint: 104m21. Szint: 75, 5m22. Szint: 35m2-Hozzá tartozó telekterület: Körülbelül 200m2 Háromszintes elrendezés- Pinceszint (garázs + tárolók + gépészet), - 1. Szint (nappali, konyha, étkező, szobák), - 2. Szint (szoba, gardrób )Plusz további tetőtér még beépíthető a+ energetika a műszaki leírás szerint:- 40 cm tetőszigetelés, - hőszivattyús fűtés, - padlófűtés mindhárom szinten, -3db hűtő-fűtő klíma- Htarifás villanyóra Prémium szerkezetek és anyagok- 30 cm nf főfalak, - betonfödém, - Terrán cserépfedés, - 6 légkamrás műanyag nyílászárók 1. 0 Üvegezéssel, - elektromos redőnyök, - elektromos garázskapu
Miért különleges? a pince szint ami miatt ez az ingatlan eltér a mai új építésű ikerházfelektől- teljes értékűen szigetelt, - gépi vakolt falakkal, - 10 cm lépésálló hőszigeteléssel, - simított betonpadlóval készül. Nem csak egy garázs, hanem egy komplett funkcionális szint. Fürdők, konyha, belső terek még te döntesz- 100. 000 Ft-ig választható zuhanyrendszer, - 100. 000 Ft-ig választható mosdószekrény, - 150. 000 Ft-ig választható falba épített wc szett, - 10. 000 Ft/m²-ig választható hidegburkolat, - 10. 000 Ft/m²-ig választható laminált padló. Ez azt jelenti, hogy most még te alakítod ki a saját ízlésed szerint, és nem kell kompromisszumot kötni egy készre burkolt házzal. Kert és környezet- viacolor kocsibeálló, - viacolor járda, - elektromos kétszárnyú nagykapu, - 3d táblás elválasztókerítés
Környezet:A környék hangulata egyszerre nyugodt és élhető, mégis minden fontos szolgáltatás pár percen belül elérhető.
A XVIII. kerületet érintő járatok között szerepel a 166, 182, 266, 282e és 950-es busz, valamint az 50-es villamos, amely gyors kapcsolatot ad a metróhoz isAutóval pedig a kerületből indulva könnyen elérhető:- az m0, - az m5, - a Gyömrői út, - a repülőtérVárható átadás: 2026. 4. NegyedévMegbízható kivitelező referencia munkákkal! Hitel.hu - Hasonlítsa össze a bankok lakáshitel ajánlatait
Tetszett ez az eladó Budapest XVIII. kerületi új építésű 4 szobás ikerház? Hívd fel a hirdetőt most, és tudj meg mindent erről az eladó ikerházról! Ha gondolod nézelődj tovább az eladó ház Budapest XVIII. kerület oldal hirdetései között. Ennek az eladó háznak az ára 199999000 Ft és mivel az alapterülete 214 négyzetméter, ezért az átlagos négyzetméterára 934575 HUF/m2.
Az eladó házak menüpontban további hirdetések között is böngészhetsz. Ha van kedved, akkor böngészhetsz a Velencei Zelina összes hirdetése között, vagy akár a/az Duna House Óhegy összes hirdetése között is.

