Eladó új építésű ház - Budapest XVIII. kerület
- INGYENES HIRDETÉS FELADÁS
Ingatlan adatai
- Feladva:67 napja a megveszLAK-on
- Eladó vagy kiadó:Eladó
- Település:Budapest XVIII. kerület
- Kategória:Ház
- Alkategória:Ikerház
- Alapterület:141 m2
- Telekterület:375 m2
- Csere is:Nem
- Hirdető:Cég
- Élő videón megtekinthető:Nem
- Építés éve:2022
- Szobaszám:5
- Állapot:Új építésű
- Hány szintes az ingatlan:Földszintes
- Tetőtér:nincs megadva
- Komfortosság:nincs megadva
- Pince:nincs megadva
- Parkolási lehetőség:nincs megadva
- Fűtés:Elektromos
- Bútorozottság:nincs megadva
- Fényviszony:Napfényes
- Tájolás:DK
- Kilátás:nincs megadva
- Internet:nincs megadva
- Klíma:nincs megadva
- Akadálymentesített:nincs megadva
- Energiatanúsítvány:B
- Villany:Van
- Víz:Van
- Gáz:Nincs
- Csatorna:Van
- Kapcsolatfelvétel

Banda Péter
+36-(70)-941-6730
Mondd meg a hirdetőnek, hogy a megveszLAK-on találtad a hirdetést.
Referencia szám: HZ033693
Hitel ajánlatok
Ingatlan hirdetés leírása
Eladó ház, Budapest 18. ker.
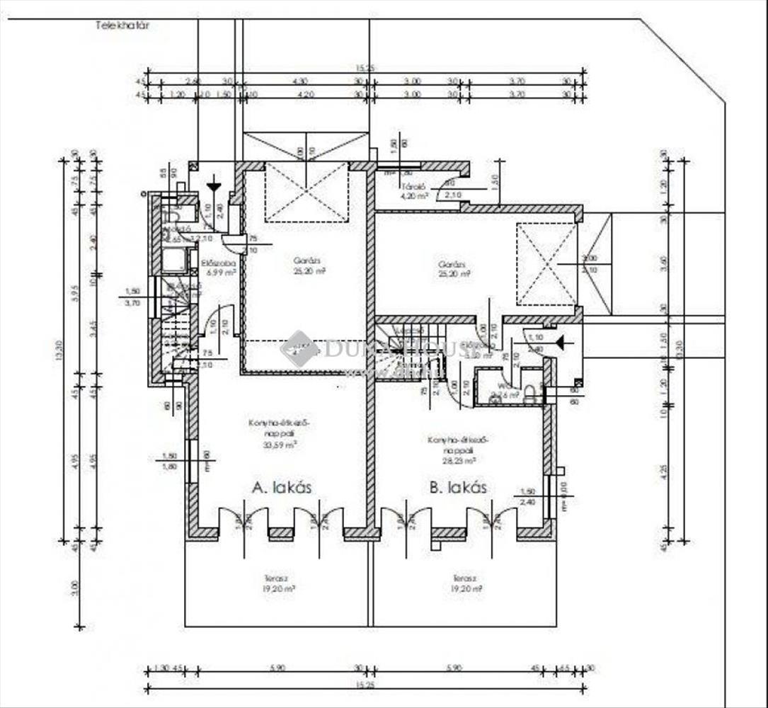
Új építésű, amerikai konyhás nappali + 4 szobás, napelemes, dupla erkélyes ikerházfél GanzkertvárosbanEladó Budapest 18. kerületében, Ganzkertváros csendes, új építésű részén egy 141 nm - es, amerikai konyhás nappali + 4 szobás ikerházfél 375 nm - es telekkel. Minden állami támogatás, csok, illetékmentesség, 5% áfa visszatérítés! a lakás földszinti helyiségei: amerikai konyhás nappali, kamra, előszoba, mosdó, garázs, tároló, terasz. a lakás nettó földszinti alapterület: 71 nm . a lakás emeleti helyiségei: 4 db szoba, közlekedő, wc, fürdő. a lakás nettó emeleti alapterület: 70 nm Műszaki leírás:- 30 - as phorotherm tégla- 10 cm szigetelés- hideg- és melegburkolatok 4. 000 - 4. 500 Ft / nm -ig- beton födém- műanyag nyílászárók- műanyag bejárati ajtó, garázskapu- infra film fűtés- napelemTeljes műszaki leírás, méretarányos tervrajz, teljes dokumentáció irodánkban megtekinthető. a Duna House teljes kínálatával kapcsolatban forduljon hozzám bizalommal. Hitel ügyintézés garantáltan a legjobb feltételekkel és a leggyorsabban. Eladás és vétel teljes körű ügyintézése, ingyenes tanácsadás, értékbecslés, megbízható ügyvédi háttér biztosítása. IGÉNY esetén - élő skypevideo lakásbemutatás, teljes körű online ügyintézés! FIX 3% lakáshitelre megvehető
Tetszett ez az eladó Budapest XVIII. kerületi új építésű 5 szobás ikerház? Hívd fel a hirdetőt most, és tudj meg mindent erről az eladó ikerházról! Ha gondolod nézelődj tovább az eladó ház Budapest XVIII. kerület oldal hirdetései között. Ennek az eladó háznak az ára 140000000 Ft és mivel az alapterülete 141 négyzetméter, ezért az átlagos négyzetméterára 992908 HUF/m2.
Az eladó házak menüpontban további hirdetések között is böngészhetsz. Ha van kedved, akkor böngészhetsz a Banda Péter összes hirdetése között, vagy akár a/az Duna House Szent Imre-kertváros összes hirdetése között is.

