Eladó új építésű ház Budapest XVIII. kerület
| Kedvencbe | Megosztás | Árfigyelő |
| FIX 3% lakáshitelre megvehető | ||
| 129 900 000 HUF | ||
Ingatlan adatai
- Eladó vagy kiadó:Eladó
- Település:Budapest XVIII. kerület
- Kategória:Ház
- Alkategória:Ikerház
- Alapterület:143 m2
- Telekterület:375 m2
- Csere is:Nem
- Hirdető:Cég
- Élő videón megtekinthető:Nem
- Építés éve:2022
- Szobaszám:5
- Állapot:Új építésű
- Hány szintes az ingatlan:Földszintes
- Tetőtér:nincs megadva
- Komfortosság:nincs megadva
- Parkolási lehetőség:nincs megadva
- Fűtés:Elektromos
- Bútorozottság:nincs megadva
- Fényviszony:Napfényes
- Tájolás:ÉNY
- Kilátás:nincs megadva
- Internet:nincs megadva
- Akadálymentesített:nincs megadva
- Energiatanúsítvány:nincs megadva
- Villany:nincs megadva
- Víz:nincs megadva
- Gáz:nincs megadva
- Csatorna:nincs megadva
- Üzenetküldés
- Hívás

Tolnai Hajnalka Krisztina
Mondd meg a hirdetőnek, hogy a megveszLAK-on találtad a hirdetést.
Referencia szám: HZ011673

Hitel ajánlat
Ingatlan hirdetés leírása
Eladó ház, Budapest 18. ker.
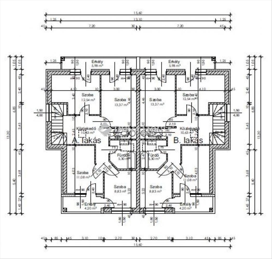
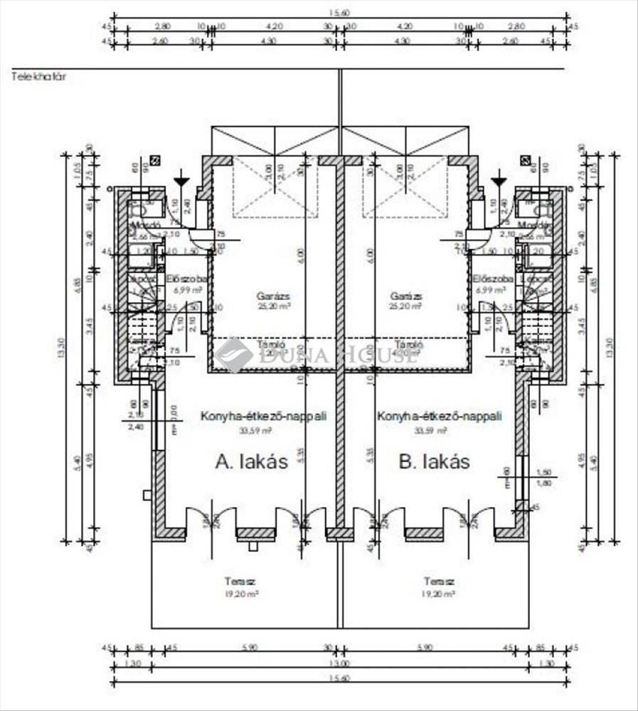
Eladó új építésű ikerházfél Budapest 18. , GANZKERTVÁROSEladó Budapest 18. kerületében, Ganzkertváros csendes, új építésű részén egy 143 m²-es, amerikai konyhás nappali + 4 szobás ikerházfél, 375 m²-es telekkel.
Minden állami támogatás igénybe vehető: CSOK plusz, illetékmentesség.
Főbb jellemzők
- Földszint (77 m²): amerikai konyhás nappali, kamra, előszoba, mosdó, garázs, tároló, terasz
- Emelet (66 m²): 4 szoba (mindegyik erkélyes), közlekedő, fürdő, wc, 2 erkély
- Dupla erkély – minden szobához
- Napelemes rendszer, infra film fűtés
Műszaki tartalom
- 30-as Phorotherm tégla, 10 cm szigetelés
- beton födém, műanyag nyílászárók
- műanyag bejárati ajtó, garázskapu
- hideg- és melegburkolatok választhatók (4. 000–4. 500 Ft/nm)
Teljes dokumentáció, méretarányos tervrajz irodánkban megtekinthető.
Szolgáltatások
- Hitel ügyintézés a legjobb feltételekkel
- Teljes körű adásvételi ügyintézés, ingyenes tanácsadás
- Értékbecslés és megbízható ügyvédi háttér biztosított
- Élő Skype / video lakásbemutató és teljes online ügyintézés igény szerint
Keressen bizalommal, tekintse meg ezt a modern, világos otthont!
Referencia szám: hz011673 FIX 3% lakáshitelre megvehető

