Eladó új építésű ház - Budapest XXII. kerület
- INGYENES HIRDETÉS FELADÁS
Ingatlan adatai
- Eladó vagy kiadó:Eladó
- Település:Budapest XXII. kerület
- Kategória:Ház
- Alkategória:Ikerház
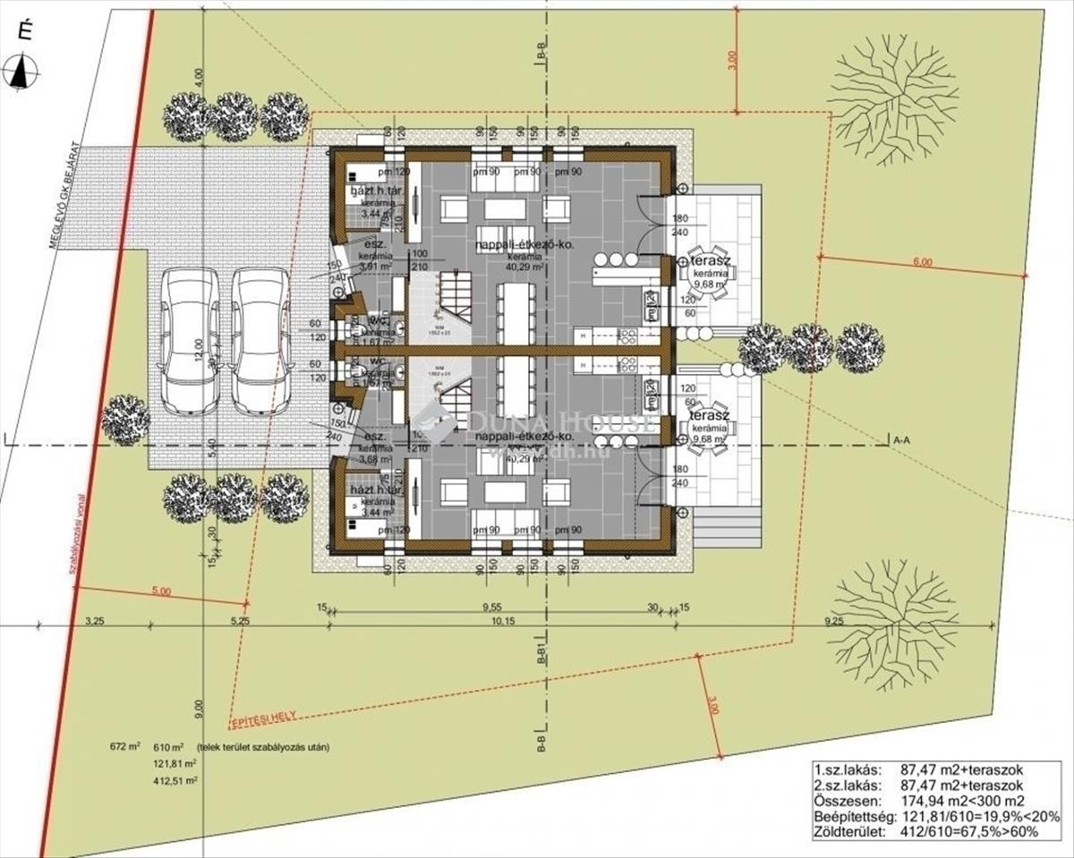
- Alapterület:96 m2
- Telekterület:300 m2
- Csere is:Nem
- Hirdető:Cég
- Élő videón megtekinthető:Nem
- Építés éve:2025
- Szobaszám:4
- Állapot:Új építésű
- Hány szintes az ingatlan:Földszintes
- Tetőtér:nincs megadva
- Komfortosság:nincs megadva
- Pince:nincs megadva
- Parkolási lehetőség:Udvaron
- Fűtés:Hőszivattyús
- Bútorozottság:nincs megadva
- Fényviszony:Napfényes
- Tájolás:É
- Kilátás:nincs megadva
- Internet:nincs megadva
- Klíma:nincs megadva
- Akadálymentesített:nincs megadva
- Energiatanúsítvány:nincs megadva
- Villany:nincs megadva
- Víz:nincs megadva
- Gáz:nincs megadva
- Csatorna:nincs megadva
- Kapcsolatfelvétel

Regius János
+36-(30)-827-6565
Mondd meg a hirdetőnek, hogy a megveszLAK-on találtad a hirdetést.
Referencia szám: HZ047403
Ingatlan hirdetés leírása
Eladó ház, Budapest 22. ker.
22. Ker. Eladó egy újépítésű ikerházfél, amely egyaránt ideális választás családoknak és befektetőknek. Az ingatlan a közkedvelt Bartók Béla utcában található. a nettó 87, 5 négyzetméteres lakótér kiváló tervezésű, két szinten elhelyezkedő otthon, amely négy szobával és egy tágas nappalival rendelkezik. a két terasz még több lehetőséget kínál a pihenésre vagy családi összejövetelekre. Emellett egy saját, 300 négyzetméteres kert és egy kocsibeálló is a rendelkezésére áll. Az energiatakarékos hőszivattyús rendszer garantálja az alacsony fűtési és hűtési költségeket, így hosszú távon fenntartható és gazdaságos megoldást kínál. Rugalmasság a kivitelezésbenJelen állapotában még lehetősége van a belső terek testreszabására, kiválaszthatja a burkolatokat és szanitereket, így teljesen az Ön igényeire szabhatja új otthonát. Az építkezést egy megbízható, számos referenciával rendelkező helyi építő cég végzi, biztosítva a minőségi kivitelezést. Kiváló infrastruktúra és elhelyezkedésElhelyezkedése ideális, hiszen könnyen elérhető a városközpont autóval és tömegközlekedéssel egyaránt. a közelben számos szolgáltatás áll rendelkezésre: iskola, óvoda, gyógyszertár, posta és boltok mind karnyújtásnyira találhatók. a tömegközlekedés kiváló: a 187-es és 941-es buszok megállói rövid sétatávolságra vannak, míg a Budafok vasútállomás gyors kapcsolatot biztosít a Déli pályaudvar felé. Az M0-s autópálya közelsége pedig megkönnyíti a közlekedést az agglomeráció és az ország többi része felé.
Érd: Regius János 06 30 8276565
Referencia szám: hz047403 FIX 3% lakáshitelre megvehető


