- >>
- eladó ingatlanok
- >>
- eladó ház
- >>
- eladó ház Budapest XXII. kerület
- >>
Eladó új építésű ház - Budapest XXII. kerület
| | |||
| Kedvencnek jelölöm | Elküldöm emailben | Megosztás | Szavazás |
| Kedvezményes lakáshitel ajánlatok | |||
| 266 250 000 HUF | |||
Ingatlan adatai
- Eladó vagy kiadó:Eladó
- Település:Budapest XXII. kerület
- Kategória:Ház
- Alkategória:Ikerház
- Alapterület:191 m2
- Telekterület:1215 m2
- Csere is:Nem
- Hirdető:Cég
- Élő videón megtekinthető:Nem
- Építés éve:2024
- Szobaszám:4
- Állapot:Új építésű
- Hány szintes az ingatlan:2 szintes
- Tetőtér:nincs megadva
- Komfortosság:nincs megadva
- Parkolási lehetőség:Teremgarázsban
- Fűtés:Geotermikus
- Bútorozottság:nincs megadva
- Fényviszony:Napfényes
- Tájolás:nincs megadva
- Kilátás:nincs megadva
- Internet:nincs megadva
- Klíma:Van
- Akadálymentesített:nincs megadva
- Energiatanúsítvány:nincs megadva
- Villany:nincs megadva
- Víz:Nincs
- Gáz:nincs megadva
- Csatorna:nincs megadva
- Üzenetküldés
- Hívás

Papp-Horváth Katalin
Mondd meg a hirdetőnek, hogy a megveszLAK-on találtad a hirdetést.
Referencia szám: M271075

Hitel ajánlat
Ingatlan hirdetés leírása
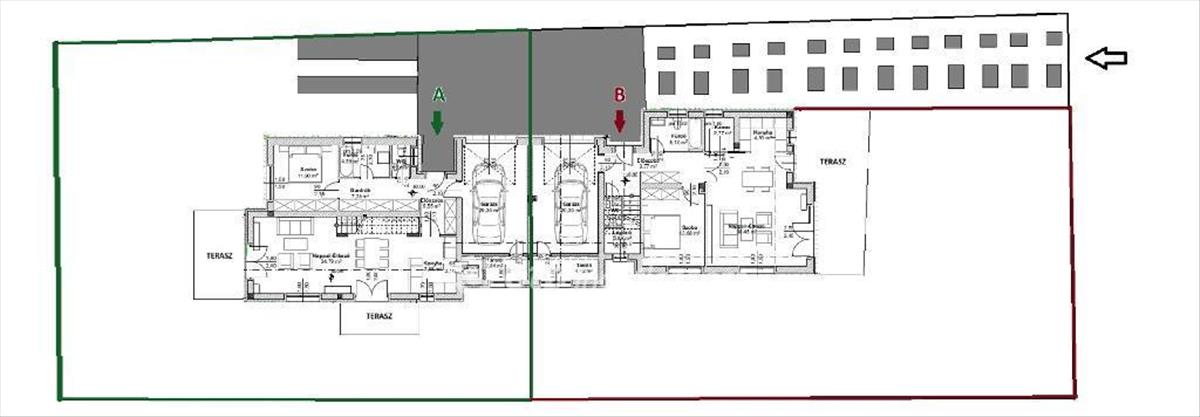
Eladó Ház, Budapest 22. ker.
Energiatakarékos, luxus ikerház, eladó Budafokon!Egy igazán energiatudatos és fenntartható épületgépészeti megoldásokkal és okosotthon vezérléssel ellátott ikerház épül az Ön egyedi igényeihez alkalmazkodva!
Kiváló minőségű referenciákkal rendelkező, megbízható kivitelező építi az Ön otthonát.
Hívjon és foglaljon időpontot a Projekt részletes bemutatására!
ÉPÜLET leírása:
Kétszintes épület.
Tájolás: K.
HELYISÉGEK:
Amerikai konyhás nappali 42 m2, tágas 17 m2 terasz kapcsolattal.
3 Tágas hálószoba.
Konyhából kamra nyílik.
3 Fürdőszoba.
2 Gardrób helyiség.
Földszinten két terasz.
Emeleten két fedett terasz.
Garázs elektromos autótöltővel felszerelve, tároló kapcsolattal.
Nyitott kocsibeálló
TELEK mérete: 1215 m2
KERT:
Elszeparál kertrész mérete kb. 500 m2.
Automata robot fűnyíró rendszer kiépítése,
automata öntözőrendszer, esővízgyűjtővel
és gyepesítés az árban.
MŰSZAKI ADATOK:
Fűtés/hűtés: a lakásban, mennyezet fűtés-hűtési rendszer kerül kialakításra helyiségenkénti szabályozással.
A fürdőszobák, elektromos-thermosztátos törölközőszárítós radiátorral szereltek.
Hőszivattyús berendezés 11 kW-os a gépházban padlón álló kombi hidrobox, melyben 180 l-es hmv tartály is található.
Szellőztetés: Hővisszanyerős szellőztető rendszerrel működik.
Napelem: Havi szaldó elszámolású napelem rendszer 12 kW napelem + 20 kWh akkupakk + autótöltő.
BWT vízlágyító rendszer kiépítése a vízkő elleni védelemért.
Árnyékolás: Beépített redőnytokok. Alumínium, távirányítós, motoros redőnyök antracit szürke színben szúnyoghálóval szerelve.
Kerítés kapu: kétszárnyú automata kapu.
Garázskapu: Kling 200 ipari szekcionált, ce minősített automata garázskapu.
Kaputelefon: Oda-vissza beszélő, videós rendszerű, a külső kapunál videós beengedő rendszerrel.
OKOSOTTHON:
Árnyékolástechnika okosotthon vezérléssel.
Riasztórendszer mobil okos applikációval.
Mennyezet fűtés-hűtési rendszer kerül kialakításra helyiségenkénti szabályozással és ngbs vezérléssel.
Ne feledje, az OTP Ingatlanpont kedvezményes pénzügyi konstrukciókkal áll ügyfelei rendelkezésére! VIP-szolgáltatást nyújtunk az OTP-hiteltermékek ügyintézésében.
Jogi és pénzügyi segítséget nyújtanak szakértőink, hogy az adásvétel folyamata gördülékeny legyen.
Részletes információkért hívjon bizalommal, akár hétvégén is!
Referencia szám: m271075 Hitel.hu - Hasonlítsa össze a bankok lakáshitel ajánlatait

