- >>
- eladó ingatlanok
- >>
- eladó ház
- >>
- eladó ház Budapest XXII. kerület
- >>
Eladó új építésű ház - Budapest XXII. kerület
| | |||
| Kedvencnek jelölöm | Elküldöm emailben | Megosztás | Szavazás |
| Kedvezményes lakáshitel ajánlatok | |||
| 199 900 000 HUF | |||
Ingatlan adatai
- Eladó vagy kiadó:Eladó
- Település:Budapest XXII. kerület
- Kategória:Ház
- Alkategória:Ikerház
- Alapterület:175 m2
- Telekterület:553 m2
- Csere is:Nem
- Hirdető:Cég
- Élő videón megtekinthető:Nem
- Építés éve:2025
- Szobaszám:4
- Állapot:Új építésű
- Hány szintes az ingatlan:Földszintes
- Tetőtér:nincs megadva
- Komfortosság:nincs megadva
- Parkolási lehetőség:nincs megadva
- Fűtés:Hőszivattyús
- Bútorozottság:nincs megadva
- Fényviszony:Jó
- Tájolás:DNY
- Kilátás:nincs megadva
- Internet:nincs megadva
- Akadálymentesített:nincs megadva
- Energiatanúsítvány:A+
- Villany:nincs megadva
- Víz:nincs megadva
- Gáz:nincs megadva
- Csatorna:nincs megadva
- Üzenetküldés
- Hívás

Referencia szám: HZ043980

Hitel ajánlat
Ingatlan hirdetés leírása
Eladó ház, Budapest 22. ker.
Prémium minimal ikerház eladó a 22. kerületben! Panorámás terasszal!Budapest 22. kerületének Óhegy keresett részen prémium minőségű ikerház épül. Az épületek dupla fallal és légréssel elválasztva, így semmilyen hang nem zavarhatja a nyugalmát. Szolgalmi úttal
Az ingatlant a 2025-ös év kedvezményes feltételeivel tudja megvásárolni, az építkezés céges.
CSOK Plusz igényelhető és Illeték kedvezmény egyaránt.
Foglalja le már most leendő otthonát 10%-al. Az építkezés hamarosan kezdetét veszi. a környéken rengeteg referencia ház, amit közösen megtekinthetünk, ami segíti a döntést.
Az ingatlan nettó hasznos területe 130, 58 m2 + 18, 54 m2 garázs, 3 db terasz 553 m2 kertkapcsolattal. a helyiségek napfényesek, köszönhetően a jó tájolásnak és a jó méretű egyedi nyílászáróknak.
Elosztását tekintve:
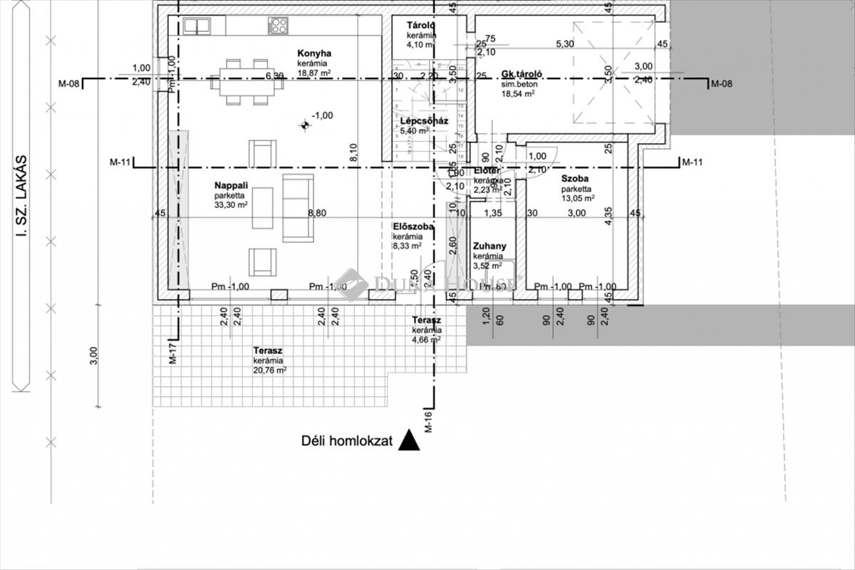
Földszint:
- Előszoba
- 1 jó méretű hálószoba
- Tágas, 52 m2-es amerikai konyhás nappali
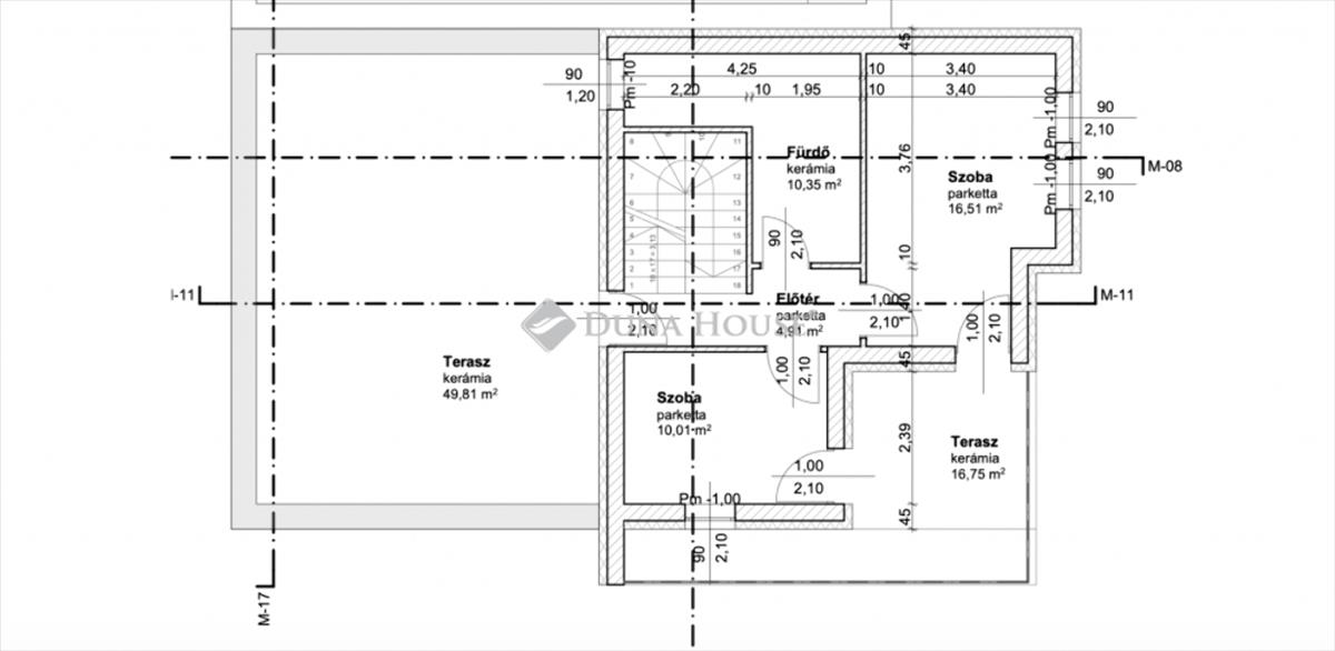
- Fürdőszoba
- Tároló
- 1 állásos garázs /kérhető szobának is /
- 20, 76 m2-es terasz
- 553 m2-es saját kert
Emelet:
- 2 szoba. Mindegyik szoba hangulatos terasszal / 49, 81 m2 és egy 16, 75 m2-es/, ahonnan hangulatos panoráma tárul elénk
- Fürdőszoba
EXTRÁK:
- Mennyezet hűtés-fűtés
- Hővisszanyerős szellőztető berendezés
- Elektromos alumínium redőnyök
Műszaki adatok:
- 30-as Porotherm tégla, 10 cm Ytong válaszfalak
- 15 cm grafitos homlokzati szigetelés
- Panasonic hőszivattyú 300 literes használati meleg víz tartállyal, minden lakásnak külön hőszivattyú berendezés
- h- tarifás mérőszekrény kialakítás
- Minden helyiségben padlófűtés
- Betoncserép
- 3 rétegű 6 légkamrás nyílászárók, kívül antracit kivitelben
- 2 db autónak kocsibeálló
- Riasztó előkészítése
- Szaniterek
- Hideg/meleg burkolatok ( 10 000 Ft/m2 meleg: 10 000 Ft/ m2 )
- Beltéri ajtók ( 100 000 Ft/ db )
- Bejárati ajtó
Ezek mind kiemelkedő minőségben és az átlagnál magasabb áron választhatóak. Árlista tőlem kérhető. Az építkezés megtekintése után minden a házzal kapcsolatos dokumentáció rendelkezésre áll.
Vállalkozó garantáltan megbízható, rugalmas, rengeteg referencia munkával, amit közösen megtudunk tekinteni a nagy döntés előtt.
Környék rendezett, minden perceken belül elérhető. Iskola, óvoda, bevásárlási lehetőségek, MO.
Várható átadás: 2026 Tavasz
További információkért hívjon bizalommal. Hitel.hu - Hasonlítsa össze a bankok lakáshitel ajánlatait

