+ 6 fotó

Eladó új építésű ház Budapest XXII. kerület
| |  |
| Kedvencbe | Megosztás | Árfigyelő |
- Eladó vagy kiadó:Eladó
- Település:Budapest XXII. kerület
- Kategória:Ház
- Alkategória:Ikerház
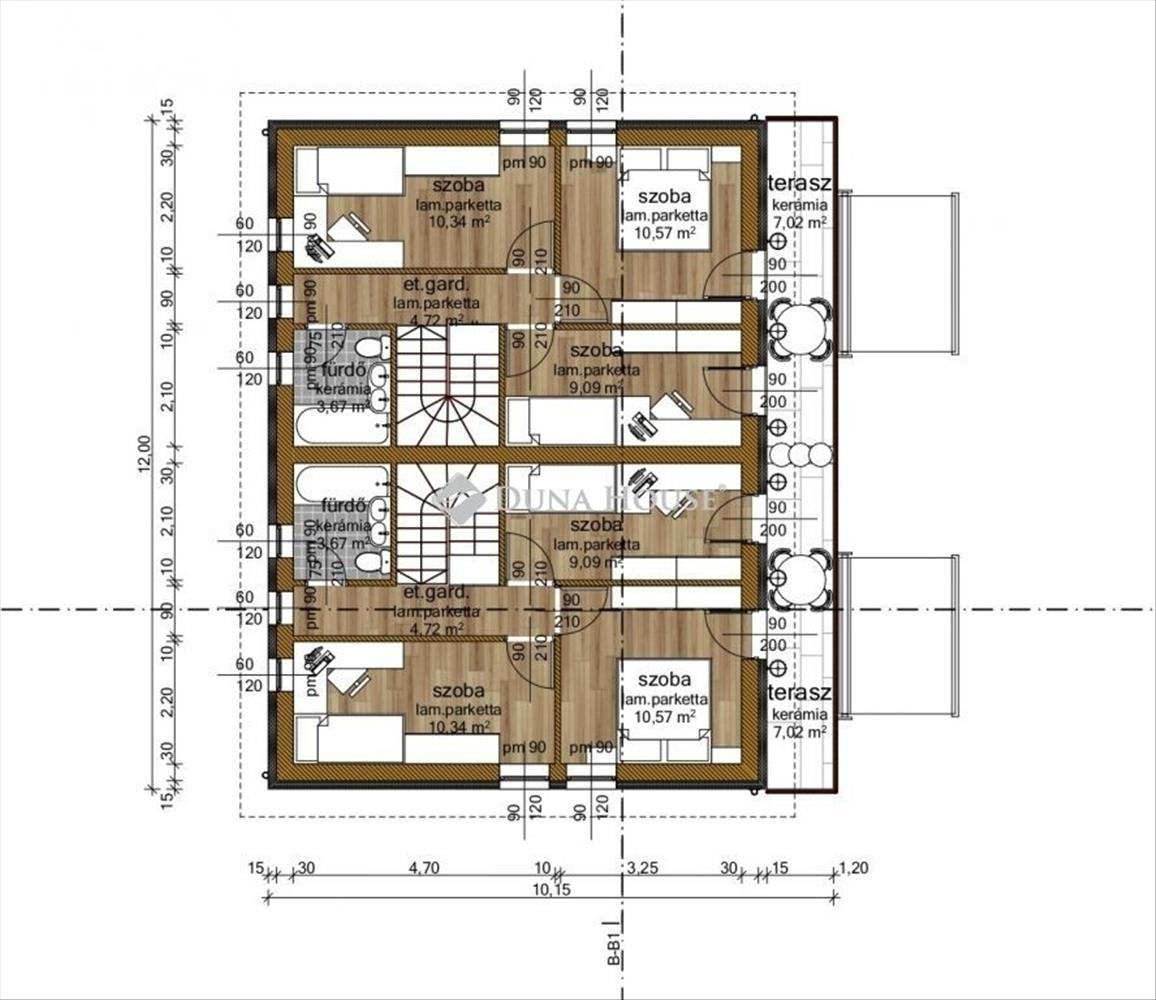
- Alapterület:96 m2
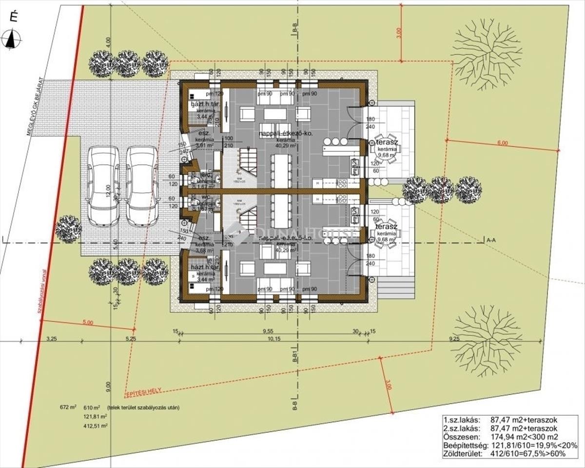
- Telekterület:300 m2
- Csere is:Nem
- Hirdető:Cég
- Élő videón megtekinthető:Nem
- Építés éve:2025
- Szobaszám:4
- Állapot:Új építésű
- Hány szintes az ingatlan:Földszintes
- Tetőtér:nincs megadva
- Komfortosság:nincs megadva
- Parkolási lehetőség:nincs megadva
- Fűtés:Hőszivattyús
- Bútorozottság:nincs megadva
- Fényviszony:Napfényes
- Tájolás:É
- Kilátás:nincs megadva
- Internet:nincs megadva
- Akadálymentesített:nincs megadva
- Energiatanúsítvány:nincs megadva
- Villany:nincs megadva
- Víz:nincs megadva
- Gáz:nincs megadva
- Csatorna:nincs megadva

Nemes Annamária
Mondd meg a hirdetőnek, hogy a megveszLAK-on találtad a hirdetést.
Referencia szám: HZ047403

Eladó ház, Budapest 22. ker.
**Újépítésű ikerházfél a 22. kerületben** Fedezze fel Budapest 22. kerületében ezt a különleges ajánlatot: egy újépítésű ikerházfelet, amely egyaránt ideális választás családoknak és befektetőknek. Az ingatlan a közkedvelt Bartók Béla utcában található, amely tökéletesen ötvözi a kertvárosi nyugalmat és a város közelségét. Tulajdonságok a nettó 87, 5 négyzetméteres lakótér kiváló tervezésű, két szinten elhelyezkedő otthon, amely négy szobával és egy tágas nappalival rendelkezik. a két terasz még több lehetőséget kínál a pihenésre vagy családi összejövetelekre. Emellett egy saját, 300 négyzetméteres kert és egy kocsibeálló is a rendelkezésére áll. Az energiatakarékos hőszivattyús rendszer garantálja az alacsony fűtési és hűtési költségeket, így hosszú távon fenntartható és gazdaságos megoldást kínál. Rugalmasság a kivitelezésbenJelen állapotában még lehetősége van a belső terek testreszabására, kiválaszthatja a burkolatokat és szanitereket, így teljesen az Ön igényeire szabhatja új otthonát. Az építkezést egy megbízható, számos referenciával rendelkező helyi építő cég végzi, biztosítva a minőségi kivitelezést. Kiváló infrastruktúra és elhelyezkedésElhelyezkedése ideális, hiszen könnyen elérhető a városközpont autóval és tömegközlekedéssel egyaránt. a közelben számos szolgáltatás áll rendelkezésre: iskola, óvoda, gyógyszertár, posta és boltok mind karnyújtásnyira találhatók. a tömegközlekedés kiváló: a 187-es és 941-es buszok megállói rövid sétatávolságra vannak, míg a Budafok vasútállomás gyors kapcsolatot biztosít a Déli pályaudvar felé. Az M0-s autópálya közelsége pedig megkönnyíti a közlekedést az agglomeráció és az ország többi része felé. Kérdése van? Forduljon hozzánk bizalommal!
FIX 3% lakáshitelre megvehető Hasonló ingatlan hirdetések