Eladó új építésű ház - Dabas
- INGYENES HIRDETÉS FELADÁS
Ingatlan adatai
- Eladó vagy kiadó:Eladó
- Település:Dabas
- Kategória:Ház
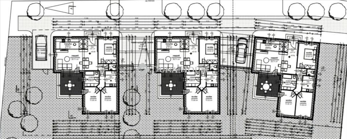
- Alkategória:Ikerház
- Alapterület:90 m2
- Telekterület:500 m2
- Csere is:Nem
- Hirdető:Cég
- Élő videón megtekinthető:Nem
- Építés éve:2026
- Szobaszám:4
- Állapot:Új építésű
- Hány szintes az ingatlan:Földszintes
- Tetőtér:nincs megadva
- Komfortosság:nincs megadva
- Pince:nincs megadva
- Parkolási lehetőség:nincs megadva
- Fűtés:Hőszivattyús
- Bútorozottság:nincs megadva
- Fényviszony:Napfényes
- Tájolás:DNY
- Kilátás:nincs megadva
- Internet:nincs megadva
- Klíma:nincs megadva
- Akadálymentesített:nincs megadva
- Energiatanúsítvány:nincs megadva
- Villany:Van
- Víz:Van
- Gáz:Telken belül
- Csatorna:Van
- Kapcsolatfelvétel

Rizmayer Mária
+36-(20)-211-4504
Mondd meg a hirdetőnek, hogy a megveszLAK-on találtad a hirdetést.
Referencia szám: HZ054574
Hitel ajánlatok
Ingatlan hirdetés leírása
Eladó ház, Dabas, Eladó új építésű ház - Dabas
Új építésű ikerház saját kertrésszel eladó! ! !
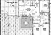
Dabason, kertvárosi környezetben mégis központhoz közel, nettó 90, 51 nm -es, amerikai konyha nappalis, 3 hálószobás otthon, 500 nm -es telken várja leendő tulajdonosát!
Várható kulcsrakész átadás: 2026 ősz!
Műszaki tartalom:
- 30-as Porotherm tégla
- 15 cm-es homlokzati szigetelés
- 30 cm födém szigetelés
- Bramac betoncserép
- 3 rétegű hőszigetelt üveggel ellátott műanyag nyílászárók
- hőszivattyú
- mindenhol padlófűtés
- inverteres klíma
- Hideg/meleg burkolatok 6500 Ft/nm áron választhatók
Budapest autóval, 30 percen belül elérhető, volánbusszal a Népliget 40-45 perc. Bölcsőde, óvoda, gimnázium, egészségügyi központ, szépségszalon. . , És minden igényt kielégítő vásárlási lehetőségek adottak!
Igen ez lehet az Ön otthona! Jöjjön, nézzük meg együtt és tegyen rá ajánlatot!
Amennyiben ajánlatom megfelelne az elvárásainak, de nem rendelkezik a kiválasztott ingatlan vételárával, a Credipass hitelügyintéző munkatársai díjmentesen biztosítják a legkedvezőbb, személyre szabott hitelkonstrukciót a kedves vevők számára.
Keressen bizalommal a hét bármely napján hétvégén és ünnepnapokon is!
Érd. : Rizmayer Mária +36202114504 email: rizmayer. Maria@dh. Hu
Referencia szám: hz054574 FIX 3% lakáshitelre megvehető
Tetszett ez az eladó Dabasi új építésű 4 szobás ikerház? Hívd fel a hirdetőt most, és tudj meg mindent erről az eladó ikerházról! Ha gondolod nézelődj tovább az eladó ház Dabas oldal hirdetései között. Ennek az eladó háznak az ára 104900000 Ft és mivel az alapterülete 90 négyzetméter, ezért az átlagos négyzetméterára 1165556 HUF/m2.
Az eladó házak menüpontban további hirdetések között is böngészhetsz. Ha van kedved, akkor böngészhetsz a Rizmayer Mária összes hirdetése között, vagy akár a/az Duna House Villa Gyömrő összes hirdetése között is.

