Eladó új építésű ház - Dánszentmiklós
- INGYENES HIRDETÉS FELADÁS
Ingatlan adatai
- Feladva:61 napja a megveszLAK-on
- Eladó vagy kiadó:Eladó
- Település:Dánszentmiklós
- Kategória:Ház
- Alkategória:Ikerház
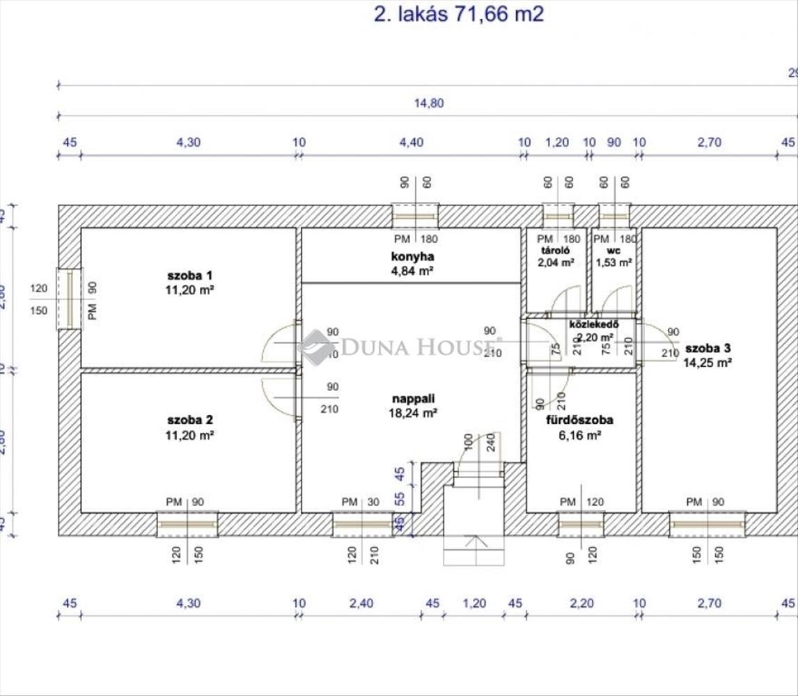
- Alapterület:71 m2
- Telekterület:400 m2
- Csere is:Nem
- Hirdető:Cég
- Élő videón megtekinthető:Nem
- Építés éve:2026
- Szobaszám:4
- Állapot:Új építésű
- Hány szintes az ingatlan:Földszintes
- Tetőtér:nincs megadva
- Komfortosság:nincs megadva
- Pince:nincs megadva
- Parkolási lehetőség:nincs megadva
- Fűtés:Hőszivattyús
- Bútorozottság:nincs megadva
- Fényviszony:Napfényes
- Tájolás:DNY
- Kilátás:nincs megadva
- Internet:nincs megadva
- Klíma:nincs megadva
- Akadálymentesített:nincs megadva
- Energiatanúsítvány:A
- Villany:Van
- Víz:Van
- Gáz:Utcában
- Csatorna:Van
- Kapcsolatfelvétel

Durnics Tímea
+36-(30)-227-9337
Mondd meg a hirdetőnek, hogy a megveszLAK-on találtad a hirdetést.
Referencia szám: HZ088459
Hitel ajánlatok
Ingatlan hirdetés leírása
Eladó ház, Dánszentmiklós
Prémium minőségű új építésű ikerház felek Dánszentmiklós legújabb LAKÓPARKJÁBANMegbízható kivitelezőtől Várható átadás: 2026. SzeptemberHa olyan új otthont keresel, ahol nemcsak a megjelenés, hanem a műszaki tartalom is valódi értéket képvisel, akkor ez a Dánszentmiklósi lakópark kiváló választás. a képek látványtervek, melyek a tervezett épületek stílusát és megjelenését mutatják be. a képek között referencia képek is láthatóak. a kivitelezést több mint 20 éves szakmai tapasztalattal rendelkező, profi kivitelező végzi, aki hosszú távon is megbízható, minőségi otthonokat épít. ⸻ Elérhető ingatlanok 71 nm -es ikerház fél nappali + 3 hálószoba 400 m² saját telekrész fedett autóbeállóIdeális választás fiatal pároknak, kisebb családnak vagy befektetésnek. ⸻ Prémium műszaki tartalom ami valóban számít 30 cm vastag téglafalazat 15 cm-es homlokzati hőszigetelés, nemesvakolat záróréteggel Fa födém bramac tetőcserép időtálló, minőségi fedés Hőszivattyús fűtési rendszer Padlófűtés az egész házban Burkolatok 8. 000 Ft/m²-ig szabadon választhatók Modern nyílászárók Energiahatékony kialakítás, alacsony rezsiköltségAmi nagyon fontos nincsenek közös falak és közösen használt kert részekEz az otthon nem kompromisszum, hanem tudatos választás. ⸻ Lokáció DánszentmiklósDánszentmiklós egy nyugodt, családbarát, folyamatosan fejlődő település Pest megyében. Budapest kb. 30 Perc alatt elérhető autóval Helyben elérhető: iskola, óvoda, bölcsőde Orvosi ellátás biztosított Zöld környezet, tiszta levegő, barátságos közösség⸻ Új építésű otthon masszív szerkezettel, korszerű technológiával, saját 400 nm telekkel biztos alapokon. Ne maradj le, az ilyen műszaki tartalmú ingatlanok ritkák ebben az árkategóriában! Érdeklődj bizalommal, és foglald le időben! FIX 3% lakáshitelre megvehető
Tetszett ez az eladó Dánszentmiklósi új építésű 4 szobás ikerház? Hívd fel a hirdetőt most, és tudj meg mindent erről az eladó ikerházról! Ha gondolod nézelődj tovább az eladó ház Dánszentmiklós oldal hirdetései között. Ennek az eladó háznak az ára 65000000 Ft és mivel az alapterülete 71 négyzetméter, ezért az átlagos négyzetméterára 915493 HUF/m2.
Az eladó házak menüpontban további hirdetések között is böngészhetsz. Ha van kedved, akkor böngészhetsz a Durnics Tímea összes hirdetése között, vagy akár a/az Duna House Cegléd összes hirdetése között is.

