Eladó új építésű ház - Dánszentmiklós
- INGYENES HIRDETÉS FELADÁS
Ingatlan adatai
- Eladó vagy kiadó:Eladó
- Település:Dánszentmiklós
- Kategória:Ház
- Alkategória:Ikerház
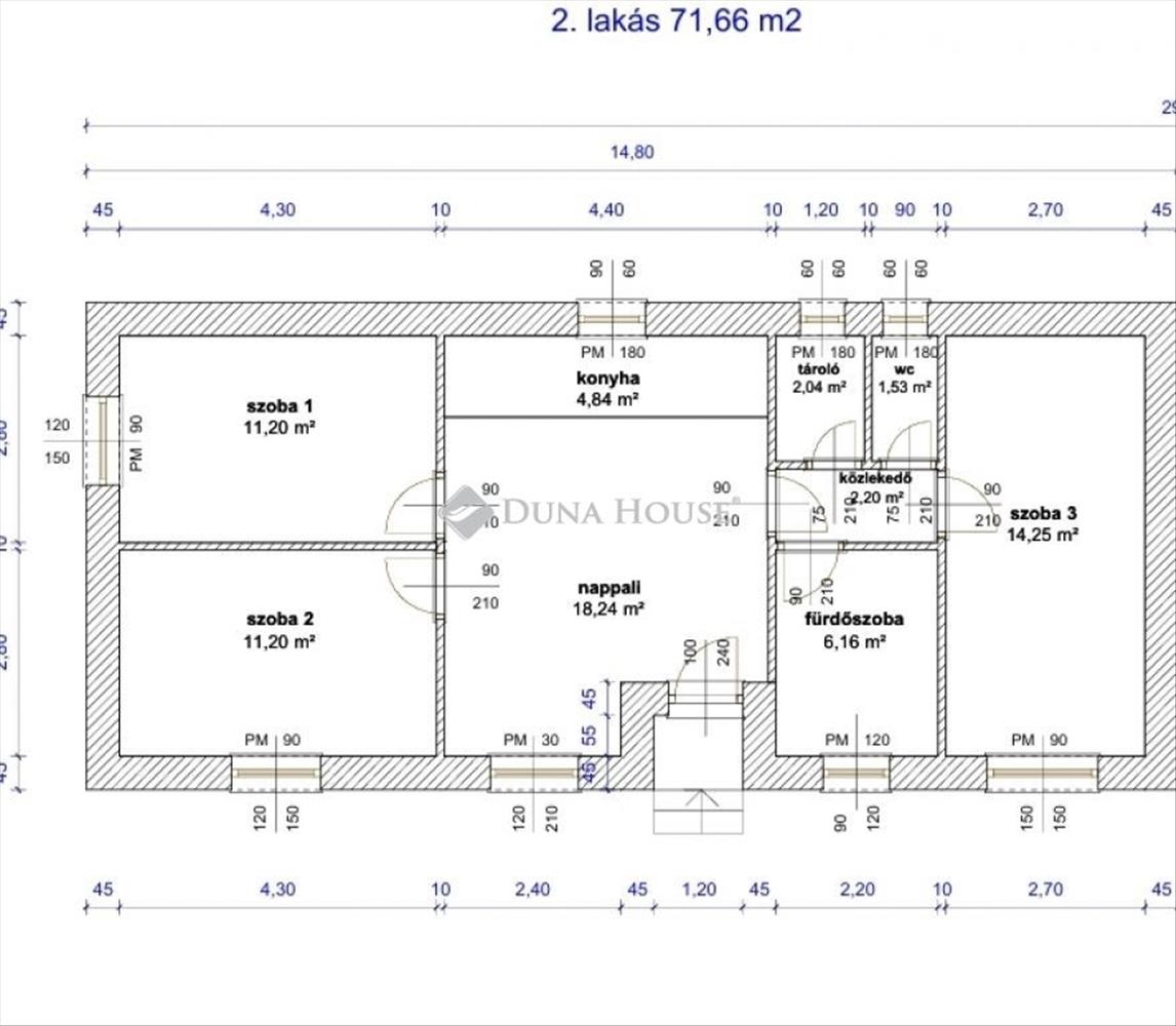
- Alapterület:71 m2
- Telekterület:400 m2
- Csere is:Nem
- Hirdető:Cég
- Élő videón megtekinthető:Nem
- Építés éve:2026
- Szobaszám:4
- Állapot:Új építésű
- Hány szintes az ingatlan:Földszintes
- Tetőtér:nincs megadva
- Komfortosság:nincs megadva
- Pince:nincs megadva
- Parkolási lehetőség:nincs megadva
- Fűtés:Hőszivattyús
- Bútorozottság:nincs megadva
- Fényviszony:Napfényes
- Tájolás:DNY
- Kilátás:nincs megadva
- Internet:nincs megadva
- Klíma:nincs megadva
- Akadálymentesített:nincs megadva
- Energiatanúsítvány:nincs megadva
- Villany:nincs megadva
- Víz:nincs megadva
- Gáz:nincs megadva
- Csatorna:nincs megadva
- Kapcsolatfelvétel

Aczél Adrienn
+36-(20)-488-1084
Mondd meg a hirdetőnek, hogy a megveszLAK-on találtad a hirdetést.
Referencia szám: HZ088459
Hitel ajánlatok
Ingatlan hirdetés leírása
Eladó ház, Dánszentmiklós
Prémium minőségű új építésű ikerház felek Dánszentmiklós legújabb LAKÓPARKJÁBAN
Megbízható kivitelezőtől
Várható átadás: 2026. Szeptember
Ha olyan új otthont keresel, ahol nemcsak a megjelenés, hanem a műszaki tartalom is valódi értéket képvisel, akkor ez a Dánszentmiklósi lakópark kiváló választás.
A képek látványtervek, melyek a tervezett épületek stílusát és megjelenését mutatják be.
A képek között referencia képek is láthatóak.
A kivitelezést több mint 20 éves szakmai tapasztalattal rendelkező, profi kivitelező végzi, aki hosszú távon is megbízható, minőségi otthonokat épít.
>
Elérhető ingatlanok
71 nm -es ikerház fél
nappali + 3 hálószoba
400 m² saját telekrész
fedett autóbeálló
Ideális választás fiatal pároknak, kisebb családnak vagy befektetésnek.
>PRÉMIUM műszaki tartalom ami valóban SZÁMÍT
30 cm vastag téglafalazat
15 cm-es homlokzati hőszigetelés, nemesvakolat záróréteggel
Fa födém
BRAMAC tetőcserép időtálló, minőségi fedés
Hőszivattyús fűtési rendszer
Padlófűtés az egész házban
Burkolatok 8. 000 Ft/m²-ig szabadon választhatók
Modern nyílászárók
Energiahatékony kialakítás, alacsony rezsiköltség
Ami nagyon fontos nincsenek közös falak és közösen használt kert részek
Ez az otthon nem kompromisszum, hanem tudatos választás.
>
Lokáció Dánszentmiklós
Dánszentmiklós egy nyugodt, családbarát, folyamatosan fejlődő település Pest megyében.
Budapest kb. 30 Perc alatt elérhető autóval
Helyben elérhető: iskola, óvoda, bölcsőde
Orvosi ellátás biztosított
Zöld környezet, tiszta levegő, barátságos közösség
⸻
Új építésű otthon masszív szerkezettel, korszerű technológiával, saját 400 nm telekkel biztos alapokon.
Ne maradj le, az ilyen műszaki tartalmú ingatlanok ritkák ebben az árkategóriában!
Érdeklődj bizalommal, és foglald le időben!
Aczél Adrienn, Tel. : +36/20 488 1084 E-mail: aczel. Adrienn@dh. Hu
A Duna House teljes kínálatával kapcsolatban forduljon hozzám bizalommal.
Hitelügyintézés a legjobb feltételekkel és a leggyorsabban.
Eladás és vétel teljes körű ügyintézése, ingyenes tanácsadás, értékbecslés, megbízható ügyvédi háttér biztosítása.
Nézze meg facebook értékesítői oldalamat, ahol az új megbízásainkat láthatja és hasznos tippeket olvashat.
Https://www. Facebook. Com/misianadrienn
Referencia szám: hz088459 FIX 3% lakáshitelre megvehető
Tetszett ez az eladó Dánszentmiklósi új építésű 4 szobás ikerház? Hívd fel a hirdetőt most, és tudj meg mindent erről az eladó ikerházról! Ha gondolod nézelődj tovább az eladó ház Dánszentmiklós oldal hirdetései között. Ennek az eladó háznak az ára 68000000 Ft és mivel az alapterülete 71 négyzetméter, ezért az átlagos négyzetméterára 957746 HUF/m2.
Az eladó házak menüpontban további hirdetések között is böngészhetsz. Ha van kedved, akkor böngészhetsz a Aczél Adrienn összes hirdetése között, vagy akár a/az Duna House Villa Gyömrő összes hirdetése között is.

