- >>
- eladó ingatlanok
- >>
- eladó ház
- >>
- eladó ház Debrecen
- >>
Eladó új építésű ház - Debrecen
| | |||
| Kedvencnek jelölöm | Elküldöm emailben | Megosztás | Szavazás |
| FIX 3% lakáshitelre megvehető | |||
| 99 350 000 HUF | |||
Ingatlan adatai
- Eladó vagy kiadó:Eladó
- Település:Debrecen
- Kategória:Ház
- Alkategória:Ikerház
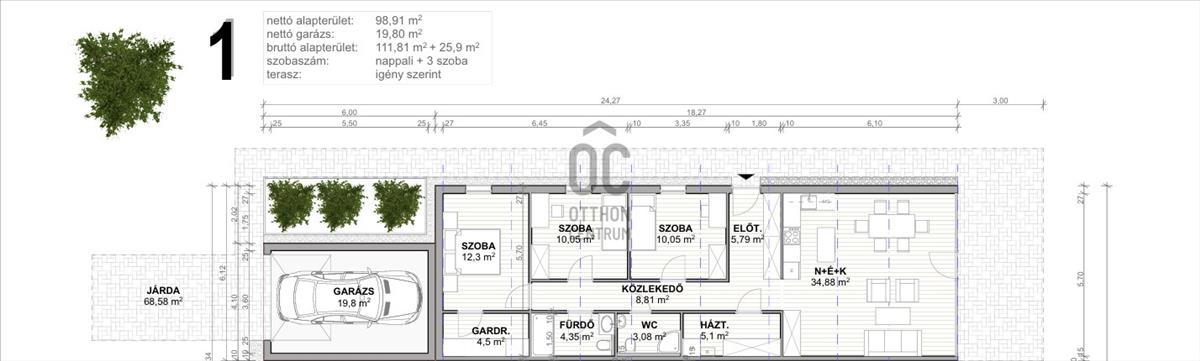
- Alapterület:143 m2
- Telekterület:977 m2
- Csere is:Nem
- Hirdető:Cég
- Élő videón megtekinthető:Nem
- Építés éve:2025
- Szobaszám:4
- Állapot:Új építésű
- Hány szintes az ingatlan:nincs megadva
- Tetőtér:nincs megadva
- Komfortosság:nincs megadva
- Parkolási lehetőség:nincs megadva
- Fűtés:nincs megadva
- Bútorozottság:nincs megadva
- Fényviszony:nincs megadva
- Tájolás:D
- Kilátás:nincs megadva
- Internet:nincs megadva
- Akadálymentesített:nincs megadva
- Energiatanúsítvány:nincs megadva
- Villany:Van
- Víz:Van
- Gáz:Nincs
- Csatorna:Van
- Üzenetküldés
- Hívás

Boruzsné Szabó Klára
Mondd meg a hirdetőnek, hogy a megveszLAK-on találtad a hirdetést.

Hitel ajánlat
Ingatlan hirdetés leírása
Debrecen Felső-Józsa városrészében egy új építésű, energiataka...
Debrecen Felső-Józsa városrészében egy új építésű, energiatakarékos családi ikerház, 977 m2-es telekkel eladó! Ha szeretne biztos lenni abban, hogy otthona minimális rezsiköltséggel hosszú távon fenntartható, akkor ez a hirdetés önnek szól! Az ingatlan nettó 99 m2 lakótérrel + 20 m2-es garázzsal rendelkezik. 3 Szoba+ amerikai konyhás nappali+ étkező, dupla fürdőszoba, tágas terek jellemzik, kiváló választás akár nagycsaládosok részére is!Az egyedi tervezésű, nagy üvegfelülethez nagy belmagasság párosul a nappali-konyha -étkező részen. Fűtése hőszivattyúval történik, amely a legmodernebb technológiát képviseli, így nemcsak környezetbarát, hanem gazdaságos megoldást is nyújt. a hűtésről klímaberendezés gondoskodik, amely a nyári hónapokban kellemes hőmérsékletet biztosít. a 3 fázis bevezetésre kerül, így kellő napelemekkel akár teljesen 0-ás rezsiköltséggel is fenntartható! Az ikerházak önálló falazattal, hangszigeteléssel ellátva.
Közlekedési lehetőségek kiválóak, az autópálya pillanatok alatt elérhető. Debrecen központja mindössze néhány percnyi autóútra található, tömegközlekedés is a közelben. a városrész jól ellátott, élelmiszerüzletek, bevásárló központok, iskolák, óvodák és minden más üzlet a központban.
Csok+-ra alkalmas, hitelezhető! Költözzön szeretteivel már idén ősszel!
Ez az ingatlan nem csupán egy új otthon, hanem egy életstílus, amely a modern kényelmet és a természet közelségét ötvözi minimális fenntartási költséggel!
További felvilágosításért várom megkeresését!
Debrecen, Józsa, eladó, ház, ikerház, 4 szoba, új építésű, a+, energiatakarékos, földszintes FIX 3% lakáshitelre megvehető

