Eladó új építésű ház Debrecen
| Kedvencbe | Megosztás | Árfigyelő |
| FIX 3% lakáshitelre megvehető | ||
| 150 000 000 HUF | ||
Ingatlan adatai
- Eladó vagy kiadó:Eladó
- Település:Debrecen
- Kategória:Ház
- Alkategória:Ikerház
- Alapterület:134 m2
- Telekterület:300 m2
- Csere is:Nem
- Hirdető:Cég
- Élő videón megtekinthető:Nem
- Építés éve:2024
- Szobaszám:5
- Állapot:Új építésű
- Hány szintes az ingatlan:Földszintes
- Tetőtér:nincs megadva
- Komfortosság:nincs megadva
- Parkolási lehetőség:Garázsban
- Fűtés:Gáz
- Bútorozottság:nincs megadva
- Fényviszony:Napfényes
- Tájolás:K
- Kilátás:nincs megadva
- Internet:nincs megadva
- Akadálymentesített:nincs megadva
- Energiatanúsítvány:nincs megadva
- Villany:Van
- Víz:Van
- Gáz:Van
- Csatorna:Van
- Üzenetküldés
- Hívás

Referencia szám: PR018525/HZ/21928

Hitel ajánlat
Ingatlan hirdetés leírása
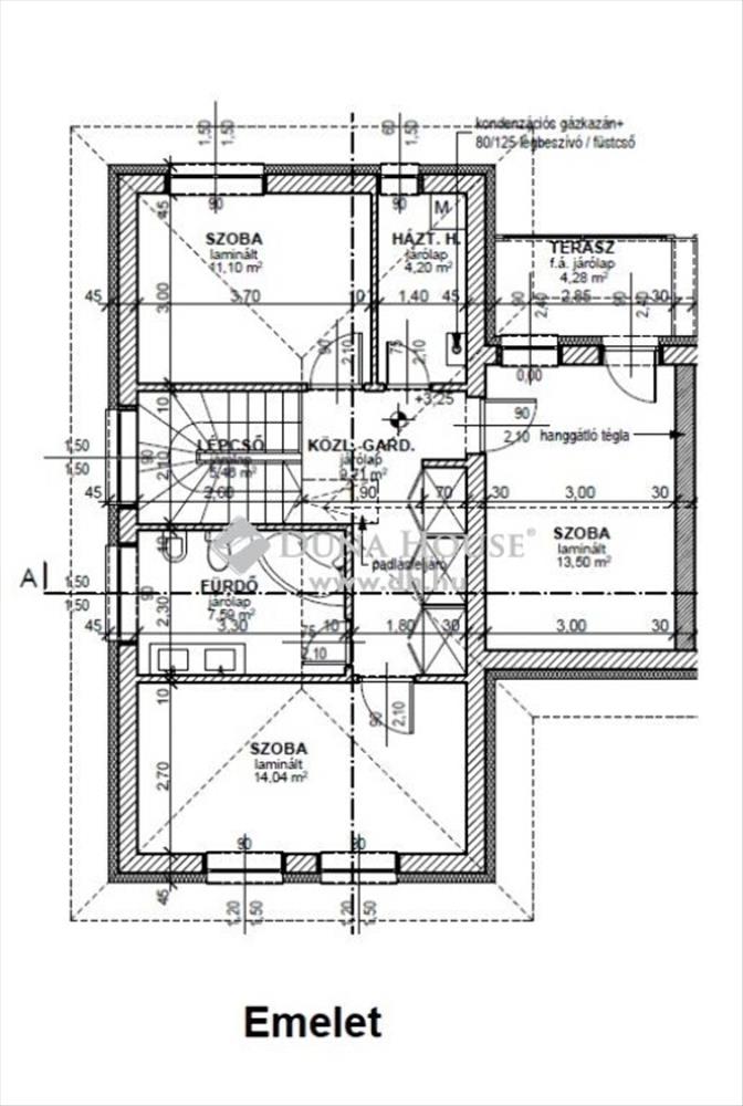
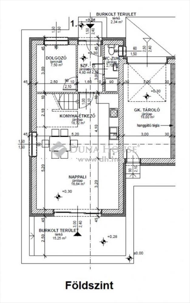
Kétszintes ikerházak Debrecen kertvárosi övezetében
A projektben eladó egy 133, 96 nm-es, belső kétszintes, nappali + 4 szobás, nagy teraszos, kertkapcsolattal rendelkező ikerház.Kétszintes ikerházak Debrecen kertvárosi övezetében
Debrecen egyik legkedveltebb kertvárosi részén, a Hatvan utcai kert városrész zöldövezetében kínálunk eladásra három, modern és elegáns, belső kétszintes ikerházat. a nappali + 4 szobás, teraszos ingatlanok tágas, világos életterekkel rendelkeznek, amelyek praktikus és gazdaságos kihasználhatóságukkal biztosítják a kellemes mindennapokat. Az ingatlanok kiemelkedő alaprajzi elrendezésüknek köszönhetően maximálisan kielégítik a mai kor igényeit, ideális életteret kínálva mind családoknak, mind pároknak. Az épület tervezése során elsődleges szempont volt a lakók kényelme és a fenntarthatóság, így a fűtés gázkazánnal történik. a házak elhelyezkedése tökéletesen kielégíti az itt lakók minden szükségletét: mindössze 5-10 perces távolságon belül bevásárlási lehetőségek, posta, gyógyszertár és egyéb fontos szolgáltatások találhatók. a kertvárosi környezet nyugalma és a közeli zöldterületek lehetőséget biztosítanak a pihenésre és a kikapcsolódásra, miközben a városközpont is könnyen elérhető. Ez a projekt ideális választás mindazok számára, akik Debrecen kertvárosi részén keresnek magas színvonalú, modern, kényelmes otthont, amely hosszú távon is megfelel az igényeiknek. Három ikerház épül egymás mellé, így ez a lehetőség különösen vonzó lehet azok számára, akik családtagjaikkal vagy barátaikkal közel szeretnének élni egymáshoz, mégis saját, önálló élettérre vágynak. Ne hagyja ki ezt a kivételes lehetőséget, hogy egy ilyen ingatlan tulajdonosa lehessen!
Referencia szám: pr018525/hz/21928 FIX 3% lakáshitelre megvehető

