Eladó új építésű ház Diósd
| Kedvencbe | Megosztás | Árfigyelő |
| Kedvezményes lakáshitel ajánlatok | ||
| 169 900 000 HUF | ||
Ingatlan adatai
- Eladó vagy kiadó:Eladó
- Település:Diósd
- Kategória:Ház
- Alkategória:Ikerház
- Alapterület:162 m2
- Telekterület:642 m2
- Csere is:Nem
- Hirdető:Cég
- Élő videón megtekinthető:Nem
- Építés éve:2025
- Szobaszám:5
- Állapot:Új építésű
- Hány szintes az ingatlan:Földszintes
- Tetőtér:nincs megadva
- Komfortosság:nincs megadva
- Parkolási lehetőség:nincs megadva
- Fűtés:Hőszivattyús
- Bútorozottság:nincs megadva
- Fényviszony:Jó
- Tájolás:DNY
- Kilátás:nincs megadva
- Internet:nincs megadva
- Akadálymentesített:nincs megadva
- Energiatanúsítvány:nincs megadva
- Villany:nincs megadva
- Víz:nincs megadva
- Gáz:nincs megadva
- Csatorna:nincs megadva
- Üzenetküldés
- Hívás

Lődiné Gombkötő Anita
Mondd meg a hirdetőnek, hogy a megveszLAK-on találtad a hirdetést.
Referencia szám: HZ079753

Hitel ajánlat
Ingatlan hirdetés leírása
Eladó ház, Diósd, Eladó új építésű ház - Diósd
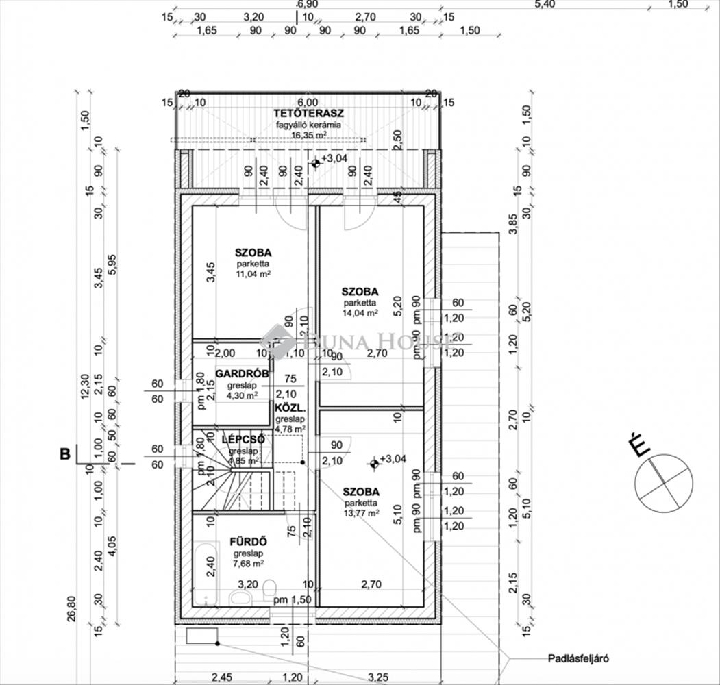
Magas műszaki tartalommal épülő ikerház ELADÓ! Csak garázzsal érintkeznek, lakótérrel nincs közös falazat, emeleten pedig egyáltalán nem érintkeznek! Most Öné lehet kedvező m2 áron egy nettó összesen 194 m2-es 2 szintes ikerház. Diósd Égettvölgy részén épül. Csak garázzsal érintkeznek. Tágas, világos terek köszönhetően az egyedi jó méretű nyílászáróknak, család barát elosztással. Nettó hasznos lakótér 131 m2 + 18, 30 m2 garázs + 2 db terasz / 20, 10 m2 + 16, 35 m2 /Hozzá tartozó telek mérete 642 m2. Az ingatlant a 2025-ös év kedvezményes feltételeivel is megtudja vásárolni, az építkezés céges. Foglalja le már most leendő otthonát 10%-al. Az építkezés szerkezetkész állapotnál tart így saját ízlése és igénye szerint választhatja ki a ház belső kinézetét illetve végig követheti az építkezést. Amennyiben egyedi igényei lennének az elosztással kapcsolatban a kivitelező rugalmas a változtatásokra. Elosztását tekintve:Földszint:- 1 állásos garázs- előszoba- fürdőszoba- kamra- 1 hálószoba saját fürdőszobával- tágas és világos amerikai konyhás nappali terasz és kertkapcsolattalEmelet:- 3 egész méretű hálószoba- fürdőszoba- gardrób- hangulatos, félig fedett 16, 35 m2-es teraszMűszaki adatok:- 30-as Porotherm tégla falazat, 10 cm tégla válaszfalak- 15 cm homlokzati szigetelés- Födém szigetelés: 2x15cm vastag szálas kőzetgyapot szigetelés- Hőszivattyú fűtés 230 literes indirect tárolóval- Minden helyiségben padlófűtés- Mennyezet hűtés- Hővisszanyerős szellőztető rendszer- Tetőn korcolt lemezfedés- 3 rétegű 5 légkamrás nyílászárók egyedi antracit színben- Riasztó, kamera, napelem előkészítés- Szaniterek- Hideg/meleg burkolatok ( 10 000 Ft/m2 meleg: 10 000 Ft/ m2 )- Beltéri ajtók ( 100 000 Ft/db )- 5 ponton záródó bejárati ajtóEzek mind kiemelkedő minőségben és az átlagnál magasabb áron választhatóak. Árlista tőlem kérhető. Az építkezés megtekintése után minden a házzal kapcsolatos dokumentáció rendelkezésre áll. EXTRÁK:- Ház homlokzatán díszkő burkolat- Térkövezés- Vízlágyító berendezés- Elektromos alumínium redőnyök a terasz ajtókon Környék rendezett, csendes, minden perceken belül elérhető autóval. Várható átadás: 2025 Év végeTovábbi információkért hívjon bizalommal. Hitel.hu - Hasonlítsa össze a bankok lakáshitel ajánlataitTetszett ez az eladó Diósdi új építésű 5 szobás ikerház? Hívd fel a hirdetőt most, és tudj meg mindent erről az eladó ikerházról! Ha gondolod nézelődj tovább az eladó ház Diósd oldal hirdetései között. Ennek az eladó háznak az ára 169900000 Ft és mivel az alapterülete 162 négyzetméter, ezért az átlagos négyzetméterára 1048765 HUF/m2.
Az eladó ház menüpontban további hirdetések között is böngészhetsz. Ha van kedved, akkor böngészhetsz a Lődiné Gombkötő Anita összes hirdetése között, vagy akár a/az Duna House Halásztelek összes hirdetése között is.

