Eladó új építésű ház Diósd
| Kedvencbe | Megosztás | Árfigyelő |
| Kedvezményes lakáshitel ajánlatok | ||
| 198 500 000 HUF | ||
Ingatlan adatai
- Eladó vagy kiadó:Eladó
- Település:Diósd
- Kategória:Ház
- Alkategória:Ikerház
- Alapterület:170 m2
- Telekterület:535 m2
- Csere is:Nem
- Hirdető:Cég
- Élő videón megtekinthető:Nem
- Építés éve:2024
- Szobaszám:5
- Állapot:Új építésű
- Hány szintes az ingatlan:Földszintes
- Tetőtér:nincs megadva
- Komfortosság:nincs megadva
- Parkolási lehetőség:nincs megadva
- Fűtés:Hőszivattyús
- Bútorozottság:nincs megadva
- Fényviszony:Jó
- Tájolás:DNY
- Kilátás:nincs megadva
- Internet:nincs megadva
- Akadálymentesített:nincs megadva
- Energiatanúsítvány:nincs megadva
- Villany:nincs megadva
- Víz:nincs megadva
- Gáz:nincs megadva
- Csatorna:nincs megadva
- Üzenetküldés
- Hívás

Referencia szám: HZ077770

Hitel ajánlat
Ingatlan hirdetés leírása
Eladó ház, Diósd, Eladó új építésű ház - Diósd
Ring Liget luxus lakópark az erdő közelségében!MAGAS műszaki tartalommal épülő önálló családi házak és ikerházak ELADÓAK!
1. 8 Hektáros területén, mely közigazgatásilag diósdhoz tartozik, összesen 16 kétlakásos és 1 egylakásos lakóépület kerül megépítésre 2 Ütemben. Az első ütemben 7 kétlakásos és 3 egylakásos épül, amiből már 3 db ingatlan elkelt.
Most Öné lehet idén bevezető áron egy nettó 170 m2-es 2 szintes ikerház. Csak garázzsal érintkeznek. Az ott megépülő új ingatlanokat egy saját térkövezett, sorompóval lezárt utcáról lehet majd megközelíteni.
Tágas, világos terek köszönhetően az egyedi jó méretű nyílászáróknak.
Hozzá tartozó telek mérete 535 m2.
Az ingatlant a 2024-es év kedvezményes feltételeivel is megtudja vásárolni, az építkezés céges.
Foglalja le már most leendő otthonát 10%-al. Az építkezés hamarosan kezdetét veszi, így saját ízlése és igénye szerint választhatja ki a ház belső kinézetét illetve végig követheti az építkezést.
Amennyiben egyedi igényei lennének az elosztással kapcsolatban a kivitelező rugalmas a változtatásokra.
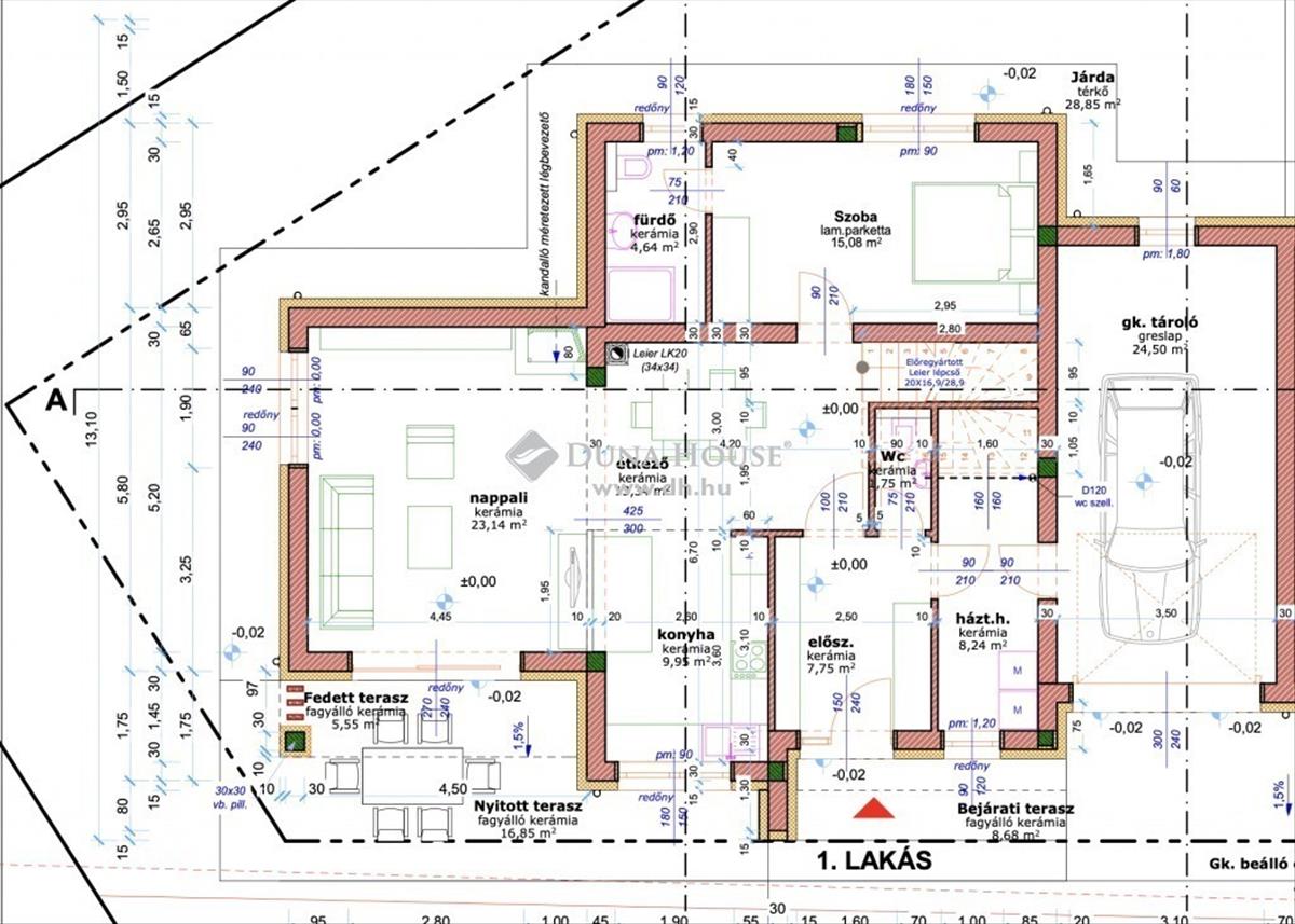
Elosztását tekintve:
Földszint:
- 1 állásos garázs
- előszoba
- külön mellékhelyiség
- háztartási helyiség
- 1 hálószoba saját fürdőszobával
- tágas és világos amerikai konyhás nappali teraszkapcsolattal
Emelet:
- jó méretű szülői háló, saját fürdővel és gardróbbal
- 2 egész méretű hálószoba
- fürdőszoba
- külön mellékhelyiség
Műszaki adatok:
- 30-as Porotherm X-therm tégla falazat, 10 cm tégla válaszfalak
- 20 cm homlokzati szigetelés
- Hőszivattyú fűtés 300 literes indirect tárolóval
- Minden helyiségben padlófűtés
- Tetőn korcolt lemezfedés
- 3 rétegű 5 légkamrás nyílászárók
- Riasztó, kamera, napelem előkészítés
- Szaniterek
- Hideg/meleg burkolatok ( 10 000 Ft/m2 meleg: 10 000 Ft/ m2 )
- Beltéri ajtók ( 100 000 Ft/db )
- 5 ponton záródó bejárati ajtó
Ezek mind kiemelkedő minőségben és az átlagnál magasabb áron választhatóak. Árlista tőlem kérhető. Az építkezés megtekintése után minden a házzal kapcsolatos dokumentáció rendelkezésre áll.
EXTRÁK:
- Ház homlokzatán díszkő burkolat
- Térkövezés
- Elektromos alumínium redőnyök
- 3 db klíma készülék
- Vízlágyító berendezés
Környék rendezett, csendes, minden perceken belül elérhető autóval.
Várható átadás: 2024 November
További információkért hívjon bizalommal. Hitel.hu - Hasonlítsa össze a bankok lakáshitel ajánlatait
Tetszett ez az eladó Diósdi új építésű 5 szobás ikerház? Hívd fel a hirdetőt most, és tudj meg mindent erről az eladó ikerházról! Ha gondolod nézelődj tovább az eladó ház Diósd oldal hirdetései között. Ennek az eladó háznak az ára 198500000 Ft és mivel az alapterülete 170 négyzetméter, ezért az átlagos négyzetméterára 1167647 HUF/m2.
Az eladó ház menüpontban további hirdetések között is böngészhetsz. Ha van kedved, akkor böngészhetsz a Bucalics Roxána összes hirdetése között, vagy akár a/az Duna House Érd, Riminyáki út összes hirdetése között is.

