Eladó új építésű ház Diósd
| Kedvencbe | Megosztás | Árfigyelő |
| Kedvezményes lakáshitel ajánlatok | ||
| 169 900 000 HUF | ||
Ingatlan adatai
- Eladó vagy kiadó:Eladó
- Település:Diósd
- Kategória:Ház
- Alkategória:Ikerház
- Alapterület:162 m2
- Telekterület:642 m2
- Csere is:Nem
- Hirdető:Cég
- Élő videón megtekinthető:Nem
- Építés éve:2025
- Szobaszám:5
- Állapot:Új építésű
- Hány szintes az ingatlan:Földszintes
- Tetőtér:nincs megadva
- Komfortosság:nincs megadva
- Parkolási lehetőség:nincs megadva
- Fűtés:Hőszivattyús
- Bútorozottság:nincs megadva
- Fényviszony:Jó
- Tájolás:DNY
- Kilátás:nincs megadva
- Internet:nincs megadva
- Akadálymentesített:nincs megadva
- Energiatanúsítvány:nincs megadva
- Villany:nincs megadva
- Víz:nincs megadva
- Gáz:nincs megadva
- Csatorna:nincs megadva
- Üzenetküldés
- Hívás

Referencia szám: HZ079753

Hitel ajánlat
Ingatlan hirdetés leírása
Eladó ház, Diósd, Eladó új építésű ház - Diósd
Eladók Diósd égettvölgy részén, magas műszaki tartalommal épülő IKERHÁZAK!TELEK: 642 m2
INGATLAN:131 m2+GARÁZS 18, 3 m2+ 2 terasz 28, 35 m2+16, 35 m2
KÉSZÜLTSÉG fok:80 %
KIVÁLÓ minőségben ÉPÍTETT!
NÉZZE meg, szeressen BELE!
1. IKERHÁZ***159. 900. 000 Ft***
2. IKERHÁZ***169. 900. 000 Ft***
***+36 30 202 9547***
Csak garázzsal érintkeznek,
Lakótérrel nincs közös falazat,
Emeleten pedig egyáltalán nem érintkeznek!
Most Öné lehet kedvező m2 áron egy nettó összesen 194 m2-es 2 szintes ikerház,
Diósd Égettvölgy részén épül,
CSAK garázzsal ÉRINTKEZNEK,
Tágas, világos terek köszönhetően az egyedi jó méretű nyílászáróknak, család barát elosztással,
Nettó hasznos lakótér 131 m2+18, 30 m2 garázs+2 db terasz /28, 35 m2+ 16, 35 m2 /,
Hozzá tartozó telek mérete 642 m2,
Az ingatlanokat kedvezményes hitelfeltételekkel tudja megvásárolni!
Az építkezés céges,
Foglalja le már most leendő otthonát!
Amennyiben egyedi igényei lennének az elosztással kapcsolatban a kivitelező rugalmas a változtatásokra,
Elosztását tekintve:
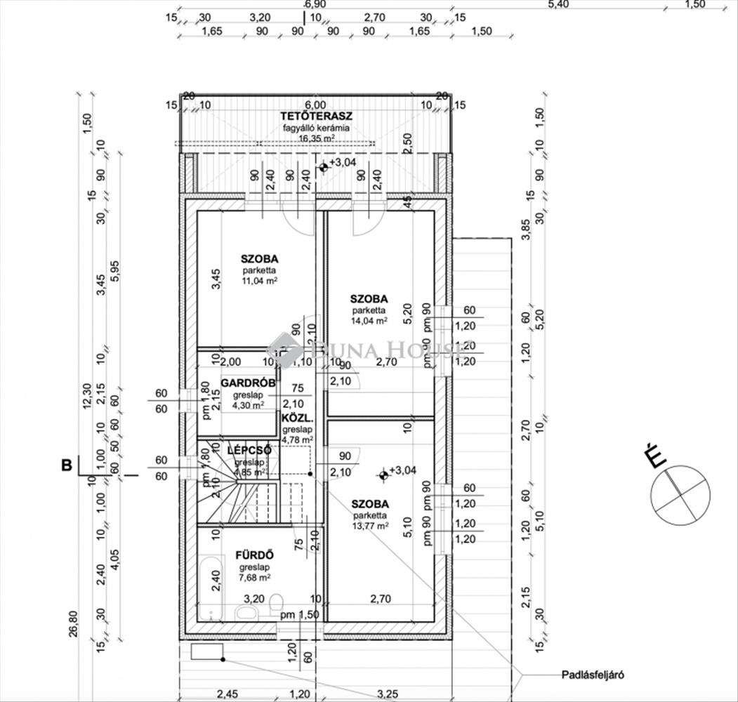
Földszint:
*1 Állásos garázs,
*Előszoba,
*Külön mellékhelyiség,
*Háztartási helyiség,
*Hálószoba saját fürdőszobával,
*Tágas és világos amerikai konyhás nappali, terasz és kertkapcsolattal,
Emelet:
*3 Egész méretű hálószoba,
*Fürdőszoba,
*Gardrób,
*Hangulatos, félig fedett 16, 35 m2-es terasz,
Műszaki adatok:
*30-as Porotherm tégla falazat,
*10 cm tégla válaszfalak,
*15 cm Homlokzati szigetelés,
*Födém szigetelés: 2x15cm vastag szálas kőzetgyapot szigetelés,
*Hőszivattyú fűtés 230 literes indirekt tárolóval,
*Minden helyiségben padlófűtés,
*Mennyezet hűtés,
*Hővisszanyerős szellőztető rendszer,
*Tetőn korcolt lemezfedés,
*3 Rétegű 5 légkamrás nyílászárók egyedi antracit színben,
*Riasztó, kamera, napelem előkészítés,
*Szaniterek,
*Hideg/meleg burkolatok (10 000 Ft/m2 meleg: 10 000 Ft/ m2),
*Beltéri ajtók (100 000 Ft/db),
*5 Ponton záródó bejárati ajtó,
Ezek mind kiemelkedő minőségben és az átlagnál magasabb áron választhatóak,
Árlista tőlem kérhető,
Az építkezés megtekintése után minden, a házzal kapcsolatos dokumentáció rendelkezésre áll,
Környék rendezett, csendes, minden perceken belül elérhető autóval,
Várható átadás: Szerződésben megállapodottaknak megfelelően,
EXTRÁK:
*Ház homlokzatán díszkő burkolat,
*Térkövezés,
*Elektromos alumínium redőnyök,
1. IKERHÁZ***159. 900. 000 Ft***
2. IKERHÁZ***169. 900. 000 Ft***
További információért és ha időpontot szeretne egyeztetni a megtekintéssel kapcsolatban, forduljon hozzám bizalommal, a hét minden napján elérhető vagyok!
Várom megtisztelő hívását!
Szlávik Mária +36 30 202 9547
Érd: Szlávik Mária : 0630 2029547
Referencia szám: hz079753-ml Hitel.hu - Hasonlítsa össze a bankok lakáshitel ajánlatait

