- >>
- eladó ingatlanok
- >>
- eladó ház
- >>
- eladó ház Dömsöd
- >>
Eladó befejezetlen ház - Dömsöd
| | |||
| Kedvencnek jelölöm | Elküldöm emailben | Megosztás | Szavazás |
| FIX 3% lakáshitelre megvehető | |||
| 49 900 000 HUF | |||
Ingatlan adatai
- Eladó vagy kiadó:Eladó
- Település:Dömsöd
- Kategória:Ház
- Alkategória:Ikerház
- Alapterület:64 m2
- Telekterület:194 m2
- Csere is:Nem
- Hirdető:Cég
- Élő videón megtekinthető:Nem
- Építés éve:2026
- Szobaszám:3
- Állapot:Befejezetlen
- Hány szintes az ingatlan:Földszintes
- Tetőtér:nincs megadva
- Komfortosság:nincs megadva
- Parkolási lehetőség:Beállóban
- Fűtés:nincs megadva
- Bútorozottság:nincs megadva
- Fényviszony:nincs megadva
- Tájolás:nincs megadva
- Kilátás:nincs megadva
- Internet:nincs megadva
- Akadálymentesített:nincs megadva
- Energiatanúsítvány:nincs megadva
- Villany:Van
- Víz:Van
- Gáz:Van
- Csatorna:Van
- Üzenetküldés
- Hívás

Kémeri-Szekernyés Tímea
Mondd meg a hirdetőnek, hogy a megveszLAK-on találtad a hirdetést.

Hitel ajánlat
Ingatlan hirdetés leírása
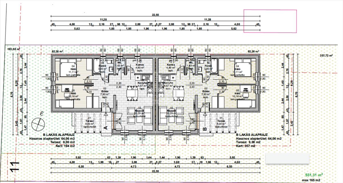
Eladó ikerház Dömsödön, a Dunavecsei út környékén.
A két fél ...
Eladó ikerház Dömsödön, a Dunavecsei út környékén. A két fél között a telek mérete miatt árkülönbség van
A Lakás - 64, 06 m2, telekméret: 194 m2 - ára 49. 900. 000 Ft
B Lakás - 64, 06 m2, telekméret 357 m2 - ára 50. 900. 000 Ft
Az ingatlan jelenleg építés alatt áll és nappali kapcsolatos lesz!
A ház fűtéséről hőszivattyú gondoskodik.
Összesen 2 szoba és nappalis lesz az ikerház.
Várható átadási idő 2026 nyár.
Amennyiben szeretne egy teljesen új és korszerűen épített energiatakarékos otthonba költözni, ne habozzon, hívjon bizalommal!
FINANSZÍROZÁS:
Nálunk mindent egy helyen intézhet:
- hivatalos ingatlanközvetítés;
- szakszerű jogi képviselet;
- profi csok-plusz, és hitelügyintézés: 16 Bank, több mint 100 konstrukció;
VÁROM megtisztelő HÍVÁSÁT!
A részletes adatvédelmi tájékoztató folyamatosan elérhető a oldalon. FIX 3% lakáshitelre megvehető

