Eladó új építésű ház - Dömsöd
- INGYENES HIRDETÉS FELADÁS
Ingatlan adatai
- Feladva:60 napja a megveszLAK-on
- Eladó vagy kiadó:Eladó
- Település:Dömsöd
- Kategória:Ház
- Alkategória:Ikerház
- Alapterület:93 m2
- Telekterület:226 m2
- Csere is:Nem
- Hirdető:Cég
- Élő videón megtekinthető:Nem
- Építés éve:2026
- Szobaszám:4
- Állapot:Új építésű
- Hány szintes az ingatlan:nincs megadva
- Tetőtér:nincs megadva
- Komfortosság:nincs megadva
- Pince:nincs megadva
- Parkolási lehetőség:nincs megadva
- Fűtés:nincs megadva
- Bútorozottság:nincs megadva
- Fényviszony:nincs megadva
- Tájolás:DNY
- Kilátás:nincs megadva
- Internet:nincs megadva
- Klíma:nincs megadva
- Akadálymentesített:nincs megadva
- Energiatanúsítvány:nincs megadva
- Villany:Van
- Víz:Van
- Gáz:Nincs
- Csatorna:Van
- Kapcsolatfelvétel

Joó Krisztina
+36-(70)-469-3111
Mondd meg a hirdetőnek, hogy a megveszLAK-on találtad a hirdetést.
Hitel ajánlatok
Ingatlan hirdetés leírása
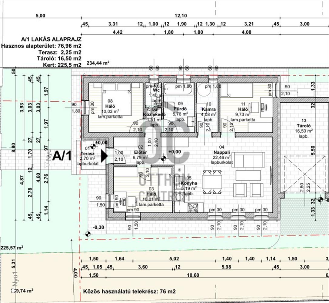
Dömsödön eladó • újépítésű • ikerház első része • nettó 76,96...
Dömsödön eladó
• új építésű
• ikerház első része
• nettó 76, 96m2, bruttó 93, 46 m2
• amerikai konyhás nappali + 3 hálószoba
• fűtés: hőszivattyú + padlófűtés
• 15 cm grafitos szigetelés
• gres kerámia és laminált parketta
• telek: 225, 5 m2
• terasz: 2, 7 m2 FIX 3% lakáshitelre megvehető
Tetszett ez az eladó Dömsödi új építésű 4 szobás ikerház? Hívd fel a hirdetőt most, és tudj meg mindent erről az eladó ikerházról! Ha gondolod nézelődj tovább az eladó ház Dömsöd oldal hirdetései között. Ennek az eladó háznak az ára 54900000 Ft és mivel az alapterülete 93 négyzetméter, ezért az átlagos négyzetméterára 590323 HUF/m2.
Az eladó házak menüpontban további hirdetések között is böngészhetsz. Ha van kedved, akkor böngészhetsz a Joó Krisztina összes hirdetése között, vagy akár a/az Otthon Centrum Szigethalom összes hirdetése között is.

