Eladó új építésű ház - Dömsöd
- INGYENES HIRDETÉS FELADÁS
Ingatlan adatai
- Eladó vagy kiadó:Eladó
- Település:Dömsöd
- Kategória:Ház
- Alkategória:Ikerház
- Alapterület:77 m2
- Telekterület:481 m2
- Csere is:Nem
- Hirdető:Cég
- Élő videón megtekinthető:Nem
- Építés éve:2026
- Szobaszám:4
- Állapot:Új építésű
- Hány szintes az ingatlan:Földszintes
- Tetőtér:Nem beépíthető
- Komfortosság:Összkomfortos
- Pince:Nincs
- Parkolási lehetőség:Udvaron
- Fűtés:Hőszivattyús
- Bútorozottság:Bútorozatlan
- Fényviszony:Jó
- Tájolás:DK
- Kilátás:Udvari
- Internet:nincs megadva
- Klíma:Van
- Akadálymentesített:Nem akadálymentesített
- Energiatanúsítvány:A+
- Villany:Van
- Víz:Van
- Gáz:Utcában
- Csatorna:Van
- Kapcsolatfelvétel

Bicski Hajnalka
+36-(30)-701-0350
Mondd meg a hirdetőnek, hogy a megveszLAK-on találtad a hirdetést.
Referencia szám: 1242
Hitel ajánlatok
Ingatlan hirdetés leírása
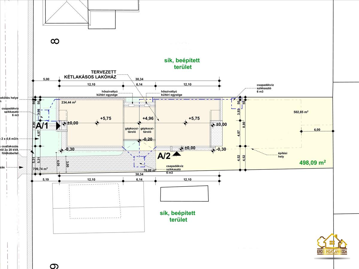
Dömsödön tárolóval érintkező 3 szoba+nappalis ikerházi lakás!
Eladó Dömsödön egy új építésű, nettó 77 m² alapterületű, egyszintes, hátsó ikerházi lakás.
A lakás belső elrendezése rendkívül praktikus és kényelmes, amerikai konyhás nappali, 3 hálószoba, kamra, fürdő, külön wc, előszoba és közlekedő áll rendelkezésre. a nappalihoz egy 11 m²-es terasz kapcsolódik.
A lakások kizárólag a 16 m²-es külső tárolóval érintkeznek!
A saját elkerített telek nagysága 481 m².
Az ingatlan 30-as téglából, 15 cm-es külső hőszigeteléssel, fújt cellulóz födémszigeteléssel, 3 rétegű műanyag nyílászárókkal, betoncserép fedéssel épül.
Melegvízellátását és fűtését megújuló energiás, hőszivattyús rendszer biztosítja, a hálószobákban radiátoros, a többi helyiségben padlófűtéses hőleadással. a lakás H-tarifás órával és 1x32 a teljesítményű villanyórával kerül átadásra.
Energetikai besorolása A+
A burkolatok igény szerint választhatók, 4 000 Ft/m²-ig.
Az ár tartalmazza az utcafronti díszkerítést, térkövezett járdát és kocsibeállót.
A helyi busz megállója, bevásárlási lehetőség, iskola 10 perc sétára található.
CSOK és 3 %-os Otthon Start hitel igényelhető!
Várható átadás: 2026 ősz
Bővebb információért keressen bizalommal! FIX 3% lakáshitelre megvehető
Tetszett ez az eladó Dömsödi új építésű 4 szobás ikerház? Hívd fel a hirdetőt most, és tudj meg mindent erről az eladó ikerházról! Ha gondolod nézelődj tovább az eladó ház Dömsöd oldal hirdetései között. Ennek az eladó háznak az ára 66900000 Ft és mivel az alapterülete 77 négyzetméter, ezért az átlagos négyzetméterára 868831 HUF/m2.
Az eladó házak menüpontban további hirdetések között is böngészhetsz. Ha van kedved, akkor böngészhetsz a Bicski Hajnalka összes hirdetése között.

