Eladó újszerű állapotú ház Dunaharaszti
| Kedvencbe | Megosztás | Árfigyelő |
| Kedvezményes lakáshitel ajánlatok | ||
| 179 900 000 HUF | ||
Ingatlan adatai
- Eladó vagy kiadó:Eladó
- Település:Dunaharaszti
- Kategória:Ház
- Alkategória:Ikerház
- Alapterület:158 m2
- Telekterület:435 m2
- Csere is:Nem
- Hirdető:Cég
- Élő videón megtekinthető:Nem
- Szobaszám:5
- Állapot:Újszerű, kitűnő
- Hány szintes az ingatlan:2 szintes
- Tetőtér:nincs megadva
- Komfortosság:nincs megadva
- Pince:Nincs
- Parkolási lehetőség:Beállóban
- Fűtés:Gáz
- Bútorozottság:Részben bútorozott
- Fényviszony:nincs megadva
- Tájolás:nincs megadva
- Kilátás:nincs megadva
- Internet:Optikai
- Klíma:Van
- Akadálymentesített:nincs megadva
- Energiatanúsítvány:nincs megadva
- Villany:Van
- Víz:Van
- Gáz:Van
- Csatorna:Van
- Rezsi:35 000 Ft
- Üzenetküldés
- Hívás

Hitel ajánlat
Ingatlan hirdetés leírása
Álom otthon Dunaharaszti Bezerédi lakóparkjában
Álom otthon! ! ! ! Siessen, mert gyorsan elkel! !TÓPART mellett kétszintes nappali + 4 hálós, energiatakarékos ikerház, csodás környezetben eladó!
Dunaharaszti legkedveltebb részén, a Bezerédi lakóparkban, csendes, zöld környezetben, eladó 158 nm-es, nappali + 4 hálós gyönyörű ingatlan 435 nm-es telekkel, alacsony REZSIVEL! !
Az ingatlan területére két kapun keresztül is bejuthatunk. a telekre akár több gépkocsinak is lehetősége van beállni. a ház riasztórendszerrel van ellátva. Az ingatlan hatalmas ablakai a hátsó kertre néznek. Az ablakokon szúnyogháló és redőny található.
2010-Ben, 44 cm-es Porotherm téglából épült, így kimagasló hőszigetelő tulajdonsággal rendelkezik a ház. Minden szoba klímaberendezéssel van ellátva.
A sok méretes ablaknak köszönhetően nagyon világos a nappali. a konyha felszereltsége: beépített sütő -és főzőlap, beépített hűtő -és mosogatógép. a beépített konyhabútor és a hozzá tartozó teljes felszereltség a vételár részét képezik, ahogy az összes bútor is.
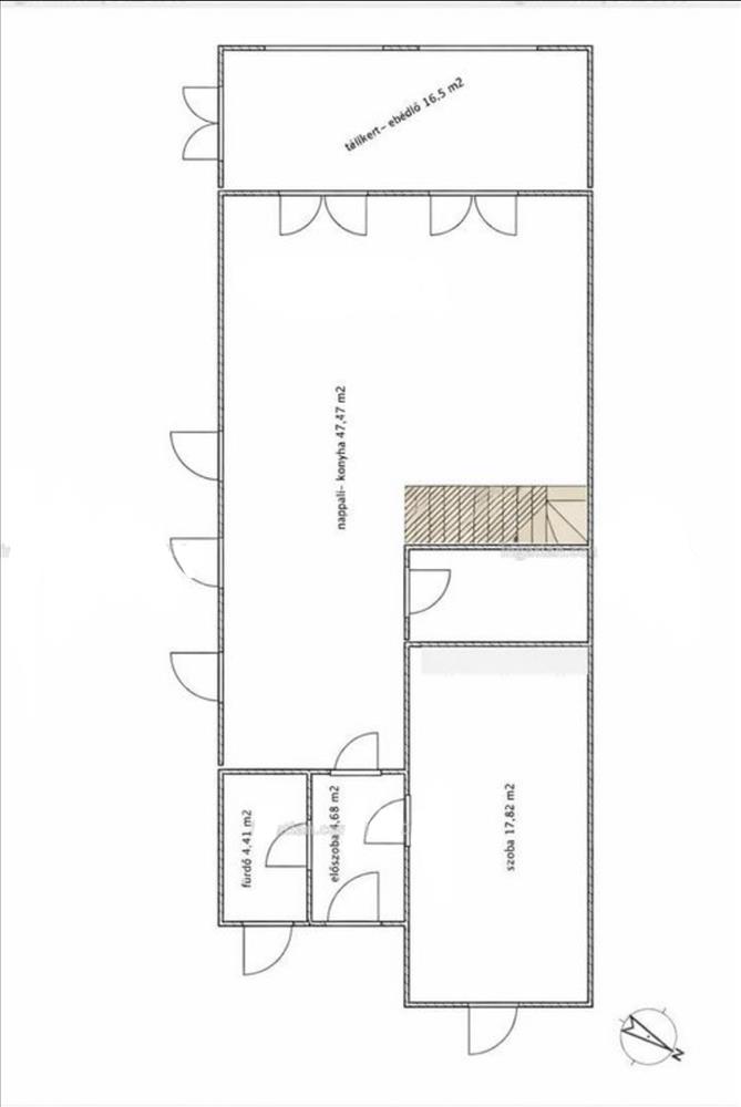
Az alsó szinten található az előszoba, zuhanyzó wc-vel, vendégszoba, konyha étkezővel, hatalmas kamra, nappali kapott helyet az alsó szinten. a nappaliból egy üvegajtón keresztül léphetünk ki a 18 nm-es teraszra, amely a hátsó kertre nyílik. a felső szinten 3 hálószoba, egy óriási méretű fürdőszoba zuhannyal és WC-vel kapott helyet. a szobák nagyok: 15nm, 16nm, 17nm, 18nm. a nappali – konyha – étkező összesen 48 nm. a padlástér ki lett alakítva, pakolható.
A kertben automata öntözőrendszer van kiépítve a fúrt kútról, továbbá egy fém külső tároló található még az udvaron.
Kombi cirkó biztosítja a fűtést (padló + radiátor) és a melegvíz ellátást.
Közvetlenül a lakópark területén található pizzéria, szépségszalon, kisbolt, 2 db óvoda és bölcsőde. Valamint tervben van egy új általános iskola építése is. Pár hónapja került átadásra a város új sportpályája, ahol kosárlabdapálya, focipálya, futópálya, kondipark és ping-pong asztalok várják a sportolni vágyókat. Továbbá pár perc sétára található egy két játszótér is a kisgyermekek részére.
A főváros megközelítéséhez több közlekedési eszközt és útvonalat is igénybe vehetünk. Budapestre autóval, HÉV-vel és távolsági busszal is el lehet jutni, illetve a vasút felújítása folyamatban van.
Autóval 5 perces távolságra lidl, aldi, tesco és rengeteg egyéb üzlet is található!
Jöjjön el, tekintse meg az ingatlant!
Szívből ajánlom minden olyan érdeklődőnek, akinek fontos a minőség és kényelem feltétlen párosítása, a környék adta végtelen csend, a hangulatos kert, a biztonságos és barátságos lakóközösség, a jó közlekedés és, valamint a városhoz való pár perc alatti közelség, mégis megnyugtató szigetként funkcionáló meghitt családi otthon!
Amennyiben nem tudom felvenni a telefont, hamarosan visszahívom! Hétvégén és esténként is nyugodtan kereshet bizalommal!
Független, ingyenes hitel-CSOK ügyintézéssel segítem kedves Ügyfeleimet, igen kedvező hitelekkel 2024-ben is! Mivel ingatlanirodánk építész és ingatlanfejlesztő irodával párosul, így minden hiteles szakmai segítséget meg tudunk adni, mellyel segíteni tudjuk döntését (könyvelő, ügyvéd, energetikai tanúsítvány, kivitelezők, szakértői vélemények. . . . )!
Ha a vásárláshoz el szeretné adni a jelenleg meglévő ingatlanját, ebben is nagyon szívesen segítek. Az Ingatlancorner kft. Igen alacsony közvetítői díjjal, a legmagasabb színvonalon képviseli az Ön érdekeit.
Ellenőrzött partnerként várom megtisztelő bizalmát! Https://partner. Ingatlan. Com/lazar. Hajnalka Hitel.hu - Hasonlítsa össze a bankok lakáshitel ajánlatait

