Eladó új építésű ház - Göd
- INGYENES HIRDETÉS FELADÁS
Ingatlan adatai
- Eladó vagy kiadó:Eladó
- Település:Göd
- Kategória:Ház
- Alkategória:Ikerház
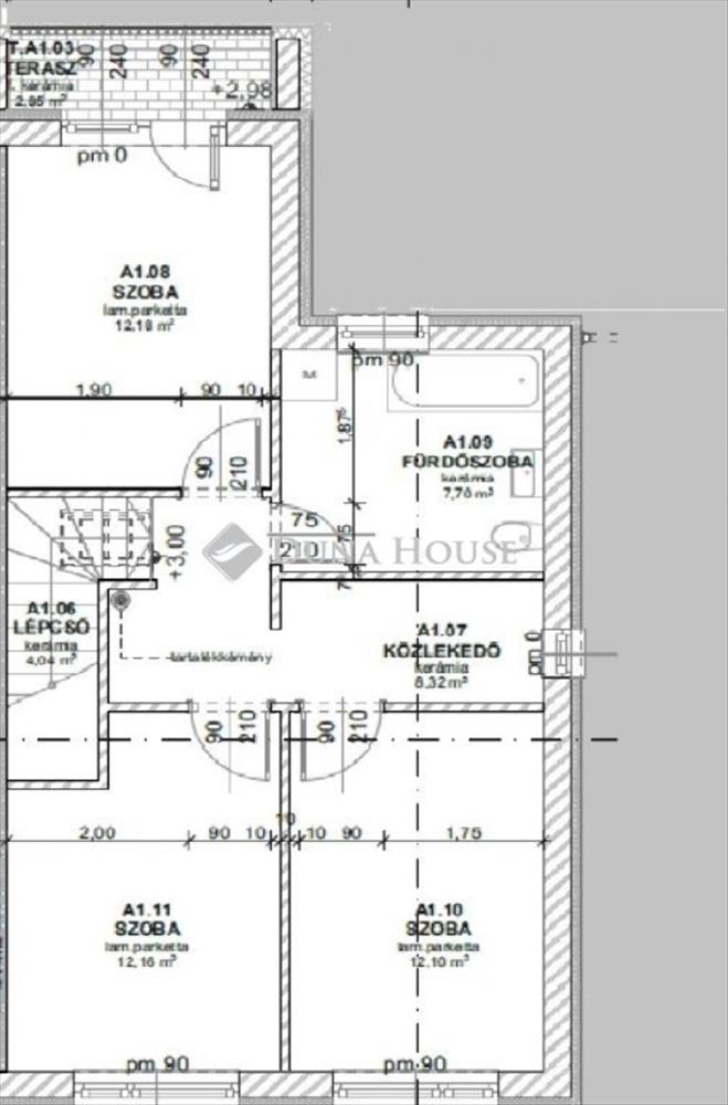
- Alapterület:110 m2
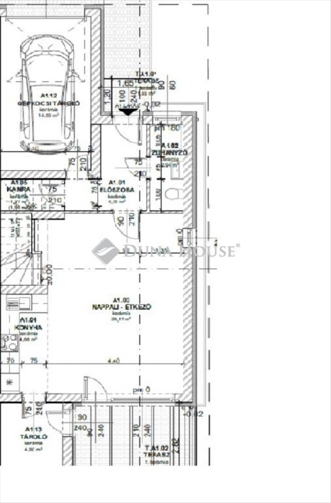
- Telekterület:300 m2
- Csere is:Nem
- Hirdető:Cég
- Élő videón megtekinthető:Nem
- Építés éve:2022
- Szobaszám:1
- Állapot:Új építésű
- Hány szintes az ingatlan:Földszintes
- Tetőtér:nincs megadva
- Komfortosság:nincs megadva
- Pince:nincs megadva
- Parkolási lehetőség:nincs megadva
- Fűtés:Gáz (cirko)
- Bútorozottság:nincs megadva
- Fényviszony:Napfényes
- Tájolás:DNY
- Kilátás:nincs megadva
- Internet:nincs megadva
- Klíma:nincs megadva
- Akadálymentesített:nincs megadva
- Energiatanúsítvány:nincs megadva
- Villany:nincs megadva
- Víz:nincs megadva
- Gáz:nincs megadva
- Csatorna:nincs megadva
- Kapcsolatfelvétel

Szakács Eszter
+36-(20)-960-0176
Mondd meg a hirdetőnek, hogy a megveszLAK-on találtad a hirdetést.
Referencia szám: HZ066358
Hitel ajánlatok
Ingatlan hirdetés leírása
Eladó ház, Göd, Eladó új építésű ház - Göd
Gödön új építésű környezetben, 2 lakásos sorházban kínálunk egy szuper beosztású, saját kerttel rendelkező kétszintes lakást, akár 3%-os OSP-vel is! Az alsó szinten beépített gépesített amerikai konyhás nappali nagy terasszal, valamint egy zuhanyzó került kialakításra. a konyhát kiszolgáló kamra és az előtérből is megközelíthető garázs található még ezen a szinten. a hátsó teraszra nyílik egy ablakkal is rendelkező tároló, mely így akár műhelynek, irodának vagy mosókonyhának is használható. Az emeleten 3 db 12 m2 nagyságú szoba és kádas fürdőszoba található, valamint a közlekedő egy részen járható gardrób kialakítására is adott a lehetőség. a lakást 200 m2-es saját kertrész veszi körül, az előkertben pedig egy második autó elhelyezése is biztosított kerítésen belül viacoloros beállón. a lakások külső főfalai Porotherm 30 téglából, 12 cm grafitos dryvit szigeteléssel, a födémen 20 cm szigeteléssel készülnek. a lakások között hanggátló fal készült. Hőszigetelt műanyag nyílászárók redőnnyel kerültek beépítésre. Kondenzációs gázkazán lapradiátorokkal, a fürdőszobában törölköző szárítóval. Klímával és garázs- valamint kapunyitóval felszerelt a lakás. a padlófűtés és a riasztó előkészítésre került. a kert füvesített és cserjékkel beültetett. a környék nagyon élhető, ideális minden korosztály számára. Kikapcsolódási lehetőséget jelent a közelben lévő termál strand, mellette a környék legszuperebb játszóterével és a strand melletti teniszpálya, a ház mellett futó bicikliút és a közeli ligetes környezet, a kutyások, családosok kedvence. Nemrégiben adták át az új orvosi, védőnői rendelőt mellette a fitnesz parkot és általános iskola is épül majd a lakóparkban. Kitűnő infrastruktúra, buszmegálló, közeli vasútállomás és az m2 felhajtója teszi gyorsabbá a közlekedést. FIX 3% lakáshitelre megvehető
Tetszett ez az eladó Gödi új építésű 1 szobás ikerház? Hívd fel a hirdetőt most, és tudj meg mindent erről az eladó ikerházról! Ha gondolod nézelődj tovább az eladó ház Göd oldal hirdetései között. Ennek az eladó háznak az ára 126000000 Ft és mivel az alapterülete 110 négyzetméter, ezért az átlagos négyzetméterára 1145455 HUF/m2.
Az eladó házak menüpontban további hirdetések között is böngészhetsz. Ha van kedved, akkor böngészhetsz a Szakács Eszter összes hirdetése között, vagy akár a/az Duna House Fót összes hirdetése között is.

