Eladó újszerű állapotú ház - Göd
- INGYENES HIRDETÉS FELADÁS
Ingatlan adatai
- Feladva:4 hónapja a megveszLAK-on
- Eladó vagy kiadó:Eladó
- Település:Göd
- Kategória:Ház
- Alkategória:Ikerház
- Alapterület:160 m2
- Telekterület:744 m2
- Csere is:Nem
- Hirdető:Cég
- Élő videón megtekinthető:Nem
- Szobaszám:5
- Állapot:Újszerű, kitűnő
- Hány szintes az ingatlan:2 szintes
- Tetőtér:nincs megadva
- Komfortosság:nincs megadva
- Pince:Nincs
- Parkolási lehetőség:nincs megadva
- Fűtés:nincs megadva
- Bútorozottság:nincs megadva
- Fényviszony:nincs megadva
- Tájolás:nincs megadva
- Kilátás:nincs megadva
- Internet:nincs megadva
- Klíma:nincs megadva
- Akadálymentesített:nincs megadva
- Energiatanúsítvány:nincs megadva
- Villany:nincs megadva
- Víz:nincs megadva
- Gáz:nincs megadva
- Csatorna:nincs megadva
- Kapcsolatfelvétel

Czirják Mihály
+36-(20)-220-9995
Mondd meg a hirdetőnek, hogy a megveszLAK-on találtad a hirdetést.
Hitel ajánlatok
Ingatlan hirdetés leírása
Modern Elegancia Göd Szívében – Új Építésű Ikerházi Lakás Elad...
Modern Elegancia Göd Szívében – Új Építésű Ikerházi Lakás Eladó!
Göd legkedveltebb, nyugodt részén kínálunk eladásra egy kiváló adottságokkal rendelkező, 160 m²-es, prémium kivitelezésű ikerházat. Ha fontos Önnek a minőség, a tágas terek és az alacsony fenntartási költség, ez az ingatlan tökéletes választás!
Főbb paraméterek:
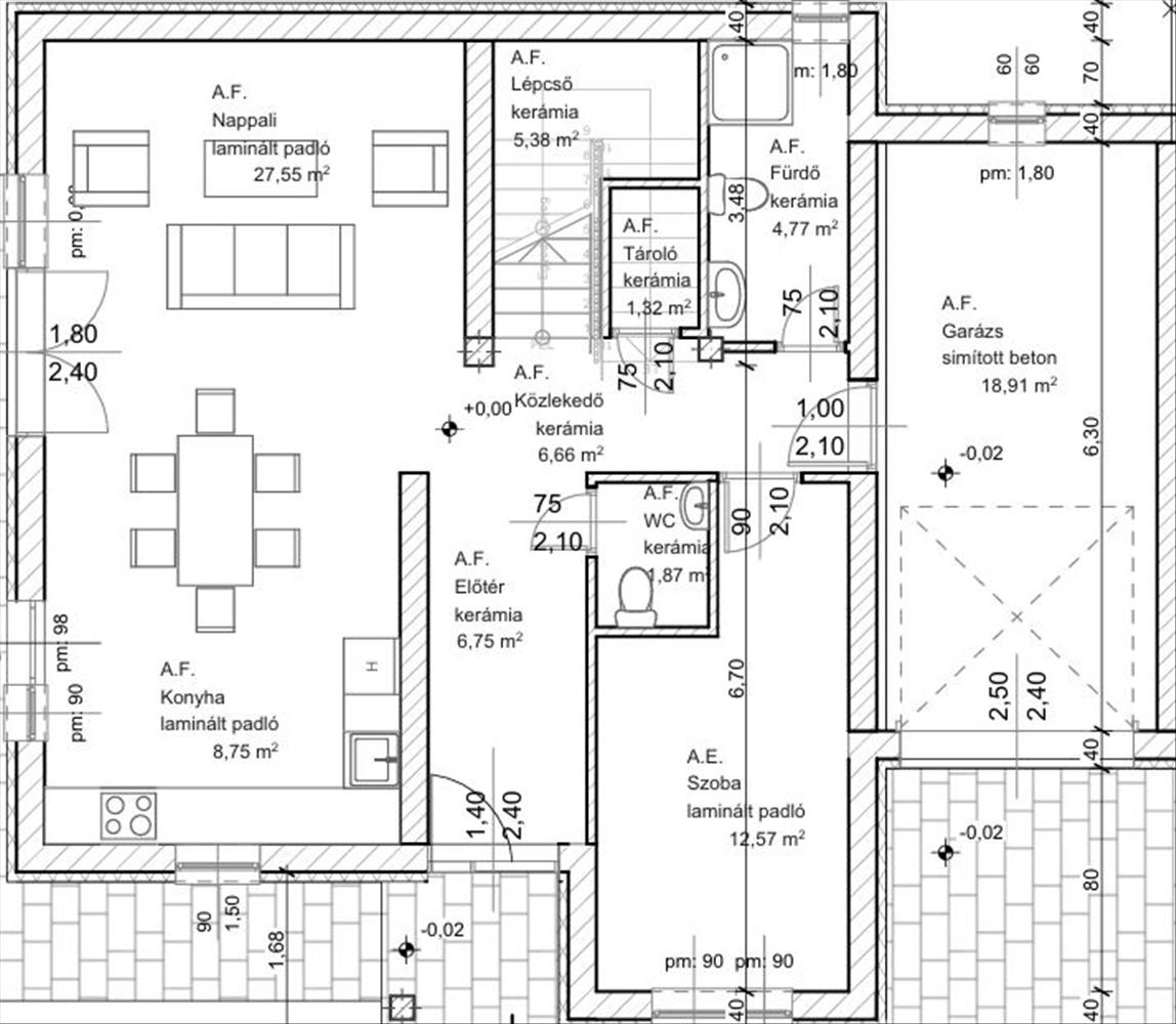
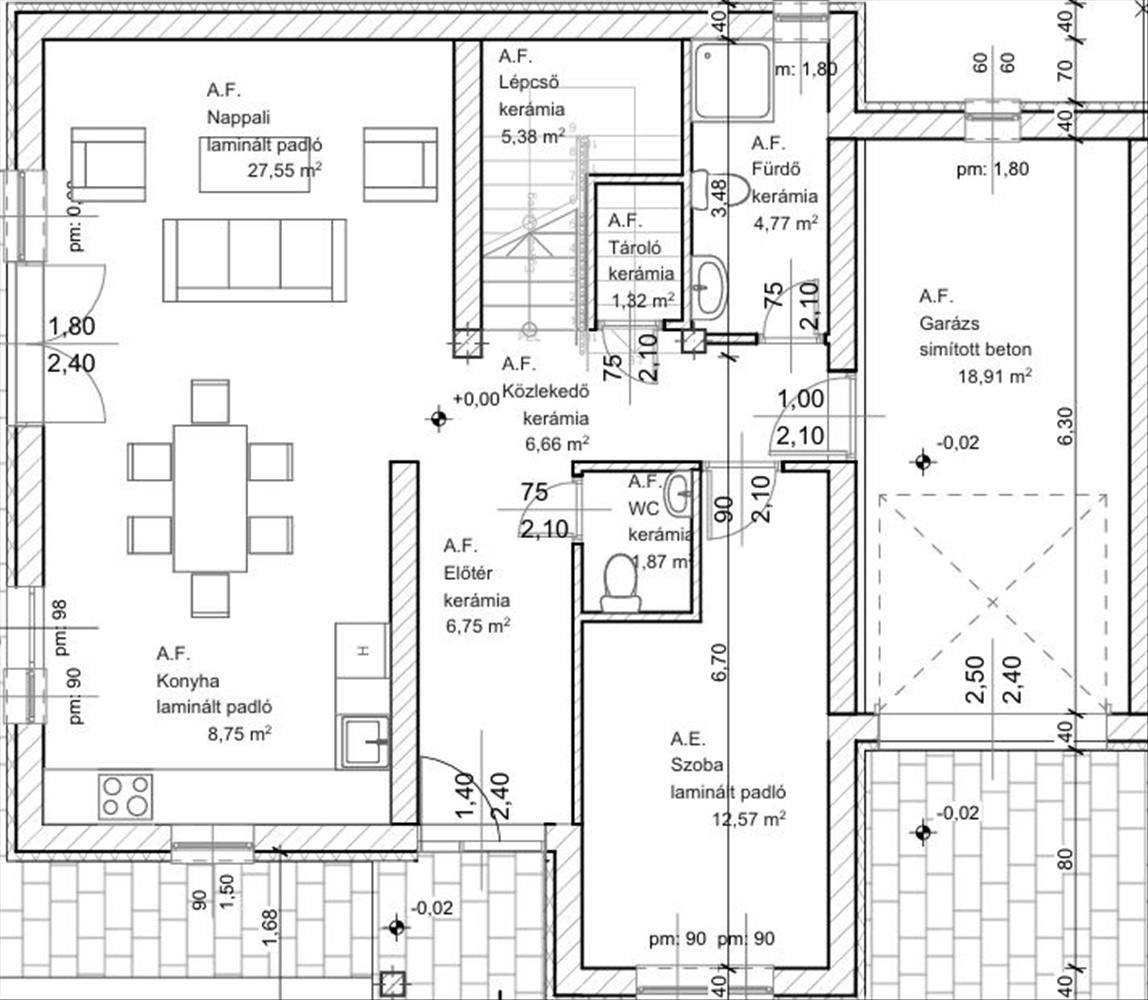
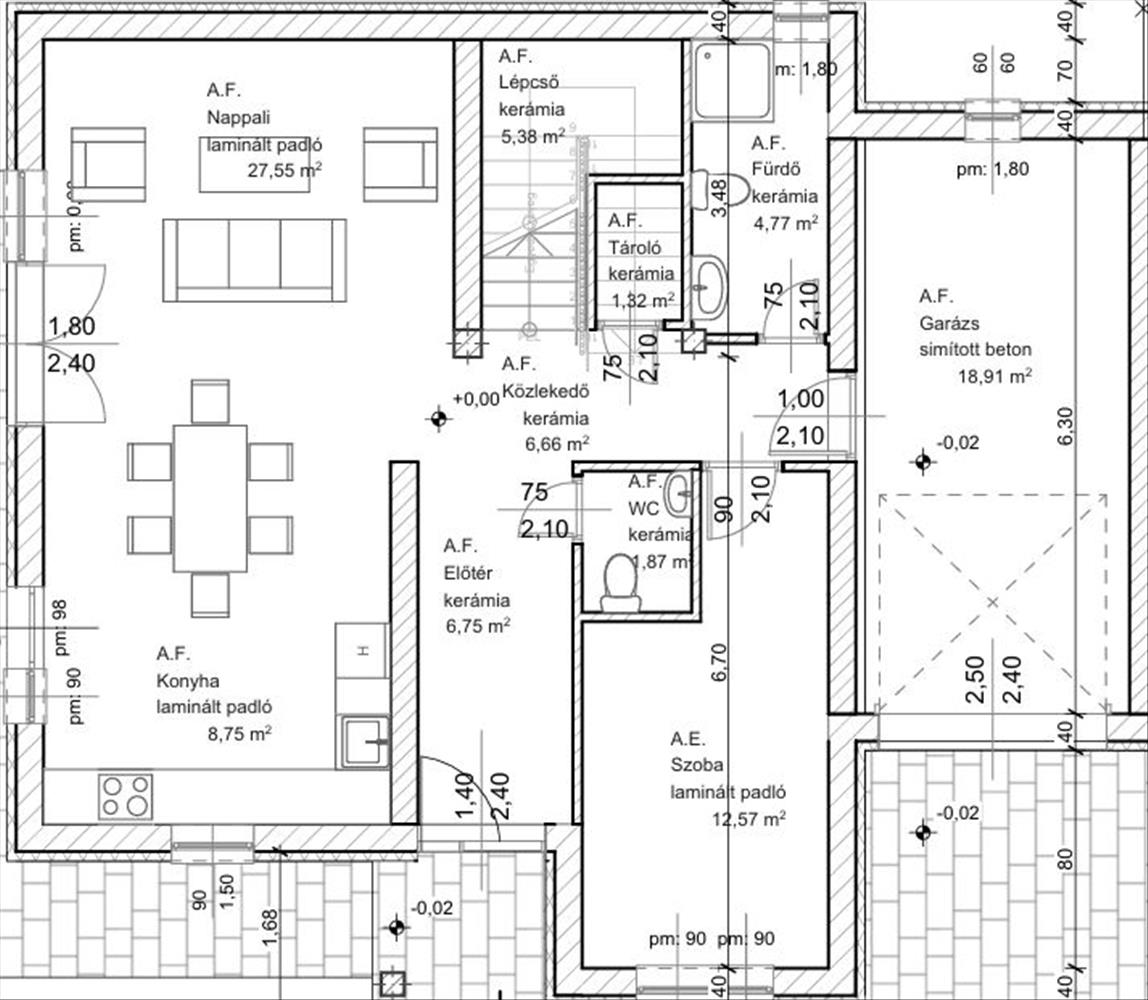
Alapterület: 160 m²
Telek: Saját, teljesen elkerített, privát kertrész, amely 744 nm 2.
Parkolás: Saját garázsban.
Energetika: Modern hőszivattyús padlófűtés + 2 darab hűtő-fűtő klíma (maximális komfort, minimális rezsi! )
Elrendezés:
A ház belső kialakítása a praktikum és a tágas közösségi terek harmóniájára épül:
Földszint:
Napfényes, hatalmas amerikai konyhás nappali
Külön hálószoba (vendégszobának vagy irodának is ideális).
Előtér, fürdőszoba, külön wc és tároló.
Közvetlen kertkapcsolat és garázs.
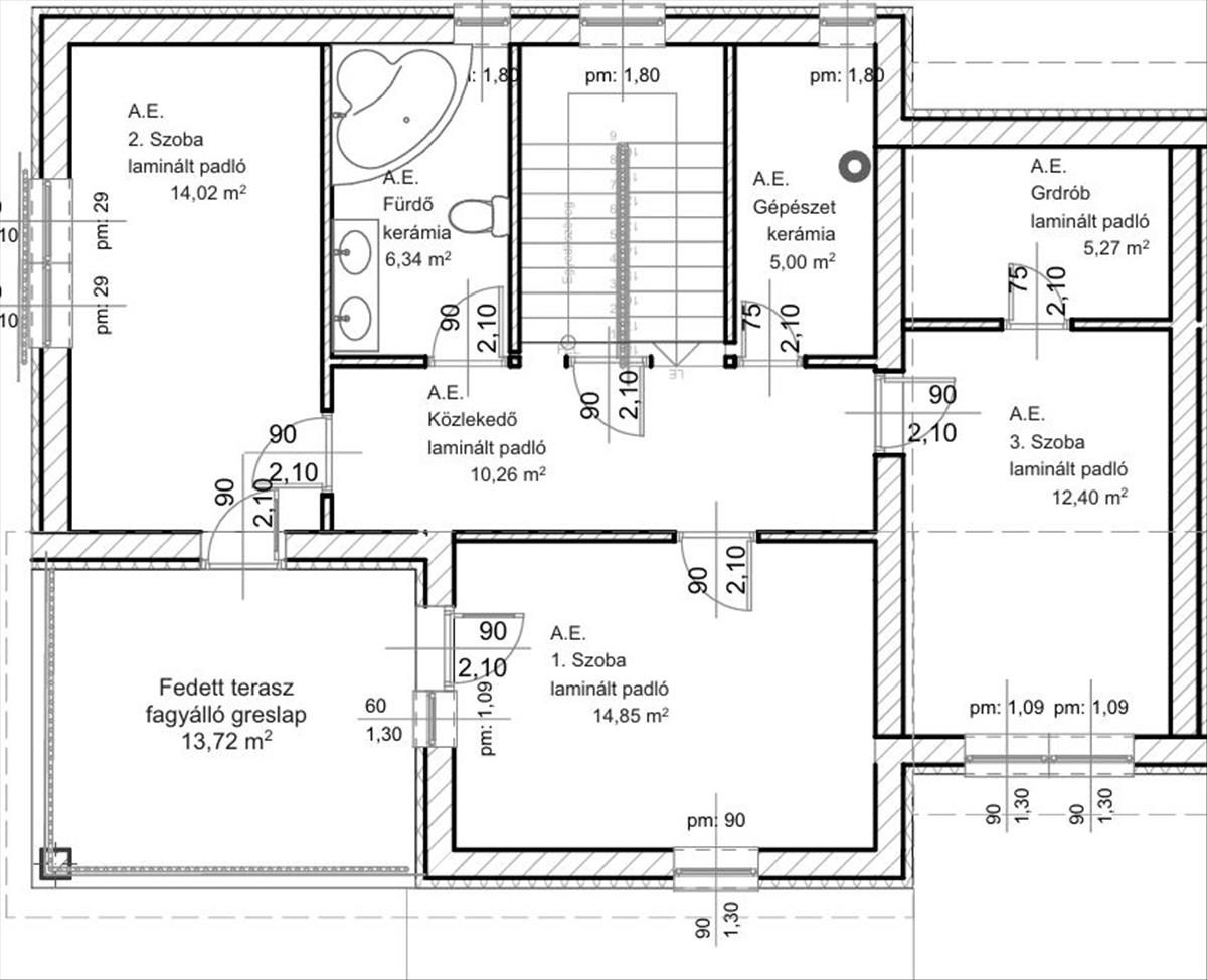
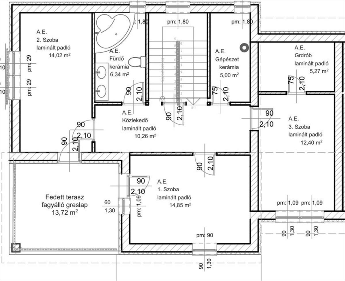
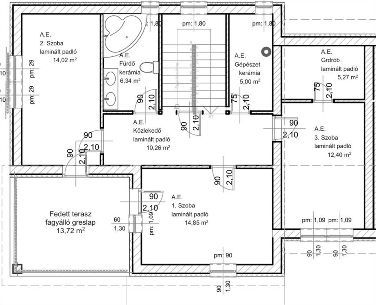
Emelet:
3 külön nyíló szoba
Tágas fürdőszoba és külön gardróbhelyiség.
Fedett terasz, amely tökéletes helyszín az esti pihenéshez.
Gépészeti helyiség és közlekedő.
Miért válassza ezt az ingatlant? Göd ezen része kiváló infrastruktúrával rendelkezik, közel a Duna-parthoz, mégis csendes, kertvárosi környezetben. Az új építésű technológia és a hőszivattyús rendszer garantálja az értékállóságot és a fenntarthatóságot.
Keressen bizalommal bővebb információért! Hitel.hu - Hasonlítsa össze a bankok lakáshitel ajánlatait
Tetszett ez az eladó Gödi újszerű állapotú 5 szobás ikerház? Hívd fel a hirdetőt most, és tudj meg mindent erről az eladó ikerházról! Ha gondolod nézelődj tovább az eladó ház Göd oldal hirdetései között. Ennek az eladó háznak az ára 165900000 Ft és mivel az alapterülete 160 négyzetméter, ezért az átlagos négyzetméterára 1036875 HUF/m2.
Az eladó házak menüpontban további hirdetések között is böngészhetsz. Ha van kedved, akkor böngészhetsz a Czirják Mihály összes hirdetése között, vagy akár a/az Dunakeszi Ingatlanközpont összes hirdetése között is.

