Eladó új építésű ház - Göd
- INGYENES HIRDETÉS FELADÁS
Ingatlan adatai
- Eladó vagy kiadó:Eladó
- Település:Göd
- Kategória:Ház
- Alkategória:Ikerház
- Alapterület:110 m2
- Telekterület:300 m2
- Csere is:Nem
- Hirdető:Cég
- Élő videón megtekinthető:Nem
- Építés éve:2022
- Szobaszám:1
- Állapot:Új építésű
- Hány szintes az ingatlan:Földszintes
- Tetőtér:nincs megadva
- Komfortosság:nincs megadva
- Pince:nincs megadva
- Parkolási lehetőség:nincs megadva
- Fűtés:Gáz (cirko)
- Bútorozottság:nincs megadva
- Fényviszony:Napfényes
- Tájolás:DNY
- Kilátás:nincs megadva
- Internet:nincs megadva
- Klíma:nincs megadva
- Akadálymentesített:nincs megadva
- Energiatanúsítvány:nincs megadva
- Villany:nincs megadva
- Víz:nincs megadva
- Gáz:nincs megadva
- Csatorna:nincs megadva
- Kapcsolatfelvétel

Kaminszka Noémi
+36-(30)-821-3355
Mondd meg a hirdetőnek, hogy a megveszLAK-on találtad a hirdetést.
Referencia szám: HZ066358
Hitel ajánlatok
Ingatlan hirdetés leírása
Eladó ház, Göd, Eladó új építésű ház - Göd
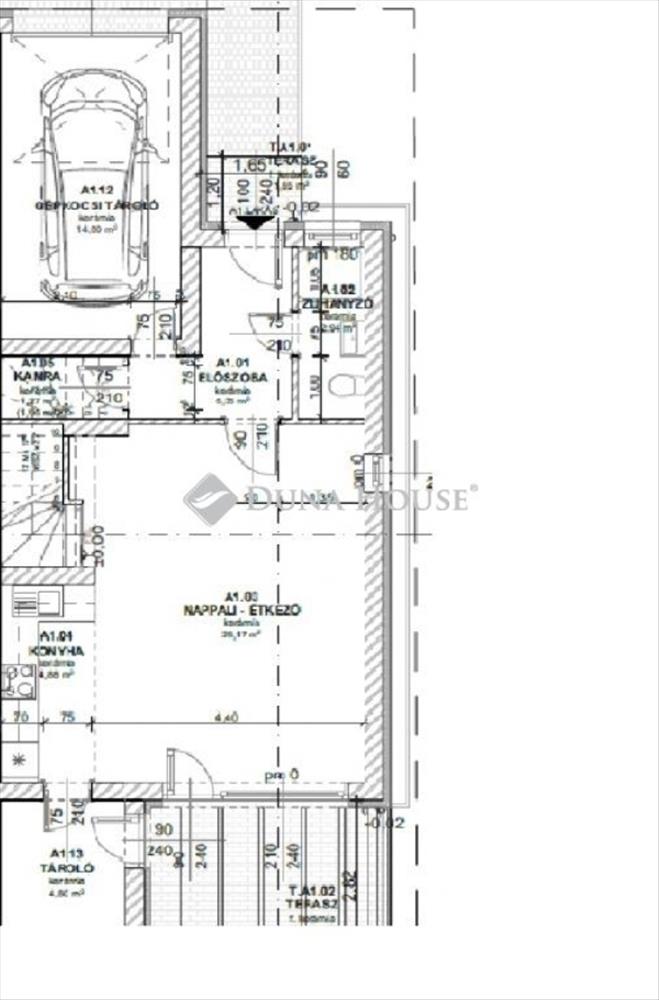
Gödön új építésű környezetben, 2 lakásos sorházban kínálunk egy szuper beosztású, saját kerttel rendelkező kétszintes lakást, akár 3%-os OSP-vel is! Az alsó szinten beépített gépesített amerikai konyhás nappali nagy terasszal, valamint egy zuhanyzó került kialakításra. a konyhát kiszolgáló kamra és az előtérből is megközelíthető garázs található még ezen a szinten. a hátsó teraszra nyílik egy ablakkal is rendelkező tároló, mely így akár műhelynek, irodának vagy mosókonyhának is használható. Az emeleten 3 db 12 m2 nagyságú szoba és kádas fürdőszoba található, valamint a közlekedő egy részen járható gardrób kialakítására is adott a lehetőség. a lakást 200 m2-es saját kertrész veszi körül, az előkertben pedig egy második autó elhelyezése is biztosított kerítésen belül viacoloros beállón. a lakások külső főfalai Porotherm 30 téglából, 12 cm grafitos dryvit szigeteléssel, a födémen 20 cm szigeteléssel készülnek. a lakások között hanggátló fal készült. Hőszigetelt műanyag nyílászárók redőnnyel kerültek beépítésre. Kondenzációs gázkazán lapradiátorokkal, a fürdőszobában törölköző szárítóval. Klímával és garázs- valamint kapunyitóval felszerelt a lakás. a padlófűtés és a riasztó előkészítésre került. a kert füvesített és cserjékkel beültetett. a környék nagyon élhető, ideális minden korosztály számára. Kikapcsolódási lehetőséget jelent a közelben lévő termál strand, mellette a környék legszuperebb játszóterével és a strand melletti teniszpálya, a ház mellett futó bicikliút és a közeli ligetes környezet, a kutyások, családosok kedvence. Nemrégiben adták át az új orvosi, védőnői rendelőt mellette a fitnesz parkot és általános iskola is épül majd a lakóparkban. Kitűnő infrastruktúra, buszmegálló, közeli vasútállomás és az m2 felhajtója teszi gyorsabbá a közlekedést.
Érdeklődni lehet: Kaminszka Noémi 30/821-3355
Referencia szám: hz066358 FIX 3% lakáshitelre megvehető

