Eladó új építésű ház Gödöllő
| Kedvencbe | Megosztás | Árfigyelő |
| FIX 3% lakáshitelre megvehető | ||
| 144 900 000 HUF | ||
Ingatlan adatai
- Eladó vagy kiadó:Eladó
- Település:Gödöllő
- Kategória:Ház
- Alkategória:Ikerház
- Alapterület:115 m2
- Telekterület:500 m2
- Csere is:Nem
- Hirdető:Cég
- Élő videón megtekinthető:Nem
- Építés éve:2026
- Szobaszám:4
- Állapot:Új építésű
- Hány szintes az ingatlan:nincs megadva
- Tetőtér:nincs megadva
- Komfortosság:Összkomfortos
- Pince:Nincs
- Parkolási lehetőség:Udvaron
- Fűtés:Gáz (konvektor)
- Bútorozottság:nincs megadva
- Fényviszony:nincs megadva
- Tájolás:nincs megadva
- Kilátás:nincs megadva
- Internet:nincs megadva
- Akadálymentesített:nincs megadva
- Energiatanúsítvány:nincs megadva
- Villany:Van
- Víz:Van
- Gáz:Van
- Csatorna:Van
- Üzenetküldés
- Hívás

Kómár-Benke Nikoletta
Mondd meg a hirdetőnek, hogy a megveszLAK-on találtad a hirdetést.

Hitel ajánlat
Ingatlan hirdetés leírása
Eladó Ikerház, Gödöllő, Csanak, 115nm, 144900000 Ft
Új építésű, különálló ikerház Gödöllő-Csanakon, 960 m²-es telken!Eladó Gödöllő egyik legkedveltebb, kertvárosi részén, Csanakon, egy új építésű, kétlakásos ikerház, amelyben a két lakás teljesen különálló, saját telekrésszel, külön bejárattal, kertrésszel és gépkocsibeállóval rendelkezik.
A modern épület két önálló családi házként funkcionál – nincs közös fal, nincs közös használatú terület, így a privát szféra maximálisan biztosított!
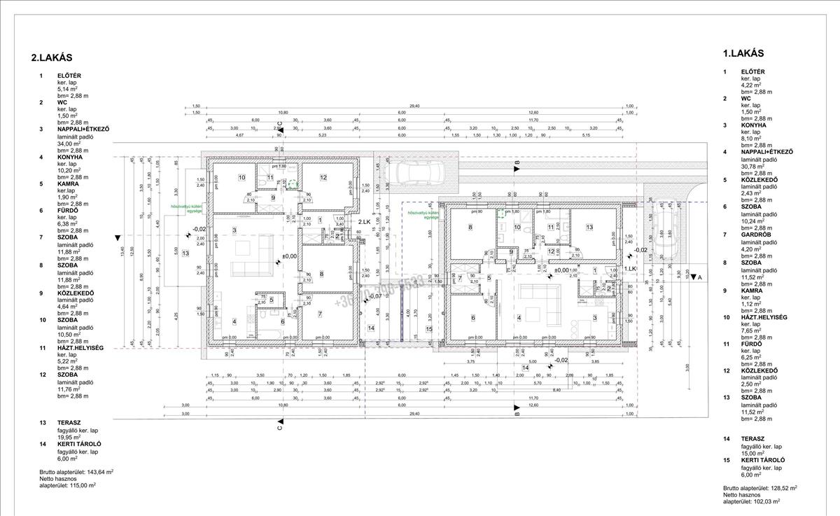
1. Lakás
•Bruttó alapterület: 134, 52 m²
•Nettó hasznos alapterület: 102, 03 m²
•Terasz: 19, 95 m²
•Kerti tároló: 4, 90 m²
Helyiségek:
Előtér, 2 fürdőszoba, konyha, nappali + étkező, közlekedő, kamra, háztartási helyiség, 3 hálószoba, gardrób, terasz, kerti tároló.
2. Lakás
•Bruttó alapterület: 150, 72 m²
•Nettó hasznos alapterület: 115, 12 m²
•Terasz: 15, 95 m²
•Kerti tároló: 4, 90 m²
Helyiségek:
Előtér, 2 fürdőszoba, konyha, nappali + étkező, közlekedő, kamra, háztartási helyiség, 3 hálószoba, gardrób, terasz, kerti tároló.
A tervekkel ellentétben a 2. Lakást kocsibeállója jobb oldalon lesz.
Műszaki jellemzők
•Teherhordó falazat: zsalukő és tégla szerkezet
•Homlokzat: grafitos hőszigeteléssel ellátott
•Nyílászárók: műanyag, 3 rétegű üvegezéssel
•Fűtés: modern, energiatakarékos rendszer (tervezett hőszivattyú vagy kondenzációs kazán)
•Tető: nyeregtetős, korszerű fedéssel
•Parkolás: saját, térkövezett kocsi beálló
Környék és elhelyezkedés
Az ingatlan Gödöllő-Csanak egyik legjobb utcájában található, csendes, zöldövezeti környezetben, mégis közel a városközponthoz.
A környék aszfaltozott utcákkal, kiváló infrastruktúrával és jó közlekedéssel rendelkezik:
Budapest az M3-as autópályán 25-30 perc alatt elérhető, a busz- és vonatközlekedés is remek.
A közelben iskola, óvoda, bolt, gyógyszertár és sportolási lehetőségek is megtalálhatók.
Tökéletes választás családoknak, akik nyugodt, biztonságos környezetben, mégis a főváros közelében szeretnének élni.
Összegzés
Ez az új építésű projekt egyedülálló lehetőség Gödöllőn:
két teljesen különálló, modern, földszintes családi ház egy 960 m²-es telken,
átgondolt tervezéssel, kiváló minőségű kivitelezéssel,
és ideális elhelyezkedéssel a város egyik legkeresettebb részén kiváló kivitelező álltal.
Ára: 144, 9 M Ft FIX 3% lakáshitelre megvehető

