Eladó új építésű ház - Gyál
- INGYENES HIRDETÉS FELADÁS
Ingatlan adatai
- Feladva:65 napja a megveszLAK-on
- Eladó vagy kiadó:Eladó
- Település:Gyál
- Kategória:Ház
- Alkategória:Ikerház
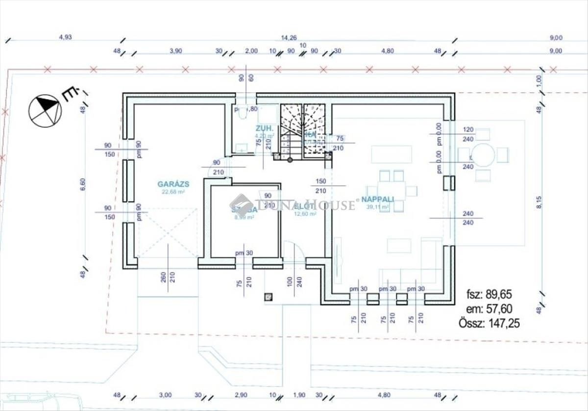
- Alapterület:147 m2
- Telekterület:236 m2
- Csere is:Nem
- Hirdető:Cég
- Élő videón megtekinthető:Nem
- Építés éve:2026
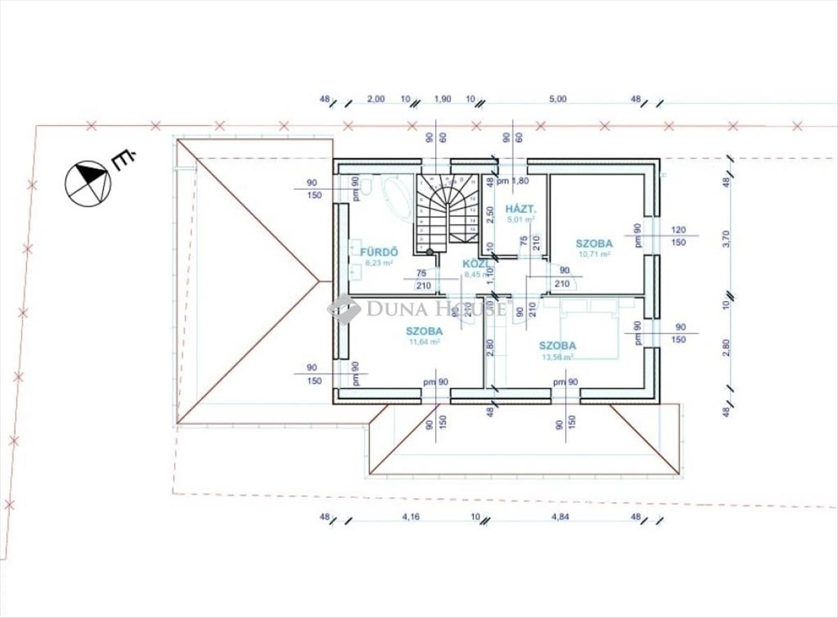
- Szobaszám:5
- Állapot:Új építésű
- Hány szintes az ingatlan:Földszintes
- Tetőtér:nincs megadva
- Komfortosság:nincs megadva
- Pince:nincs megadva
- Parkolási lehetőség:nincs megadva
- Fűtés:Hőszivattyús
- Bútorozottság:nincs megadva
- Fényviszony:Napfényes
- Tájolás:ÉK
- Kilátás:nincs megadva
- Internet:nincs megadva
- Klíma:nincs megadva
- Akadálymentesített:nincs megadva
- Energiatanúsítvány:nincs megadva
- Villany:Van
- Víz:Van
- Gáz:Van
- Csatorna:Van
- Kapcsolatfelvétel

Rávai Dominika
+36-(70)-322-9090
Mondd meg a hirdetőnek, hogy a megveszLAK-on találtad a hirdetést.
Referencia szám: HZ044437
Hitel ajánlatok
Ingatlan hirdetés leírása
Eladó ház, Gyál, Eladó új építésű ház - Gyál
Eladásra kínálunk Gyál kedvelt, Gyálligeti részén egy modern, új építésű családi házat, amely korszerű műszaki tartalommal és átgondolt belső elrendezéssel készül.
Az ingatlan korszerű Viablokk falazóelemekből épül, 10 cm vastag homlokzati hőszigeteléssel és 30 cm födémszigeteléssel, így energetikailag kiemelkedően hatékony otthon lesz. a háromrétegű, hatlégkamrás, hőszigetelt nyílászárók tovább növelik a komfortérzetet és csökkentik a rezsiköltségeket. a tetőt időtálló betoncserép fedi.
A fűtésről modern 10kw-os hőszivattyús rendszer gondoskodik padlófűtéssel, míg a használati melegvizet villanybojler biztosítja. a nappaliban klíma kiállás kerül kialakításra, valamint a biztonságról kamerarendszer és riasztó gondoskodik.
A földszinten tágas, amerikai konyhás nappali kap helyet, előtérrel, zuhanyzós fürdőszobával, egy külön szobával, kamrával, valamint egy fűtött garázzsal. Az emeleti szinten három kényelmes hálószoba, egy fürdőszoba és egy praktikus háztartási helyiség kerül kialakításra, így a ház ideális választás lehet akár nagyobb család számára is.
A belső burkolatok 5. 000 Ft/m² értékhatárig választhatók, a beltéri ajtók kilinccsel és kiegészítőkkel bruttó 80. 000 Ft/db értékben, a csaptelepek és mosdók pedig 20. 000 Ft/db keretösszegig választhatók, így a leendő tulajdonos saját ízlésére szabhatja otthonát.
A várható átadás 2026 4. Negyedév végén esedékes.
Ha egy energiatakarékos, modern kialakítású, jól megközelíthető, mégis nyugodt környezetben épülő otthont keres Gyál egyik legkedveltebb részén, ez az ingatlan kiváló választás lehet.
Keressen bizalommal a hét bármely napján!
Érd. : Rávai Dominika 06-70-322-9090
Referencia szám: hz044437 FIX 3% lakáshitelre megvehető
Tetszett ez az eladó Gyáli új építésű 5 szobás ikerház? Hívd fel a hirdetőt most, és tudj meg mindent erről az eladó ikerházról! Ha gondolod nézelődj tovább az eladó ház Gyál oldal hirdetései között. Ennek az eladó háznak az ára 149900000 Ft és mivel az alapterülete 147 négyzetméter, ezért az átlagos négyzetméterára 1019728 HUF/m2.
Az eladó házak menüpontban további hirdetések között is böngészhetsz. Ha van kedved, akkor böngészhetsz a Rávai Dominika összes hirdetése között, vagy akár a/az Duna House Dabas összes hirdetése között is.

