Eladó új építésű ház - Gyál
- INGYENES HIRDETÉS FELADÁS
Ingatlan adatai
- Eladó vagy kiadó:Eladó
- Település:Gyál
- Kategória:Ház
- Alkategória:Ikerház
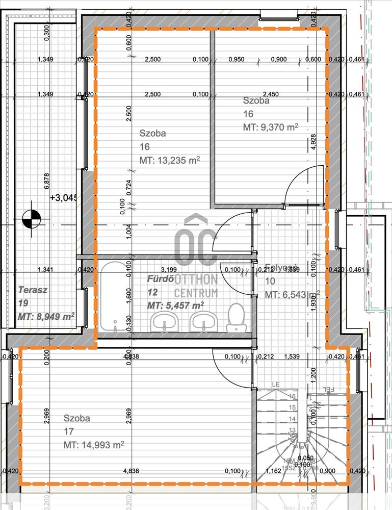
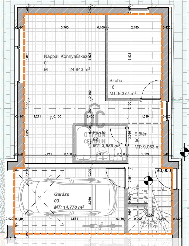
- Alapterület:122 m2
- Telekterület:201 m2
- Csere is:Nem
- Hirdető:Cég
- Élő videón megtekinthető:Nem
- Építés éve:2026
- Szobaszám:5
- Állapot:Új építésű
- Hány szintes az ingatlan:nincs megadva
- Tetőtér:nincs megadva
- Komfortosság:nincs megadva
- Pince:nincs megadva
- Parkolási lehetőség:nincs megadva
- Fűtés:nincs megadva
- Bútorozottság:nincs megadva
- Fényviszony:nincs megadva
- Tájolás:D
- Kilátás:nincs megadva
- Internet:nincs megadva
- Klíma:nincs megadva
- Akadálymentesített:nincs megadva
- Energiatanúsítvány:nincs megadva
- Villany:Van
- Víz:Van
- Gáz:Nincs
- Csatorna:Van
- Kapcsolatfelvétel

Csuha Attila
+36-(70)-465-7026
Mondd meg a hirdetőnek, hogy a megveszLAK-on találtad a hirdetést.
Hitel ajánlatok
Ingatlan hirdetés leírása
Megvételre kínálunk Gyálon csendes kis utcában ikerház felét. ...
Megvételre kínálunk Gyálon csendes kis utcában ikerház felét.
A 2 lakásos lakóépület saját garázzsal és saját kert résszel rendelkezik.
Az építkezés jelen szakaszában igény szerint választható a nappali+3 hálószoba vagy a nappali+ 4 szoba kialakítás, illetve a burkolatok, a beltéri ajtók és a gépesített konyha választható.
Az ingatlan Gyál családi házas, csendes zöldövezetében, 574 m2-es telken helyezkedik el, 136 m2, 201 m2 használatú kerttel.
A ház H tarifás áramellátást kap, energetikai besorolása a+ lesz.
Tervezett átadás: 2025 december.
Az energetika besorolása A+.
Fűtés, hűtés, melegvíz:
Központi levegő–víz hőszivattyús rendszer szolgáltatja a fűtést, hűtést és a használati melegvizet.
Padlófűtés a teljes lakótérben, valamint fan-coil hűtés/fűtés a nappaliban és emeleti szobákban.
Okos vezérlés előkészítve:
Igény esetén helyiségenkénti termosztátos vezérlés és okosotthon rendszer is kialakítható.
Szerkezeti és műszaki adatok:
•Monolit vasbeton lemezalap – biztos, mozgásálló alapozás.
•Külső falak: 30 cm vastag Leier hőszigetelő tégla.
•Válaszfalak: Kiemelkedő hangszigetelésű Silka mészhomok tégla.
•Födémszerkezet: Hang- és tűzgátló tulajdonságokkal, statikai tervek szerint.
•Homlokzati hőszigetelés: 12 cm vastag eps szigetelés.
•Tető monolit szerkezetű, szigetelés: 20 cm vastag üveggyapot, extra hőmegtartás érdekében.
Szigetelés: 20 cm vastag üveggyapot.
Nyílászárók és árnyékolástechnika:
•Biztonságos, többpontos záródású bejárati ajtók (mabisz minősítéssel).
•Energiahatékony műanyag ablakok, belső műanyag és külső alumínium párkányokkal.
•Vakolható redőnyszekrények, opcionálisan hőszigetelt alumínium redőnyökkel és szúnyoghálókkal
Rendezett, parkosított saját kert, ideális családi programokhoz, pihenéshez vagy konyhakert kialakításához.
•A kert rendezése a vételár részét képezi.
Garázs és parkolás:
•Minden lakáshoz saját integrált garázs tartozik, közvetlen lakótéri kapcsolattal.
Amennyiben kérdése lenne, vagy szeretné megtekinteni személyesen is, kérem hívjon bizalommal, várom.
Teljeskörű pénzügyi és jogi háttér-szolgáltatással várom kedves ügyfeleimet. FIX 3% lakáshitelre megvehető
Tetszett ez az eladó Gyáli új építésű 5 szobás ikerház? Hívd fel a hirdetőt most, és tudj meg mindent erről az eladó ikerházról! Ha gondolod nézelődj tovább az eladó ház Gyál oldal hirdetései között. Ennek az eladó háznak az ára 113990000 Ft és mivel az alapterülete 122 négyzetméter, ezért az átlagos négyzetméterára 934344 HUF/m2.
Az eladó házak menüpontban további hirdetések között is böngészhetsz. Ha van kedved, akkor böngészhetsz a Csuha Attila összes hirdetése között, vagy akár a/az Otthon Centrum IX. kerület - Allure Residence összes hirdetése között is.

