Eladó új építésű ház - Hajdúsámson
- INGYENES HIRDETÉS FELADÁS
Ingatlan adatai
- Eladó vagy kiadó:Eladó
- Település:Hajdúsámson
- Kategória:Ház
- Alkategória:Ikerház
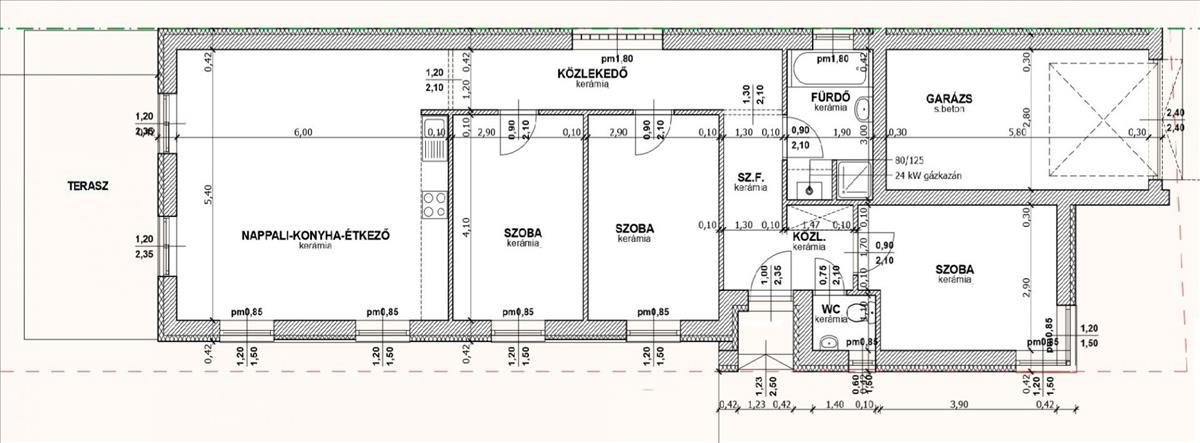
- Alapterület:100 m2
- Telekterület:600 m2
- Csere is:Nem
- Hirdető:Cég
- Élő videón megtekinthető:Nem
- Építés éve:2025
- Szobaszám:4
- Állapot:Új építésű
- Hány szintes az ingatlan:nincs megadva
- Tetőtér:nincs megadva
- Komfortosság:nincs megadva
- Pince:nincs megadva
- Parkolási lehetőség:nincs megadva
- Fűtés:Egyéb
- Bútorozottság:nincs megadva
- Fényviszony:nincs megadva
- Tájolás:nincs megadva
- Kilátás:nincs megadva
- Internet:nincs megadva
- Klíma:nincs megadva
- Akadálymentesített:nincs megadva
- Energiatanúsítvány:nincs megadva
- Villany:nincs megadva
- Víz:nincs megadva
- Gáz:nincs megadva
- Csatorna:nincs megadva
- Kapcsolatfelvétel

Biró Zsolt
+36-(30)-749-8827
Mondd meg a hirdetőnek, hogy a megveszLAK-on találtad a hirdetést.
Ingatlan hirdetés leírása
Hajdúsámsonban, 100 m2-es, N+3 szobás, egyszintes, hőszigetelt...
Hajdúsámson új építésű részén, 2025. Év végi átadással, 100 m2-es, nappali+ 3 szobás ikerház, magas műszaki tartalommal, garázzsal, 600 m2-es telken eladó!
A vételár tartalmazza a telekárat.
Jellemzői:
- Értéktartó, csendes környéken helyezkedik el
- a ház új építésű, a belső még igény szerint alakítható
- Porotherm 30 n+f tégla falazat
- Beton tetőcserép
- Napelem előkészítés
- 15 cm Austrotherm at-h80 hőszigetelés a homlokzati falakon, mely biztosítja az alacsony fűtési költséget
- a tetőtérben 25 cm vastagságú Therwoolin hőszigetelés
- 10 cm Austrotherm at-n100 aljzatszigetelés
- a fűtést és a melegvíz ellátását egyedileg beépített, egyedi mérőhellyel ellátott kondenzációs, turbós kombi kazán biztosítja
- a ház padlófűtéses, mely egyenletes hőeloszlást biztosít, egyben növeli a kondenzációs kazán hatékonyságát
- Hőszivattyús fűtéssel is kérhető (+ 3 MFt)
- Hő- és hangszigetelt ablakok kívül barna színben: 3 rétegű, 6 légkamrás, műanyag profilrendszerű, horganyzott idomacél merevítéssel (0, 6 W/m2K)
- Elektromos redőny előkészítés
- a ház külső és belső tere egyaránt prémium kategóriájú, led technológiás rgb világítással lesznek szerelve
- Amerikai konyhás nappali
- Belső kialakítás flexibilis, az Ön elképzelése szerint alakítunk ki mindent
- Választható burkolatok: Kerámia burkolat 6 000 Ft/m2-ig, laminált parketta 6 000 Ft/m2-ig a vételárban
- 19 m2-es garázs
- Homlokzati burkolás a vételárban a látványtervnek megfelelően
- 25 m2-es terasz
- Elemes betonkerítés a vételárban
- Igény szerint füvesítés, parkosítás, öntözőrendszer, sziklakert, bográcsozási lehetőség, pergolla, filagória kialakításra kerülhet a költözésre
- Tömegközlekedés kiváló
- Iskolához, óvodához, üzletekhez, orvosi rendelőhöz, patikához közel helyezkedik el!
Várható befejezés: 2025. December 31.
Babaváró, illetékmentesség, csok+ hitel igénybe vehető a házra!
Irányár: 54, 9 MFt (hivatkozási szám: m117109) FIX 3% lakáshitelre megvehető


