Eladó új építésű ház Kóka
| Kedvencbe | Megosztás | Árfigyelő |
| FIX 3% lakáshitelre megvehető | ||
| 58 000 000 HUF | ||
Ingatlan adatai
- Eladó vagy kiadó:Eladó
- Település:Kóka
- Kategória:Ház
- Alkategória:Ikerház
- Alapterület:109 m2
- Telekterület:3504 m2
- Csere is:Nem
- Hirdető:Cég
- Élő videón megtekinthető:Nem
- Építés éve:2026
- Szobaszám:4
- Állapot:Új építésű
- Hány szintes az ingatlan:Földszintes
- Tetőtér:nincs megadva
- Komfortosság:nincs megadva
- Parkolási lehetőség:nincs megadva
- Fűtés:Hőszivattyús
- Bútorozottság:nincs megadva
- Fényviszony:Napfényes
- Tájolás:ÉNY
- Kilátás:nincs megadva
- Internet:nincs megadva
- Akadálymentesített:nincs megadva
- Energiatanúsítvány:A+
- Villany:nincs megadva
- Víz:nincs megadva
- Gáz:nincs megadva
- Csatorna:nincs megadva
- Üzenetküldés
- Hívás

Referencia szám: HZ082272

Hitel ajánlat
Ingatlan hirdetés leírása
Eladó ház, Kóka, Eladó új építésű ház - Kóka
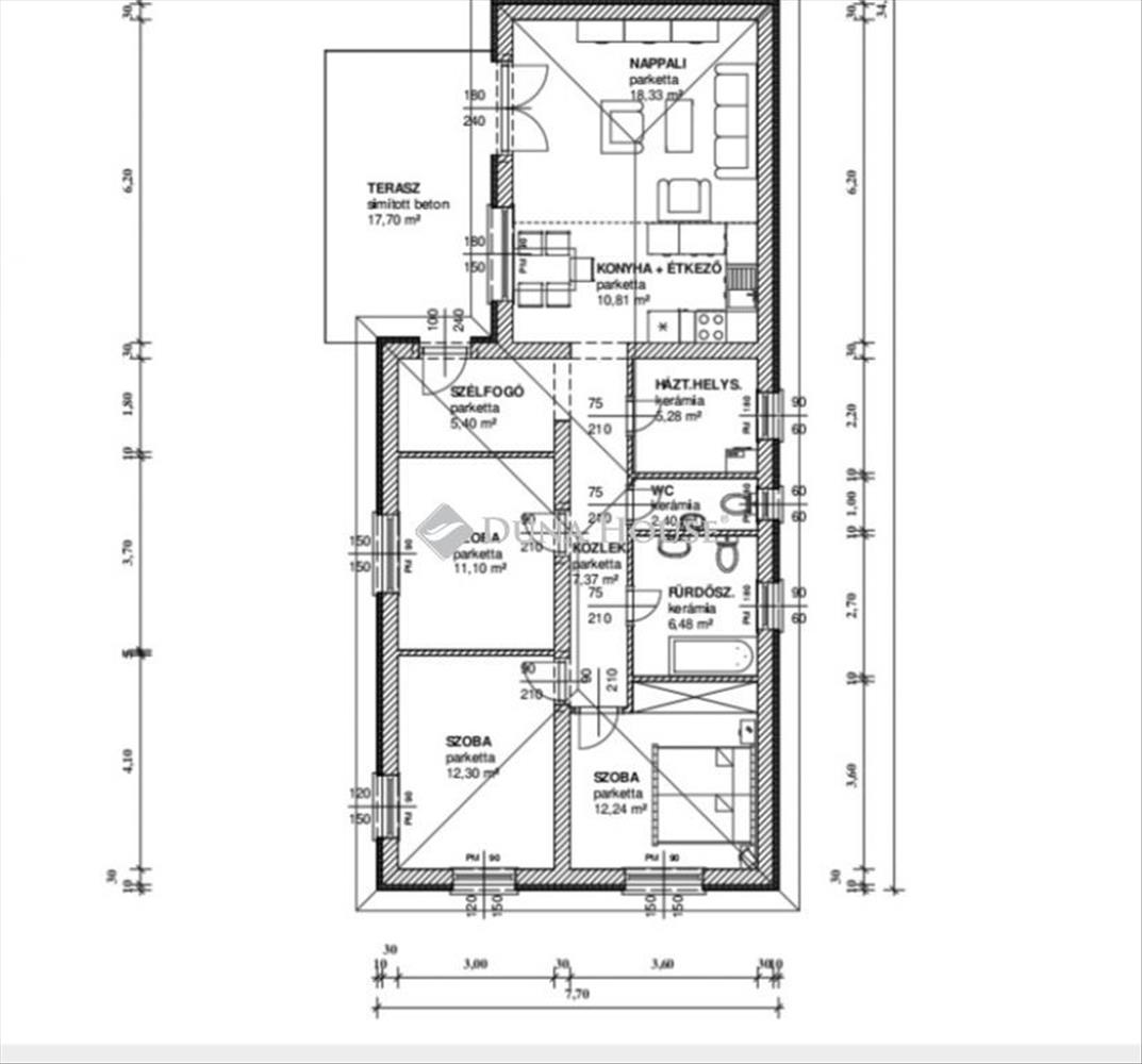
Új építésű ikerházfél eladó Kókán saját telekkel és modern kialakítással!Kókán, egy kellemesen csendes és nyugodt utcában, új építésű házak környezetében kínálom eladásra ezt a minőségi kivitelezésben készülő ikerházfelet, amely saját 297 m²-es telekkel rendelkezik. Ideális választás mindazoknak, akik új, modern otthonra vágynak kiváló elhelyezkedéssel.
Az ingatlan 3 tágas szobával, világos amerikai konyhás nappalival, valamint külön háztartási helyiséggel biztosítja a kényelmes, jól szervezhető mindennapokat. a nappaliból közvetlenül nyílik a 17, 7 m²-es nyitott terasz, amely tökéletes helyszín lehet pihenéshez vagy családi programokhoz.
A buszmegálló pár perces sétára található, így a tömegközlekedés is kiválóan megoldott. Az utca fronti elhelyezkedés, a különálló telek, valamint a modern környezet igazán vonzóvá teszi ezt az ingatlant.
A vételár részét képező felszereltség:
Meleg burkolatok 3 500 Ft/m²-ig
Hideg burkolatok 4 000 Ft/m²-ig
Beltéri ajtók 30 000 Ft/db értékig
Csapok 15 000 Ft/db-ig
Kád 40 000 Ft-ig
Mosdó 20 000 Ft-ig
WC 20 000 Ft-ig
Tereprendezés a kivitelezés végén
A klíma kiépítése igény szerint, a kivitelezővel egyeztethető.
Miért érdemes megnézni?
Új építésű, modern megjelenés
Különálló, saját telek
Kiváló elosztású, élhető terek
Csendes, rendezett környezet
Közel a buszmegállóhoz
Tágas terasz, napfényes nappali
Minőségi felszereltség a vételárban
Várom megtisztelő hívását!
Több referencia munkát is szivesen mutatok a kivitelezőtől, így láthatja a már életvitel szerűen lakott ingatlanokat, hogy valóban minőségi a kivitelezés.
Bankfüggetlen Hitel ügyintézővel is állok rendelkezésére. Teljes körű ügyintézéssel!
Forduljon hozzám bizalommal a Duna House teljes kínálatával kapcsolatban, illetve eladási szándékával!
Szolgáltatásaink között megtalálható:
-Ingyenes hitelügyintézés a nemzetközileg elismert Credipass segítségével, garantáltan a legjobb feltételekkel és a leggyorsabb ügyintézéssel.
-Teljes körű ügyintézés ingatlan eladásához és vételéhez.
-Energetikai tanúsítvány készítése gyorsan és megbízhatóan.
-Ingyenes tanácsadás és értékbecslés, hogy a legjobb döntést hozhassa meg.
-Megbízható ügyvédi háttér biztosítása az adásvétel zökkenőmentes lebonyolításához.
Érd. : Fülöp Katalin tel. : +36703500147 Email: fulop. Katalin@dh. Hu
Referencia szám: hz082272 FIX 3% lakáshitelre megvehető

