Eladó új építésű ház - Mende
- INGYENES HIRDETÉS FELADÁS
Ingatlan adatai
- Eladó vagy kiadó:Eladó
- Település:Mende
- Kategória:Ház
- Alkategória:Ikerház
- Alapterület:94 m2
- Telekterület:981 m2
- Csere is:Nem
- Hirdető:Cég
- Élő videón megtekinthető:Nem
- Építés éve:2026
- Szobaszám:4
- Állapot:Új építésű
- Hány szintes az ingatlan:Földszintes
- Tetőtér:nincs megadva
- Komfortosság:nincs megadva
- Pince:nincs megadva
- Parkolási lehetőség:nincs megadva
- Fűtés:Hőszivattyús
- Bútorozottság:nincs megadva
- Fényviszony:Napfényes
- Tájolás:ÉNY
- Kilátás:nincs megadva
- Internet:nincs megadva
- Klíma:nincs megadva
- Akadálymentesített:nincs megadva
- Energiatanúsítvány:nincs megadva
- Villany:Van
- Víz:Van
- Gáz:nincs megadva
- Csatorna:Van
- Kapcsolatfelvétel

Lázár Balázs
+36-(70)-943-5047
Mondd meg a hirdetőnek, hogy a megveszLAK-on találtad a hirdetést.
Referencia szám: HZ040483
Hitel ajánlatok
Ingatlan hirdetés leírása
Eladó ház, Mende, Eladó új építésű ház - Mende
Mende pusztaszentistváni részén új építésű, 3 szobás otthon saját KERTTEL!
Ikerház: első HÁZ
Vasútállomáshoz közel, mégis csendes, nyugodt környezetben!
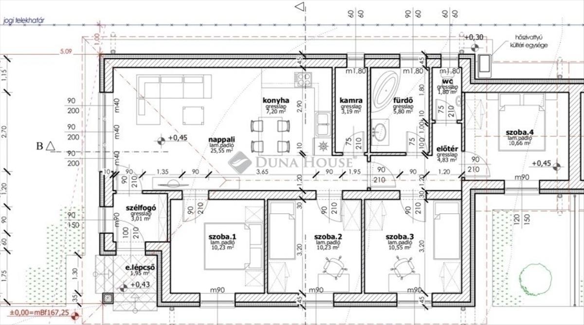
Mendén, a közkedvelt Pusztaszentistváni részen, a vasútállomástól nem messze de kellő távolságra ahhoz, hogy a vonatok zaja ne legyen zavaró kínálok megvételre egy nettó 94 m²-es, új építésű, kiváló elosztású családi otthont.
A 981 m²-es telken elhelyezkedő első ingatlanhoz 250 m² kizárólagos használatú kert tartozik tökéletes választás pihenéshez, kerti sütögetéshez, medencéhez vagy akár mobilgarázs kialakításához.
Itt valóban megvan az intimitás és a nyugalom!
MŰSZAKI tartalom időtálló MINŐSÉG
30 cm-es nútféderes tégla falazat
Fa födém
Antracit betoncserép fedés
15 cm eps homlokzati szigetelés
10 cm Austrotherm padlószigetelés
25 cm ásványgyapot födémszigetelés
6 légkamrás, 3 rétegű üvegezésű nyílászárók
MODERN, gazdaságos FŰTÉS
10 kW-os monoblokkos hőszivattyú
Teljes körű padlófűtés
Alacsony fenntartás, korszerű megoldások.
PRAKTIKUS, családbarát ELRENDEZÉS
3 tágas szoba
Amerikai konyhás nappali
Fürdőszoba + külön WC
Külön háztartási helyiség
Átgondolt alaprajz, élhető terek.
VÁLASZTHATÓ burkolatok és szaniterek (költségkereten BELÜL)
Hideg- és melegburkolatok: 5. 000 Ft/m²-ig
Csaptelepek: 25. 000 Ft/db
Kád vagy zuhany: 70. 000 Ft
Beltéri ajtók: 50. 000 Ft/db
Falsík mögötti wc rendszer
Magasabb kategória is választható, különbözet ráfizetésével.
ELEKTROMOS KIÉPÍTÉS
Szobákban: 3-3 konnektor
Nappaliban: 4 konnektor + internet + kábel TV
Konyhában: 6 konnektor
Helyiségenként világítási kiállás
Kábel tv előkészítés
Riasztó- és kapumozgató elektronika előkészítés
MEGBÍZHATÓ KIVITELEZŐ
A kivitelező Kókán, Sülysápon, több mint 30 ingatlant épített.
Referenciaházakat komoly érdeklődés esetén szívesen mutatok!
Várható átadás: 2026. SZEPTEMBER-OKTÓBER
Ha szeretné biztos, értékálló helyen tudni családja új otthonát Mendén, hívjon bizalommal!
Nézzük meg együtt leendő új OTTHONÁT!
Független hitelügyintézővel is segítem a vásárlást.
Mutass
Lázár Balázs, Tel. : +36709435047, E-mail: lazar. Balazs@dh. Hu
Referencia szám: hz040483 FIX 3% lakáshitelre megvehető
Tetszett ez az eladó Mendei új építésű 4 szobás ikerház? Hívd fel a hirdetőt most, és tudj meg mindent erről az eladó ikerházról! Ha gondolod nézelődj tovább az eladó ház Mende oldal hirdetései között. Ennek az eladó háznak az ára 85000000 Ft és mivel az alapterülete 94 négyzetméter, ezért az átlagos négyzetméterára 904255 HUF/m2.
Az eladó házak menüpontban további hirdetések között is böngészhetsz. Ha van kedved, akkor böngészhetsz a Lázár Balázs összes hirdetése között, vagy akár a/az Duna House Villa Gyömrő összes hirdetése között is.

