Eladó új építésű ház - Mende
- INGYENES HIRDETÉS FELADÁS
Ingatlan adatai
- Eladó vagy kiadó:Eladó
- Település:Mende
- Kategória:Ház
- Alkategória:Ikerház
- Alapterület:94 m2
- Telekterület:981 m2
- Csere is:Nem
- Hirdető:Cég
- Élő videón megtekinthető:Nem
- Építés éve:2026
- Szobaszám:4
- Állapot:Új építésű
- Hány szintes az ingatlan:Földszintes
- Tetőtér:nincs megadva
- Komfortosság:nincs megadva
- Pince:nincs megadva
- Parkolási lehetőség:nincs megadva
- Fűtés:Hőszivattyús
- Bútorozottság:nincs megadva
- Fényviszony:Napfényes
- Tájolás:ÉNY
- Kilátás:nincs megadva
- Internet:nincs megadva
- Klíma:nincs megadva
- Akadálymentesített:nincs megadva
- Energiatanúsítvány:nincs megadva
- Villany:nincs megadva
- Víz:nincs megadva
- Gáz:nincs megadva
- Csatorna:nincs megadva
- Kapcsolatfelvétel

Gerőcs Krisztina
+36-(20)-452-9828
Mondd meg a hirdetőnek, hogy a megveszLAK-on találtad a hirdetést.
Referencia szám: HZ040483
Hitel ajánlatok
Ingatlan hirdetés leírása
Eladó ház, Mende, Eladó új építésű ház - Mende
Mende – pusztaszentistváni RÉSZÉN
ÚJ építésű, 3 szobás otthon saját KERTTEL
Vasútállomáshoz közel, mégis csendes, nyugodt környezetben
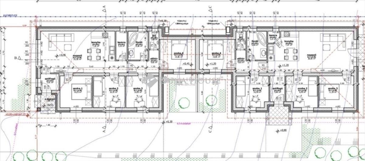
IKERHÁZ – első HÁZ
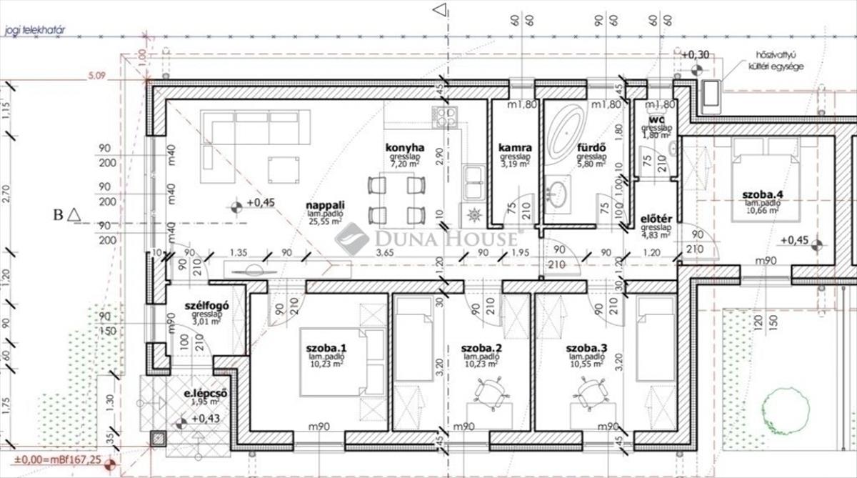
Mendén, a közkedvelt Pusztaszentistváni részen, a vasútállomástól nem messze – de kellő távolságra ahhoz, hogy a vonatok zaja ne legyen zavaró – eladó egy nettó 94 m²-es, új építésű, kiváló elosztású családi otthon.
A 981 m²-es telken elhelyezkedő ingatlanhoz 250 m² kizárólagos használatú kert tartozik – ideális pihenésre, kerti sütögetésre, medencére vagy akár mobilgarázsra.
MŰSZAKI tartalom – időtálló MINŐSÉG
30 cm-es nútféderes tégla falazat
Fa födém
Antracit betoncserép fedés
15 cm eps homlokzati szigetelés
10 cm Austrotherm padlószigetelés
25 cm ásványgyapot födémszigetelés
6 légkamrás, 3 rétegű üvegezésű nyílászárók
MODERN, gazdaságos FŰTÉS
10 kW-os monoblokkos hőszivattyú
Teljes körű padlófűtés
Alacsony fenntartás, korszerű megoldások
PRAKTIKUS, családbarát ELRENDEZÉS
3 tágas szoba
Amerikai konyhás nappali
Fürdőszoba + külön WC
Külön háztartási helyiség
Átgondolt, élhető alaprajz
VÁLASZTHATÓ burkolatok és szaniterek (költségkereten BELÜL)
Hideg- és melegburkolatok: 5. 000 Ft/m²-ig
Csaptelepek: 25. 000 Ft/db
Kád vagy zuhany: 70. 000 Ft
Beltéri ajtók: 50. 000 Ft/db
Falsík mögötti wc rendszer
Magasabb kategória is választható, különbözettel
ELEKTROMOS KIÉPÍTÉS
Szobákban: 3-3 konnektor
Nappaliban: 4 konnektor + internet + kábel TV
Konyhában: 6 konnektor
Helyiségenként világítási kiállás
Kábel tv előkészítés
Riasztó- és kapumozgató előkészítés
MEGBÍZHATÓ KIVITELEZŐ
A kivitelező Kókán, Sülysápon több mint 30 ingatlant épített
Referenciaházak komoly érdeklődés esetén megtekinthetők
VÁRHATÓ átadás: 2026. SZEPTEMBER–OKTÓBER
Ha szeretné biztos, értékálló helyen tudni családja új otthonát Mendén, keressen bizalommal.
Nézzük meg együtt leendő új otthonát.
Független hitelügyintézés biztosított.
Érdeklődni: Gerőcs Krisztina + 36204529828
E-mail : gerocs. Krisztina@dh. Hu
Referencia szám: hz040483 FIX 3% lakáshitelre megvehető
Tetszett ez az eladó Mendei új építésű 4 szobás ikerház? Hívd fel a hirdetőt most, és tudj meg mindent erről az eladó ikerházról! Ha gondolod nézelődj tovább az eladó ház Mende oldal hirdetései között. Ennek az eladó háznak az ára 85000000 Ft és mivel az alapterülete 94 négyzetméter, ezért az átlagos négyzetméterára 904255 HUF/m2.
Az eladó házak menüpontban további hirdetések között is böngészhetsz. Ha van kedved, akkor böngészhetsz a Gerőcs Krisztina összes hirdetése között, vagy akár a/az Duna House Villa Gyömrő összes hirdetése között is.

