Eladó új építésű ház - Mogyoród
- INGYENES HIRDETÉS FELADÁS
Ingatlan adatai
- Eladó vagy kiadó:Eladó
- Település:Mogyoród
- Kategória:Ház
- Alkategória:Ikerház
- Alapterület:134 m2
- Telekterület:400 m2
- Csere is:Nem
- Hirdető:Cég
- Élő videón megtekinthető:Nem
- Építés éve:2025
- Szobaszám:6
- Állapot:Új építésű
- Hány szintes az ingatlan:nincs megadva
- Tetőtér:nincs megadva
- Komfortosság:nincs megadva
- Pince:nincs megadva
- Parkolási lehetőség:nincs megadva
- Fűtés:nincs megadva
- Bútorozottság:nincs megadva
- Fényviszony:nincs megadva
- Tájolás:É
- Kilátás:nincs megadva
- Internet:nincs megadva
- Klíma:nincs megadva
- Akadálymentesített:nincs megadva
- Energiatanúsítvány:nincs megadva
- Villany:Van
- Víz:Van
- Gáz:Van
- Csatorna:Van
- Kapcsolatfelvétel

Nyilas Szabina
+36-(70)-469-3821
Mondd meg a hirdetőnek, hogy a megveszLAK-on találtad a hirdetést.
Hitel ajánlatok
Ingatlan hirdetés leírása
Mogyoród kertvárosi csendes részén eladó egy új építésű ikerhá...
Mogyoród kertvárosi csendes részén eladó egy új építésű ikerház egyik fele. Tökéletes választás lehet nagy családosok számára!
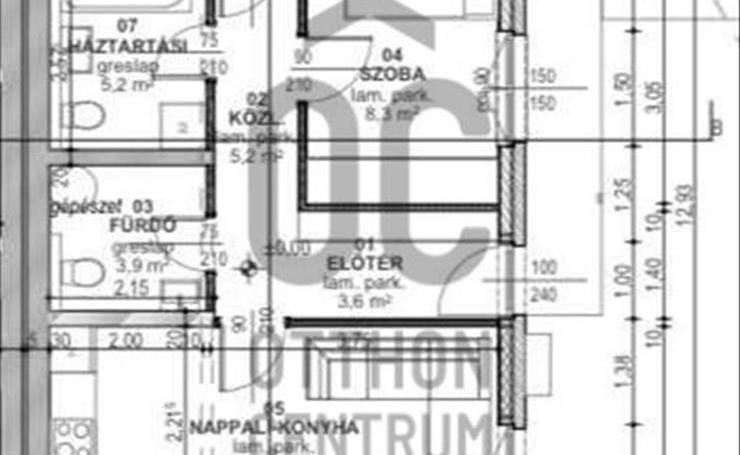
Ez a modern otthon 122 nm -es lakótérrel, egy 11, 24 nm -es terasszal, egy 16, 4 nm -es garázzsal egy fedett autóbeállóval és egy 400 nm -es kerttel biztosítja a hétköznapok kényelmét.
Elrendezését tekintve jól átgondolt/praktikus, így akár két generáció számára is biztosítja a kényelmes, nyugodt élet lehetőségét.
Padlófűtés és korszerű hőszivattyús berendezés gondoskodik az otthon melegéről. a H tarifás megoldásnak köszönhetően költséghatékony a leghidegebb téli időszakokban is!
A ház minőségi alapanyagokból épül és modern műszaki tartalommal tervezett. a belső kialakítás illetve a burkolatok még saját ízlésre formálhatók.
Lokáció szempontjából tökéletes az elhelyezkedése, hiszen a Gödöllő-i hév megállója (Szentjakab) csupán pár perc séta, míg autóval az m3 autópályáról szintén könnyen és gyorsan megközelíthető, de mégis a természet közelsége pihentető/nyugtató hatást gyakorol az itt lakókra!
Átadás várható időpontja 2026 decembere.
Egyedi igényekre szabott lakáshitelekkel állunk rendelkezésére. Bankfüggetlen hitelcentrumunk az országban elérhető összes bank és hitelintézet ajánlatát versenyezteti az Ön számára díjmentesen. Munkatársaink nagy szakmai tapasztalattal várják Önt az előre egyeztetett időpontban.
Bővebb információért és a megtekintéssel kapcsolatban hívjon bizalommal! Hitel.hu - Hasonlítsa össze a bankok lakáshitel ajánlatait
Tetszett ez az eladó Mogyoródi új építésű 6 szobás ikerház? Hívd fel a hirdetőt most, és tudj meg mindent erről az eladó ikerházról! Ha gondolod nézelődj tovább az eladó ház Mogyoród oldal hirdetései között. Ennek az eladó háznak az ára 169000000 Ft és mivel az alapterülete 134 négyzetméter, ezért az átlagos négyzetméterára 1261194 HUF/m2.
Az eladó házak menüpontban további hirdetések között is böngészhetsz. Ha van kedved, akkor böngészhetsz a Nyilas Szabina összes hirdetése között, vagy akár a/az Otthon Centrum III. kerület - Békásmegyer összes hirdetése között is.

