Eladó új építésű ház - Monor (32242444)
ELADÓ INGATLANOK
KIADÓ INGATLANOK
CSERE INGATLANOK
KÜLFÖLDI INGATLANOK
RÉSZLETES KERESÉS
INGATLAN HÍREK
HIRDETÉS FELADÁS
BELÉPÉS
REGISZTRÁCIÓ

Ingatlan adatai

  • Eladó vagy kiadó:Eladó
  • Település:Monor
  • Kategória:Ház
  • Alkategória:Ikerház
  • Alapterület:76 m2
  • Telekterület:282 m2
  • Csere is:Nem
  • Hirdető:Cég
  • Élő videón megtekinthető:Nem
  • Építés éve:2026
  • Szobaszám:4
  • Állapot:Új építésű
  • Hány szintes az ingatlan:Földszintes
  • Tetőtér:nincs megadva
  • Komfortosság:nincs megadva
  • Pince:nincs megadva
  • Parkolási lehetőség:nincs megadva
  • Fűtés:Hőszivattyús
  • Bútorozottság:nincs megadva
  • Fényviszony:
  • Tájolás:ÉNY
  • Kilátás:nincs megadva
  • Internet:nincs megadva
  • Klíma:nincs megadva
  • Akadálymentesített:nincs megadva
  • Energiatanúsítvány:nincs megadva
  • Villany:nincs megadva
  • Víz:nincs megadva
  • Gáz:nincs megadva
  • Csatorna:nincs megadva
  • Kapcsolatfelvétel
Gál Beáta
Gál Beáta
+36-(70)-552-1003
Mondd meg a hirdetőnek, hogy a megveszLAK-on találtad a hirdetést.
Referencia szám: HZ084376
Érdekel kedvezményes lakáshitel ajánlat is
Az ASZF-et és az Adatkezelési tájékoztatót elfogadom

Hitel ajánlatok

 

Ingatlan hirdetés leírása

Eladó ház, Monor, Eladó új építésű ház - Monor


Új építésű, modern ikerház kulcsrakész kivitelben monoron – saját kerttel, hőszivattyús FŰTÉSSEL

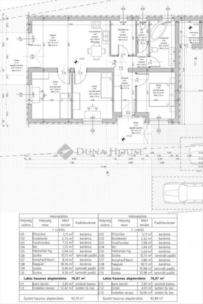
Monor kedvelt, folyamatosan fejlődő részén kínálunk megvételre egy kiváló elosztású, nettó 76 m²-es, 3 szoba + nappalis, új építésű ikerházfelet, hozzávetőlegesen 300 m²-es saját kerttel.

Az ingatlan ideális választás mindazok számára, akik modern, energiatakarékos otthont keresnek élhető méretű kerttel, nyugodt környezetben.

Átgondolt, praktikus elrendezés:
A belső terek kényelmes és jól kihasználható kialakításúak: három különnyíló szoba mellett egy világos, teraszkapcsolatos amerikai konyhás nappali biztosítja az otthon központját. a fürdőszoba és a külön wc, valamint a háztartási helyiség a mindennapi kényelmet szolgálják, míg a kert felé nyíló terasz tökéletes helyszínt kínál a pihenéshez.

A két lakóegység egy praktikus tárolón keresztül kapcsolódik, így biztosított a kellő intimitás.

Modern műszaki tartalom:
Az ingatlan korszerű, energiahatékony megoldásokkal épül:
levegő-víz hőszivattyús rendszer padlófűtéssel
– 10 cm grafitos homlokzati szigetelés
– 30 cm tetőszigetelés
– korszerű, háromrétegű üvegezésű nyílászárók
H tarifa kialakítás
– elektromos nagykapu és igényes utcafronti kerítés

A burkolatok és belső kialakítás igény szerint választható, így új otthonát saját stílusára formálhatja.

Kulcsrakész kivitel, megbízható kivitelező:
Az ár a kulcsrakész állapotot tartalmazza. a beruházás stabil anyagi háttérrel rendelkező kivitelező által valósul meg, saját forrásból építve.

Jogilag rendezett:
Az ingatlan önálló helyrajzi számmal rendelkezik, nem osztatlan közös tulajdon. a társasházi alapítás biztosítja a tiszta jogi hátteret. Már 10% önerővel szerződhető.

Kiváló infrastruktúra és elhelyezkedés:
Monor minden szükséges szolgáltatást biztosít a mindennapokhoz: üzletek, pékségek, gyógyszertárak, bankok, piac, oktatási intézmények, valamint sportolási lehetőségek is könnyen elérhetők. a város a dél-kelet pesti agglomeráció egyik dinamikusan fejlődő központja, amely ideális választás otthonteremtésre és befektetésre egyaránt.

A kiváló közlekedésnek köszönhetően Budapest és a környező települések gyorsan és kényelmesen megközelíthetők.

Várható átadás: 2026. Október
Érd: Gál Beáta 06705521003 gal. Beata@dh. Hu

Referencia szám: hz084376 FIX 3% lakáshitelre megvehető

Tetszett ez az eladó Monori új építésű 4 szobás ikerház? Hívd fel a hirdetőt most, és tudj meg mindent erről az eladó ikerházról! Ha gondolod nézelődj tovább az eladó ház Monor oldal hirdetései között. Ennek az eladó háznak az ára 80000000 Ft és mivel az alapterülete 76 négyzetméter, ezért az átlagos négyzetméterára 1052632 HUF/m2.

Az eladó házak menüpontban további hirdetések között is böngészhetsz. Ha van kedved, akkor böngészhetsz a Gál Beáta összes hirdetése között, vagy akár a/az Duna House Villa Gyömrő összes hirdetése között is.

 
 
© megveszLAK.hu - Az egyszerűen jó ingatlan hirdetési oldal