Eladó új építésű ház - Monor
- INGYENES HIRDETÉS FELADÁS
Ingatlan adatai
- Eladó vagy kiadó:Eladó
- Település:Monor
- Kategória:Ház
- Alkategória:Ikerház
- Alapterület:80 m2
- Telekterület:350 m2
- Csere is:Nem
- Hirdető:Cég
- Élő videón megtekinthető:Nem
- Építés éve:2026
- Szobaszám:4
- Állapot:Új építésű
- Hány szintes az ingatlan:Földszintes
- Tetőtér:nincs megadva
- Komfortosság:nincs megadva
- Pince:nincs megadva
- Parkolási lehetőség:nincs megadva
- Fűtés:Hőszivattyús
- Bútorozottság:nincs megadva
- Fényviszony:Napfényes
- Tájolás:DNY
- Kilátás:nincs megadva
- Internet:nincs megadva
- Klíma:nincs megadva
- Akadálymentesített:nincs megadva
- Energiatanúsítvány:nincs megadva
- Villany:nincs megadva
- Víz:nincs megadva
- Gáz:nincs megadva
- Csatorna:nincs megadva
- Kapcsolatfelvétel

Póta-Für Adrienn
+36-(30)-115-1416
Mondd meg a hirdetőnek, hogy a megveszLAK-on találtad a hirdetést.
Referencia szám: HZ086305
Hitel ajánlatok
Ingatlan hirdetés leírása
Új otthon Monoron, Eladó új építésű ház - Monor
Ne maradj le Monor egyik leggyorsabban elkelő új építésű projektjéről!
Vásárolj Monor egyik legjobb, bizonyítottan megbízható kivitelezőjétől!
Magas műszaki tartalom, igényes kivitelezés, referenciákkal alátámasztva!
Műszaki tartalom:
- Kívül fokozottan hőszigetelt tok-, és szárnyszerkezetű, 3 rtg. Ű üvegezésű fa, vagy műanyag nyílászárók
- Talajnedvesség ellen: 1 rtg. Gv-4 bitumenes vastaglemez
- Hőszigetelés: a külső falakon 10 cm vastag kőzetgyapot hőszigetelés készül
- a hideg burkolatok ragasztott mázas kerámiából, vagy gresslapból készülnek, flexibilis ragasztóval és fugával. a meleg burkolatok laminált parkettából készülnek. (Falaknál dilatációs hézaggal).
- a vizes helyiségekben a falakon csempeburkolat készül.
- a térburkolatok beton térburkoló elemekből készülnek.
- Burkolatok 5000ft/m2-ig választhatóak, belső ajtók és szaniterek szintén választhatóak.
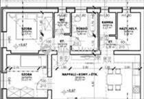
Projekt főbb adatai:
- 80, 35 m² hasznos alapterület
- 3 hálószoba
- Amerikai konyhás nappali, fürdő + wc, külön wc, kamra, háztartási helyiség, tornác
- Ingatlanok között hangszigetelő fal a maximális nyugalomért
Infrastruktúra minden 2 km-en belül:
- Bevásárlási lehetőségek
- Vasútállomás
- Buszpályaudvar
- Általános iskola
- Gimnázium
- Budapest gyorsan elérhető a 4-es főúton vagy az M4-en
- Kiváló vasúti kapcsolat a CeglédSzolnok vonalon
Várható átadás
- 2026 év vége
Ha kérdése van vagy szeretné megtekinteni, keressen bizalommal a hét bármely napján!
Póta-Für Adrienn
Ezüst fokozatú ingatlanértékesítő
+36 30 115 1416
potafur. Adrienn@dh. Hu
Ha még nem találta meg új otthonát, esetleg a vásárláshoz előbb el kell adnia egy ingatlant, keressen a fenti elérhetőségeimen, együtt megtaláljuk a megoldást!
Irodánk pénzügyi szakértője díjmentes és bankfüggetlen hiteltanácsadással segíti a vásárlást, melynek lebonyolításához igény esetén megbízható ügyvédi hátteret biztosítunk.
Referencia szám: hz086305 FIX 3% lakáshitelre megvehető
Tetszett ez az eladó Monori új építésű 4 szobás ikerház? Hívd fel a hirdetőt most, és tudj meg mindent erről az eladó ikerházról! Ha gondolod nézelődj tovább az eladó ház Monor oldal hirdetései között. Ennek az eladó háznak az ára 87500000 Ft és mivel az alapterülete 80 négyzetméter, ezért az átlagos négyzetméterára 1093750 HUF/m2.
Az eladó házak menüpontban további hirdetések között is böngészhetsz. Ha van kedved, akkor böngészhetsz a Póta-Für Adrienn összes hirdetése között, vagy akár a/az Duna House Villa Gyömrő összes hirdetése között is.

