Eladó új építésű ház - Monor
- INGYENES HIRDETÉS FELADÁS
Ingatlan adatai
- Eladó vagy kiadó:Eladó
- Település:Monor
- Kategória:Ház
- Alkategória:Ikerház
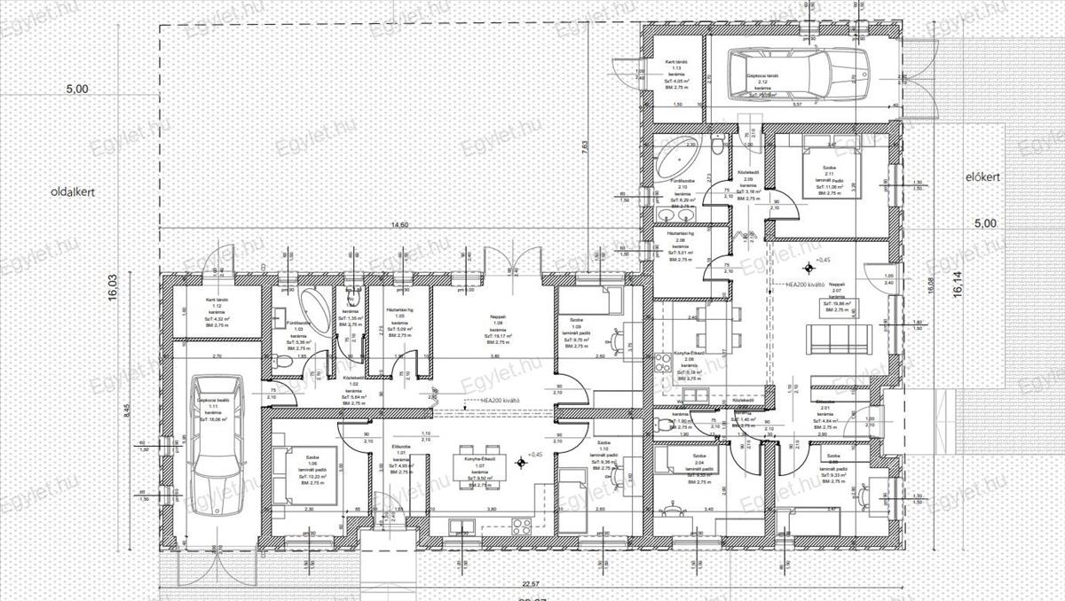
- Alapterület:86 m2
- Telekterület:350 m2
- Csere is:Nem
- Hirdető:Cég
- Élő videón megtekinthető:Nem
- Építés éve:2026
- Szobaszám:4
- Állapot:Új építésű
- Hány szintes az ingatlan:nincs megadva
- Tetőtér:nincs megadva
- Komfortosság:nincs megadva
- Pince:Nincs
- Parkolási lehetőség:Garázsban
- Fűtés:nincs megadva
- Bútorozottság:nincs megadva
- Fényviszony:nincs megadva
- Tájolás:nincs megadva
- Kilátás:nincs megadva
- Internet:Optikai
- Klíma:Van
- Akadálymentesített:nincs megadva
- Energiatanúsítvány:nincs megadva
- Villany:Van
- Víz:Van
- Gáz:Van
- Csatorna:Van
- Kapcsolatfelvétel

Horváth Zoltán
+36-(70)-550-6680
Mondd meg a hirdetőnek, hogy a megveszLAK-on találtad a hirdetést.
Hitel ajánlatok
Ingatlan hirdetés leírása
Megvételre kínálunk Monoron egy újépítésű, HÓSZIVATTYÚS, KLÍMÁ...
Megvételre kínálunk Monoron egy újépítésű, hószivattyús, klímás, teraszos, 86 nm-es, 4 szobás ikerházat. Minőségi alapanyagokból, igényes kivitelezés jellemzi a projektet, ahol a biztonság és a kényelem mellett az energiatakarékosság volt a fő szempont. Az ingatlan fűtéséről, egy modern, energia takarékos, innovatív levegő-víz hőszivattyú, míg a használati melegvíz ellátásáról egy hőszivattyús bojler gondoskodik H tarifás üzemeltetéssel.
Ennek köszönhetően a rezsi költségek minimalizálódnak.
Az ingatlan hűtéséről egy klíma berendezés fog gondoskodni.
Ennél a beruházásnál most lehetősége van kompromisszumok nélkül egy olyan lakásba költözni, ahol Ön kiválaszthatja a hideg és meleg burkolatokat, szanitereket, valamint az egyéb kiegészítőket a családja legnagyobb megelégedésére, ez által személyre szabva álmai otthonát.
A kulcsra kész ár tartalmazza a redőnyöket, három rétegű nyílászárókat, riasztó előkészítést, kaputelefon és motoros kapu kiépítést. a gépjárművekkel az ingatlanhoz tartozó garázsban vagy a térkövezett beállón lehet biztonságosan parkolni.
Az ingatlanhoz megközelítőleg egy 350 nm-es privát telek tartozik.
Igénybe vehető lehetséges kedvezmények:
CSOK
5% Áfa visszatérítés
Babaváró hitel
Illeték kedvezmény vagy mentesség.
Helyiség lista:
- Előszoba
- Közlekedő
- Háztartási helyiség
- wc, mosdó
- Három hálószoba
- Fürdőszoba
- Amerikai konyha,
- Étkező
- Nappali
- Tároló
- Terasz
- Garázs
A hirdetés referencia fotókat is tartalmaz.
Az ingatlan biztonságos, nyugodt, csendes, kertes házas övezetében, Monor egyik legszebb részén található. a környék fejlett infrastruktúrájának köszönhetően bővelkedik a szociális intézményekben, bölcsőde, óvoda, általános iskola, orvosi intézmények, bevásárlási lehetőségek, találhatóak a közelben.
Közlekedése kiváló, busszal a centrum vagy vonattal a Nyugati pu. Rövid idő alatt megközelíthető. Az M4-es autópálya öt perc alatt elérhető.
Hitel, CSOK igénylésben díjmentes ügyintézéssel állunk rendelkezésére! Nálunk kiválaszthatja az Ön számára legkedvezőbb ajánlatot.
Várom megtisztelő érdeklődésüket. FIX 3% lakáshitelre megvehető

