Eladó új építésű ház - Monor
- INGYENES HIRDETÉS FELADÁS
Ingatlan adatai
- Eladó vagy kiadó:Eladó
- Település:Monor
- Kategória:Ház
- Alkategória:Ikerház
- Alapterület:76 m2
- Telekterület:282 m2
- Csere is:Nem
- Hirdető:Cég
- Élő videón megtekinthető:Nem
- Építés éve:2026
- Szobaszám:4
- Állapot:Új építésű
- Hány szintes az ingatlan:Földszintes
- Tetőtér:nincs megadva
- Komfortosság:nincs megadva
- Pince:nincs megadva
- Parkolási lehetőség:nincs megadva
- Fűtés:Hőszivattyús
- Bútorozottság:nincs megadva
- Fényviszony:Jó
- Tájolás:ÉNY
- Kilátás:nincs megadva
- Internet:nincs megadva
- Klíma:nincs megadva
- Akadálymentesített:nincs megadva
- Energiatanúsítvány:nincs megadva
- Villany:nincs megadva
- Víz:nincs megadva
- Gáz:nincs megadva
- Csatorna:nincs megadva
- Kapcsolatfelvétel

Póta-Für Adrienn
+36-(30)-115-1416
Mondd meg a hirdetőnek, hogy a megveszLAK-on találtad a hirdetést.
Referencia szám: HZ084376
Hitel ajánlatok
Ingatlan hirdetés leírása
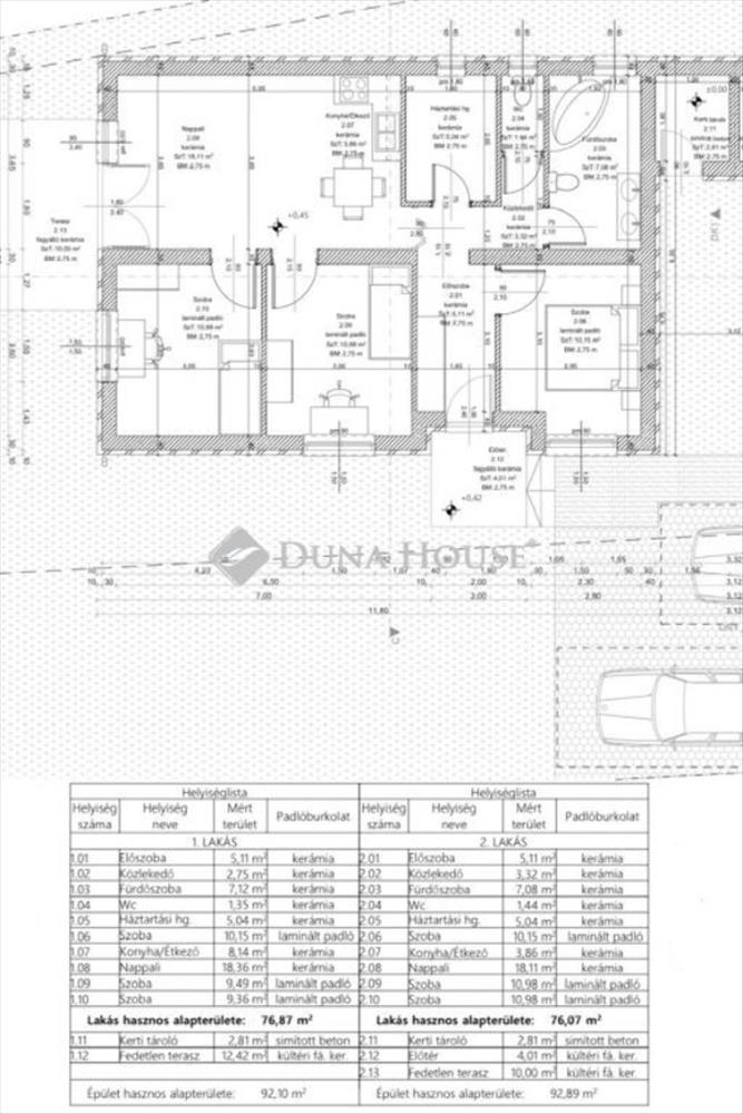
Új építésű ikerház-fél Monoron
Monoron eladó, új építésű, 3 szoba + nappalis, tároló kapcsolatos ikerházfél, hőszivattyús fűtéssel, kb 300 nm -es kerttel!
Belső nettó hasznos élhető tér 76 nm !
Várható átadás : 2026. 10 Hó
Önálló helyrajzi számmal fog rendelkezni, nem osztatlan közös tulajdon, társasház alapító lesz.
10 % Önerővel szerződhető!
Helyiségeit tekintve nagyon jó elosztással rendelkezik, alábbiakban sorolom fel négyzetméterek megjelölésével:
- 3 önálló bejáratú szoba (10. 15 Nm, 10. 98 Nm, 10. 98 Nm)
- teraszkapcsolatos nappali + konyha és étkező (21. 97 Nm)
- előszoba (5. 11 Nm)
- közlekedő (3. 32 Nm)
- fürdőszoba (7. 08 Nm)
- wc (1. 44 Nm)
- háztartási helyiség (5 nm )
- kerti tároló, itt ér össze a két épület (2. 81 Nm)
- nyitott terasz (10 nm )
Műszaki leírás:
- Fischer hőszivattyús fűtés, padlófűtéssel
- burkolat meleg 8000 Ft / nm , hideg: 10 000 ft / nm
- 10 cm hőszigetelés grafitos
- 30 cm üveggyapot tető hőszigetelés
- vakolás: belső: alapvakolat + simítóvakolat
- lábazaton 8 cm xps hőszigetelés
- nyílászárók: típus műanyag szerkezetek, fehér színben, 3 rtg. Hőszig. Üveggel
- festés: belsőben páraáteresztő falfestékkel, színezve igény szerint
- elektromos nagykapu
- utcafronton épített, igényes kerítés
- H tarifa
Az ár kulcsrakészen értendő!
A házakat önerőből építi! Az építő cég anyagilag biztos talpakon áll!
Monoron megtalálható:
Pékség, Cukrászda, Gyógyszertár, Posta, Vendéglő, Könyvtár, Zöldséges, Rossmann, Dm, Élelmiszer boltok, Okmányiroda, Bankok(Takarék, Otp, Budapest Bank), Piac, Bölcsöde, Óvoda, Iskola, Gimnázium, Uszoda, Elektromos autó töltő.
Monor a dél-kelet pesti agglomerációban, a dinamikusan fejlődő főváros és vonzáskörzete, a jó minőségű lakókörnyezetet egyre színvonalasabb közszolgáltatásokkal is biztosító, egyúttal a befektetők számára is vonzó település.
Monor olyan város, ahol jó élni, ahol jó befektetni.
Kiváló közlekedésének köszönhetően az ország bármely pontja könnyen elérhető Monorról.
Ha kérdése van vagy szeretné megtekinteni, keressen bizalommal a hét bármely napján!
Póta-Für Adrienn
Ezüst fokozatú ingatlanértékesítő
+36 30 115 1416
potafur. Adrienn@dh. Hu
Ha még nem találta meg új otthonát, esetleg a vásárláshoz előbb el kell adnia egy ingatlant, keressen a fenti elérhetőségeimen, együtt megtaláljuk a megoldást!
Irodánk pénzügyi szakértője díjmentes és bankfüggetlen hiteltanácsadással segíti a vásárlást, melynek lebonyolításához igény esetén megbízható ügyvédi hátteret biztosítunk.
Referencia szám: hz084376 FIX 3% lakáshitelre megvehető
Tetszett ez az eladó Monori új építésű 4 szobás ikerház? Hívd fel a hirdetőt most, és tudj meg mindent erről az eladó ikerházról! Ha gondolod nézelődj tovább az eladó ház Monor oldal hirdetései között. Ennek az eladó háznak az ára 80000000 Ft és mivel az alapterülete 76 négyzetméter, ezért az átlagos négyzetméterára 1052632 HUF/m2.
Az eladó házak menüpontban további hirdetések között is böngészhetsz. Ha van kedved, akkor böngészhetsz a Póta-Für Adrienn összes hirdetése között, vagy akár a/az Duna House Villa Gyömrő összes hirdetése között is.

