Eladó új építésű ház - Monor
- INGYENES HIRDETÉS FELADÁS
Ingatlan adatai
- Eladó vagy kiadó:Eladó
- Település:Monor
- Kategória:Ház
- Alkategória:Ikerház
- Alapterület:77 m2
- Telekterület:82 m2
- Csere is:Nem
- Hirdető:Cég
- Élő videón megtekinthető:Nem
- Építés éve:2026
- Szobaszám:4
- Állapot:Új építésű
- Hány szintes az ingatlan:Földszintes
- Tetőtér:nincs megadva
- Komfortosság:nincs megadva
- Pince:nincs megadva
- Parkolási lehetőség:nincs megadva
- Fűtés:Hőszivattyús
- Bútorozottság:nincs megadva
- Fényviszony:Napfényes
- Tájolás:DNY
- Kilátás:nincs megadva
- Internet:nincs megadva
- Klíma:nincs megadva
- Akadálymentesített:nincs megadva
- Energiatanúsítvány:A
- Villany:Van
- Víz:Van
- Gáz:Utcában
- Csatorna:Van
- Kapcsolatfelvétel

Banda Péter
+36-(70)-941-6730
Mondd meg a hirdetőnek, hogy a megveszLAK-on találtad a hirdetést.
Referencia szám: HZ053717
Hitel ajánlatok
Ingatlan hirdetés leírása
Eladó ház, Monor, Eladó új építésű ház - Monor
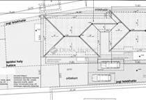
Monoron eladó, új építésű, 3 szoba + nappalis, tároló kapcsolatos ikerházfél, csatornával, hőszivattyús fűtéssel! Belső nettó hasznos élhető tér 77 nm ! Várható átadás : 2026. 10 HóÖnálló helyrajzi számmal fog rendelkezni, nem osztatlan közös tulajdon, társasház alapító lesz. 10 % Önerővel szerződhető! Helyiségeit tekintve nagyon jó elosztással rendelkezik, alábbiakban sorolom fel négyzetméterek megjelölésével:- 3 önálló bejáratú szoba (10. 15 Nm, 9. 49 Nm, 9. 36 Nm)- teraszkapcsolatos nappali (18. 36 Nm)- konyha + étkező (8. 14 Nm)- előszoba (5. 11 Nm)- közlekedő (2. 75 Nm)- fürdőszoba (7. 12 Nm)- wc (1. 35 Nm)- háztartási helyiség (5 nm )- kerti tároló, itt ér össze a két épület (2. 81 Nm)- nyitott terasz (12. 42 Nm)- H tarifaMűszaki leírás:- Fischer hőszivattyús fűtés, padlófűtéssel- burkolat meleg 8000 Ft / nm , hideg: 10 000 ft / nm -10 cm hőszigetelés grafitos- 30 cm üveggyapot tető hőszigetelés- vakolás: belső: alapvakolat + simítóvakolat- lábazaton 8 cm xps hőszigetelés- nyílászárók: típus műanyag szerkezetek, fehér színben, 3 rtg. Hőszig. Üveggel- festés: belsőben páraáteresztő falfestékkel, színezve igény szerint- elektromos nagykapu- utcafronton épített, igényes kerítésAz ár kulcsrakészen értendő! a házakat önerőből építi! Az építő cég anyagilag biztos talpakon áll! Monoron megtalálható:Pékség, Cukrászda, Gyógyszertár, Posta, Vendéglő, Könyvtár, Zöldséges, Rossmann, Dm, Élelmiszer boltok, Okmányiroda, Bankok(Takarék, Otp, Budapest Bank), Piac, Bölcsöde, Óvoda, Iskola, Gimnázium, Uszoda, Elektromos autó töltő. Monor a dél-kelet pesti agglomerációban, a dinamikusan fejlődő főváros és vonzáskörzete, a jó minőségű lakókörnyezetet egyre színvonalasabb közszolgáltatásokkal is biztosító, egyúttal a befektetők számára is vonzó település. Monor olyan város, ahol jó élni, ahol jó befektetni. Kiváló közlekedésének köszönhetően az ország bármely pontja könnyen elérhető Monorról. Amennyiben felkeltettem érdeklődésed keress nyugodtan, és gyere, nézd meg velem az ingatlant! Hitel ügyintézés, eladás és vétel teljes körű ügyintézése, ingyenes tanácsadás, értékbecslés, megbízható ügyvédi háttér biztosítása. FIX 3% lakáshitelre megvehető
Tetszett ez az eladó Monori új építésű 4 szobás ikerház? Hívd fel a hirdetőt most, és tudj meg mindent erről az eladó ikerházról! Ha gondolod nézelődj tovább az eladó ház Monor oldal hirdetései között. Ennek az eladó háznak az ára 77000000 Ft és mivel az alapterülete 77 négyzetméter, ezért az átlagos négyzetméterára 1000000 HUF/m2.
Az eladó házak menüpontban további hirdetések között is böngészhetsz. Ha van kedved, akkor böngészhetsz a Banda Péter összes hirdetése között, vagy akár a/az Duna House Szent Imre-kertváros összes hirdetése között is.

