Eladó ház Mosonmagyaróvár
| Kedvencbe | Megosztás | Árfigyelő |
| FIX 3% lakáshitelre megvehető | ||
| 94 666 667 HUF | ||
Ingatlan adatai
- Eladó vagy kiadó:Eladó
- Település:Mosonmagyaróvár
- Kategória:Ház
- Alkategória:Ikerház
- Alapterület:143 m2
- Telekterület:nincs megadva
- Csere is:Nem
- Hirdető:Cég
- Élő videón megtekinthető:Nem
- Szobaszám:5
- Állapot:nincs megadva
- Hány szintes az ingatlan:nincs megadva
- Tetőtér:nincs megadva
- Komfortosság:nincs megadva
- Parkolási lehetőség:nincs megadva
- Fűtés:nincs megadva
- Bútorozottság:nincs megadva
- Fényviszony:nincs megadva
- Tájolás:nincs megadva
- Kilátás:nincs megadva
- Internet:nincs megadva
- Akadálymentesített:nincs megadva
- Energiatanúsítvány:nincs megadva
- Villany:nincs megadva
- Víz:nincs megadva
- Gáz:nincs megadva
- Csatorna:nincs megadva
- Üzenetküldés
- Hívás


Hitel ajánlat
Ingatlan hirdetés leírása
Mosonmagyaróváron, Energiatakarékos! Új Építésű ikerház, 143 n...
Mosonmagyaróváron, Új Építésű ikerház, 143 nm-es, Nappali + 4 szobás, 2 fürdővel, kocsi beállóval, emeltszintű szerkezetkész állapotban, 364 nm-es telekkel hozzátartozó zöld területtel eladó.Energiatakarékos!
01. ) Emeltszintű szerkezetkész állapot a következőket tartalmazza:
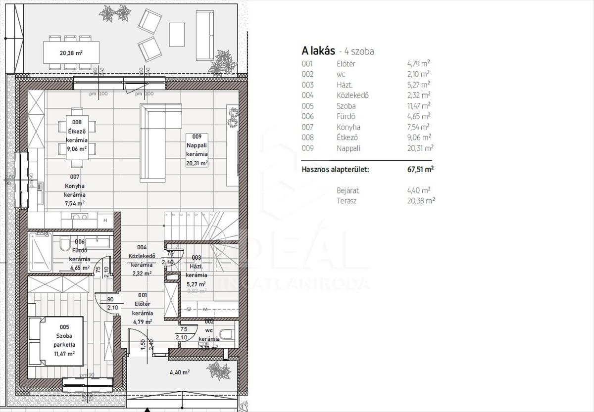
A "a" ház nettó (hasznos) alapterülete: 122, 77 m2
terasz területe: 20, 38 m2
gépjármű beálló területe : 35, 6 m2
bejárat területe: 4, 40 m2
Fizetendő összesen nettó: 94 666 667 Ft + Áfa 5% 4 733 333 Ft
Fizetendő összesen bruttó: 99 400 000 Ft
02. ) Befejező munkálatok:
Befejező munkálatok: 122, 77m2 12 890 850 Ft Nettó
Befejező munkálatok Áfa 5% 644 543 Ft
Befejező munkálatok (bruttó) összesen: 13 535 393 Ft
Paraméterek:
A "b" Lakás hasznos alapterülete: 122, 77 m2
Terasz területe: 20, 38 m2
Gépjármű beálló területe: 35, 60 m2
Bejárat területe: 4, 40 m2
Egyéb adatok az alaprajzon megtalálhatóak.
Szerkezet anyagok nagyvonalakban:
Alap szerkezete: Sávalap
Külső falazat: leiertherm n+f 30-as falazó elem
Térelválasztó szerkezetek: Leier Leiertherm 10/50 n+f válaszfaltégla
Belső felületképzés: mész-cement vakolat.
Padló szigetelése: 12 cm vtg. Austrotherm at-n100 hőszigetelő lemez.
Külső fal szigetelés: 15 cm vtg. Austrotherm at-h80 hőszigetelő lemez.
Az ár tartalmaz:
Az épület fűtését telepített levegő-víz hő-szivattyúk biztosítják. a hőleadás módja az épületben:
alacsony hőmérsékletű felületfűtő rendszer (padlófűtés)
Az épület teljes külső szigetelése, homlokzati színezése (baumit Silikon Top).
Lábazatra, sötétszürke színű homlokzati színvakolat (baumit Silikon Top).
Belső felületkezelés: belső gépi vakolat + glettelés
3 rétegű 6 kamrás műanyag nyílászárók (kömmerling), kívül antracit, belül fehér színben.
Antracit színű alumínium könyöklő külső oldalon.
Elektromos alumínium redőny kiépítése
Villany vezetékek kiépítése, dobozok elhelyezése előre leegyeztetett pozicióba.
Kábel tv előkészítés.
Telekhatár mentén kerítés készítése. Hátsó oldalon elemes beton kerítés. Utcafronton és
oldalhatáron lévő kerítések 3D-s kivitelben kérszülnek, antracit színben.
Teraszok, parkoló és járda térkőből kerül kialakításra, Leier Piazza betonszürke színben, 6 cm
vastagságban.
Az ideál Ingatlaniroda az ingatlanok értékesítése és bérbeadása mellett teljes körű szolgáltatást kínál:
- Teljes körű díjmentes hitelügyintézés.
- Bankfüggetlen tanácsadás.
- Lakástakarék beszámítása.
- Energetikai tanúsítvány készítése.
- Ügyvédi szerződések.
- Jogi tanácsadás.
Önnek is megtaláljuk a legjobb megoldást. Kérdés esetén szívesen állunk rendelkezésére.
Üdvözlettel:
Az ideál Ingatlaniroda csapata
(hivatkozási szám: m106928) FIX 3% lakáshitelre megvehető

