Eladó új építésű ház - Nagykovácsi
- INGYENES HIRDETÉS FELADÁS
Ingatlan adatai
- Feladva:4 hónapja a megveszLAK-on
- Eladó vagy kiadó:Eladó
- Település:Nagykovácsi
- Kategória:Ház
- Alkategória:Ikerház
- Alapterület:170 m2
- Telekterület:2051 m2
- Csere is:Nem
- Hirdető:Cég
- Élő videón megtekinthető:Nem
- Építés éve:2024
- Szobaszám:5 + 1 fél
- Állapot:Új építésű
- Hány szintes az ingatlan:2 szintes
- Tetőtér:nincs megadva
- Komfortosság:nincs megadva
- Pince:nincs megadva
- Parkolási lehetőség:Garázsban
- Fűtés:nincs megadva
- Bútorozottság:nincs megadva
- Fényviszony:nincs megadva
- Tájolás:nincs megadva
- Kilátás:nincs megadva
- Internet:nincs megadva
- Klíma:nincs megadva
- Akadálymentesített:nincs megadva
- Energiatanúsítvány:nincs megadva
- Villany:Van
- Víz:Van
- Gáz:Utcában
- Csatorna:Van
- Kapcsolatfelvétel

Szalay Zsuzsanna
+36-(30)-895-1781
Mondd meg a hirdetőnek, hogy a megveszLAK-on találtad a hirdetést.
Hitel ajánlatok
Ingatlan hirdetés leírása
Eladó újépítésű minőségi ikerház Nagykovácsiban. 170nm-es, 5+...
Eladó új építésű minőségi ikerház Nagykovácsiban.
170Nm-es, 5+1 szobás, garázsos, duplakomfortos, energiatudatos épület igényes kivetelézben.
Az eladó ikerház 2024 iii. -Iv. Negyedévében kerül átadásra.
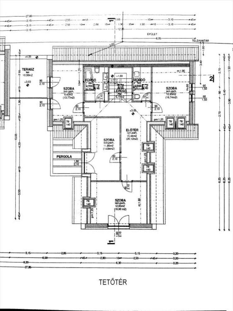
Elrendezés :
Földszinten Nappali-konyha-étkező (44, 7 nm ), szoba (14, 8 nm ), fürdőszoba, gardrób, előszoba + terasz (25 nm );
Emelet: 4 szoba (br. 18, 9, 14, 8, 16, 7 És 9, 4 nm ) 2 fürdőszoba (5, 0 és 3, 7 nm ) + lépcsőház.
A 2051 nm -es telken két ikerház kerül kialakításra, az egyes lakásokhoz ~ 400 nm -es saját kertrész tartozik.
Fűtés és meleg víz: hőszivattyú padló és mennyezet felületi fűtéssel.
Külső nyílászárók pácoét fa szerkezetűek, ablakok háromrétegűek hőszigetelt üvegezéssel, külső zsaluziáva. Belső ajtók: pácolt fa szerkezetűek.
Hőszigetelés: padlóban 15 cm; tetőfödémben 30 cm; garázsban 10 cm.
Hangszigetelés padlóban, födémben 4 cm.
Pergola a D-i fronton.
Esővíztárolás: 5 m3.
Fiztési ütemezés a készenléti állapotnak megfelelően.
Amennyiben az ingatlanvásárlásához banki finanszírozást is igénybe kíván venni, úgy bankfüggetlen hitelügyintéző kollégáink szívesen nyújtanak felvilágosítást az aktuális hitelekkel, egyénre szabott kedvezményekkel, CSOK-kal kapcsolatban. Hitel.hu - Hasonlítsa össze a bankok lakáshitel ajánlatait
Tetszett ez az eladó Nagykovácsi új építésű 5 egész és 1 fél szobás ikerház? Hívd fel a hirdetőt most, és tudj meg mindent erről az eladó ikerházról! Ha gondolod nézelődj tovább az eladó ház Nagykovácsi oldal hirdetései között. Ennek az eladó háznak az ára 255000000 Ft és mivel az alapterülete 170 négyzetméter, ezért az átlagos négyzetméterára 1500000 HUF/m2.
Az eladó házak menüpontban további hirdetések között is böngészhetsz. Ha van kedved, akkor böngészhetsz a Szalay Zsuzsanna összes hirdetése között, vagy akár a/az GDN Ingatlanhálózat összes hirdetése között is.

