Eladó új építésű ház - Nyáregyháza
- INGYENES HIRDETÉS FELADÁS
Ingatlan adatai
- Eladó vagy kiadó:Eladó
- Település:Nyáregyháza
- Kategória:Ház
- Alkategória:Ikerház
- Alapterület:90 m2
- Telekterület:435 m2
- Csere is:Nem
- Hirdető:Cég
- Élő videón megtekinthető:Nem
- Építés éve:2025
- Szobaszám:4
- Állapot:Új építésű
- Hány szintes az ingatlan:Földszintes
- Tetőtér:nincs megadva
- Komfortosság:nincs megadva
- Pince:nincs megadva
- Parkolási lehetőség:Udvaron
- Fűtés:Hőszivattyús
- Bútorozottság:nincs megadva
- Fényviszony:Napfényes
- Tájolás:DNY
- Kilátás:nincs megadva
- Internet:nincs megadva
- Klíma:nincs megadva
- Akadálymentesített:nincs megadva
- Energiatanúsítvány:nincs megadva
- Villany:Van
- Víz:Van
- Gáz:Utcában
- Csatorna:Van
- Kapcsolatfelvétel

Turcsányi István
+36-(30)-263-3889
Mondd meg a hirdetőnek, hogy a megveszLAK-on találtad a hirdetést.
Referencia szám: HZ062378
Hitel ajánlatok
Ingatlan hirdetés leírása
Eladó ház, Nyáregyháza
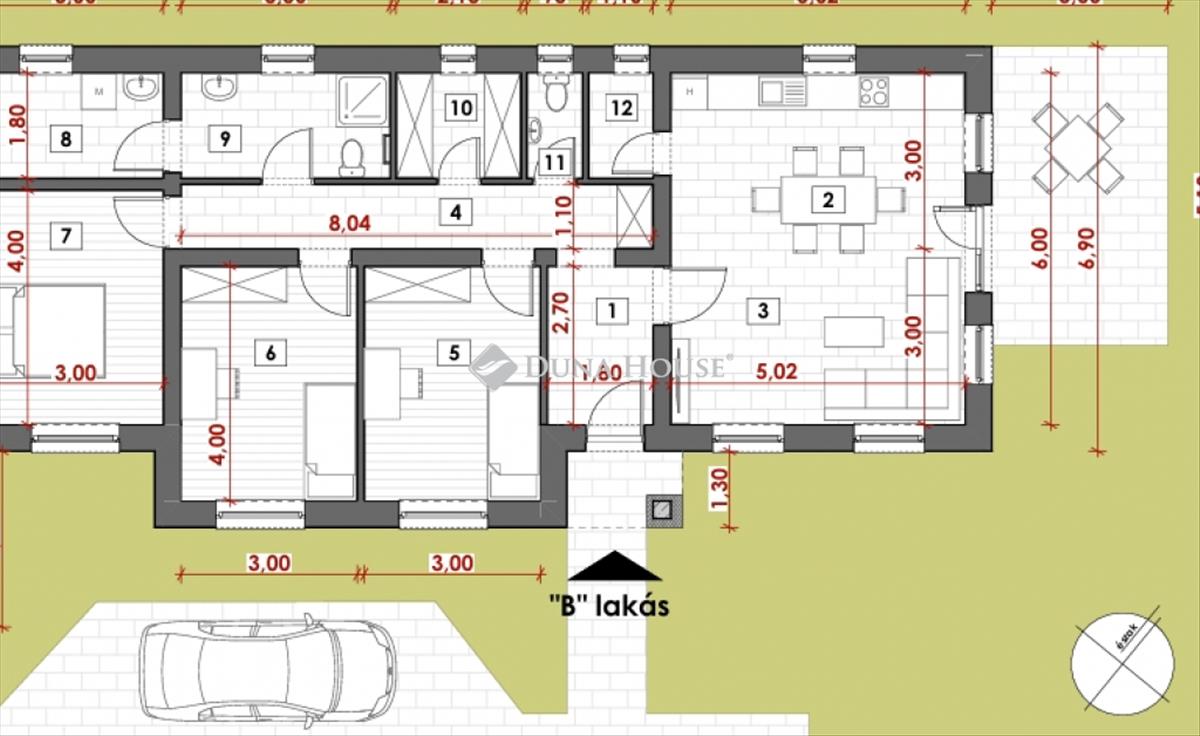
Nyáregyháza központi részén kínálom megvételre ezt a 99 nm alapterületű ikerházfelet.
Műszaki leírás :
-Beton alap
-30-as Leier tégla
-15 cm hungarocell szigetelés
-Drapp színű nemes vakolat homlokzati záró réteg
-Bramac tetőcserép ( barna szinben )
-3 rétegű egy színű ablakok
-Hőszivattyús fűtésrendszer ( padlón keresztül történő hőleadással )
-1 db hűtő-fűtő klíma ( nappaliban )
- Napelemes rendszer előkészítése ( napelemek nélkül )
Hideg- Meleg burkolatok 6000 Ft / nm árban választhatóak
-Szaniterek, beltéri ajtók és lámpatestek az árban.
Várható átadás : 2026. 08. Hó
Megtekintéskor a teljes műszaki tartalmat prezentálom!
Amennyiben hirdetésem felkeltette érdeklődését várom megtisztelő hívását a hét bármely napján.
Turcsanyi Istvan +36302633889 FIX 3% lakáshitelre megvehető
Tetszett ez az eladó Nyáregyházai új építésű 4 szobás ikerház? Hívd fel a hirdetőt most, és tudj meg mindent erről az eladó ikerházról! Ha gondolod nézelődj tovább az eladó ház Nyáregyháza oldal hirdetései között. Ennek az eladó háznak az ára 79900000 Ft és mivel az alapterülete 90 négyzetméter, ezért az átlagos négyzetméterára 887778 HUF/m2.
Az eladó házak menüpontban további hirdetések között is böngészhetsz. Ha van kedved, akkor böngészhetsz a Turcsányi István összes hirdetése között, vagy akár a/az Duna House Home Center összes hirdetése között is.

