Eladó új építésű ház - Nyíregyháza
- INGYENES HIRDETÉS FELADÁS
Ingatlan adatai
- Eladó vagy kiadó:Eladó
- Település:Nyíregyháza
- Kategória:Ház
- Alkategória:Ikerház
- Alapterület:133 m2
- Telekterület:525 m2
- Csere is:Nem
- Hirdető:Cég
- Élő videón megtekinthető:Nem
- Építés éve:2025
- Szobaszám:3
- Állapot:Új építésű
- Hány szintes az ingatlan:Földszintes
- Tetőtér:nincs megadva
- Komfortosság:nincs megadva
- Pince:nincs megadva
- Parkolási lehetőség:Teremgarázsban
- Fűtés:Hőszivattyús
- Bútorozottság:nincs megadva
- Fényviszony:Napfényes
- Tájolás:nincs megadva
- Kilátás:nincs megadva
- Internet:nincs megadva
- Klíma:nincs megadva
- Akadálymentesített:nincs megadva
- Energiatanúsítvány:nincs megadva
- Villany:Telken belül
- Víz:Telken belül
- Gáz:Telken belül
- Csatorna:nincs megadva
- Kapcsolatfelvétel

Nádasdi Bence
+36-(20)-451-6275
Mondd meg a hirdetőnek, hogy a megveszLAK-on találtad a hirdetést.
Referencia szám: M300745
Hitel ajánlatok
Ingatlan hirdetés leírása
Eladó Ház, Nyíregyháza
Prémium ikerházak Oros legkedveltebb részén! Hőszivattyús, 3 hálószobás új építésű otthonok!
Nyíregyháza-Oros családok által leginkább keresett, nyugodt részén prémium minőségű, 133 nm alapterületű, új építésű ikerházak eladók! Ha kompromisszummentes, modern és energiatakarékos otthont keres, amelyet a saját ízlésére formálhat, ezt a projektet érdemes megismernie.
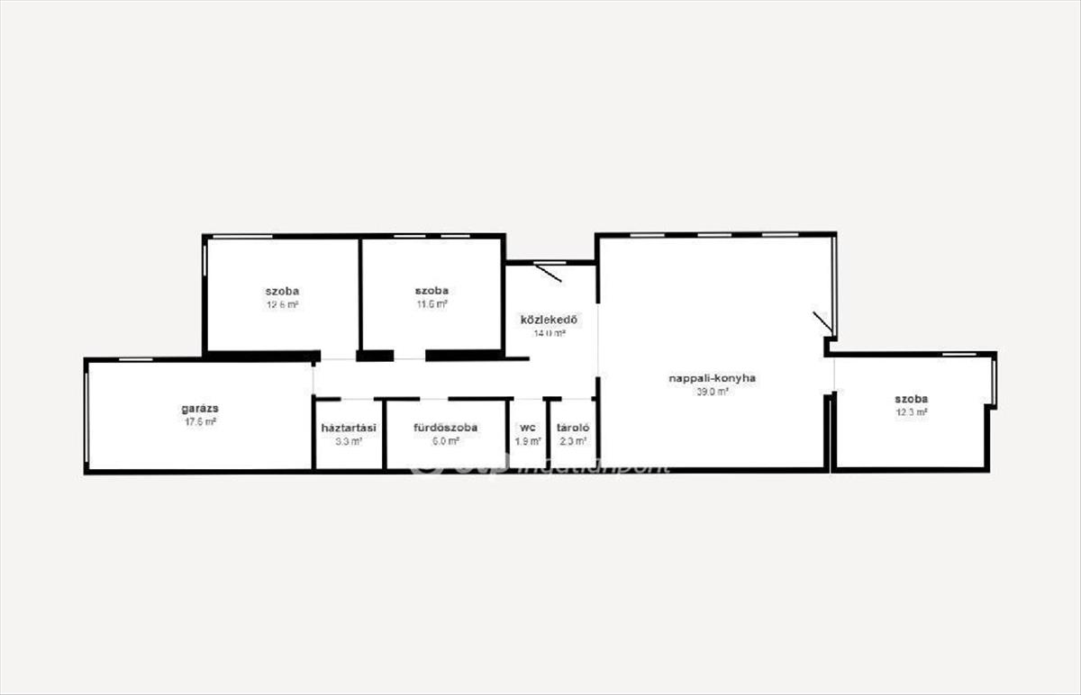
A ház elosztása (133 nm a maximális kényelemért):
Közösségi terek: Tágas amerikai konyhás nappali, amelyhez egy kellemes terasz csatlakozik. a konyhai rend fenntartását egy praktikus kamra segíti.
Privát szféra: 3 külön nyíló hálószoba garantálja a család minden tagjának a zavartalan pihenést.
Kiszolgáló helyiségek: Fürdőszoba, különálló wc, valamint egy mosókonyha, ami hatalmas segítség a mindennapokban.
Parkolás: Az ingatlanhoz egy elektromos kapuval felszerelt, zárt garázs is tartozik.
KIVÁLÓ műszaki tartalom és HANGSZIGETELÉS:
Szerkezet és intimitás: 30-as Porotherm tégla falazat, tekintélyes 15 cm-es külső hőszigeteléssel. a szomszédos lakótér felé kifejezetten hanggátló téglát építettek be, így a társasházi áthallás itt nem létező fogalom!
Fűtés és energia: a fűtést modern és energiatakarékos hőszivattyú biztosítja padlófűtéssel kombinálva. a nyeregtető dőlésszöge és kialakítása napelemek elhelyezésére is tökéletesen előkészített.
Elegáns, letisztult dizájn: a ház külső megjelenése a modern harmóniát tükrözi az antracit tetővel, valamint a hófehér nyílászárókkal és falakkal.
SZABJA saját ízlésére! (Jelenleg 70%-os készültség):
Az építkezés kiváló ütemben halad, a kulcsrakész átadás a szerződéskötéstől számítva mindössze kb. 3 Hónapot vesz igénybe. Mivel a belső burkolatok kiválasztása még hátravan, az otthona színvilága és stílusa teljesen az Ön döntése lesz! (A hirdetésben szereplő belső képek lakberendező által készített prémium illusztrációk). Az átadás idejére az utca aszfaltozása is megtörténik.
FINANSZÍROZÁS és ÜGYINTÉZÉS:
OTP Banki hátterünknek köszönhetően finanszírozási igényekben (pl. Babaváró, Falusi csok, CSOK Plusz, Lakáshitel, Személyi kölcsön stb. ), Illetve biztosítások tekintetében is díjmentesen, soron kívüli ügyintézéssel segítjük ügyfeleinket!
A teljes tervdokumentáció és a bővebb műszaki leírás irodánkban személyesen is megtekinthető. Az ingatlan előre egyeztetett időpontban bejárható, hívjon bizalommal a részletekért!
Referenciaszám: m300745 FIX 3% lakáshitelre megvehető
Tetszett ez az eladó Nyíregyházai új építésű 3 szobás ikerház? Hívd fel a hirdetőt most, és tudj meg mindent erről az eladó ikerházról! Ha gondolod nézelődj tovább az eladó ház Nyíregyháza oldal hirdetései között. Ennek az eladó háznak az ára 80000000 Ft és mivel az alapterülete 133 négyzetméter, ezért az átlagos négyzetméterára 601504 HUF/m2.
Az eladó házak menüpontban további hirdetések között is böngészhetsz. Ha van kedved, akkor böngészhetsz a Nádasdi Bence összes hirdetése között, vagy akár a/az OTPip Nyíregyháza Sólyom utca 4 - OTP Ingatlanpont Iroda összes hirdetése között is.

