Eladó új építésű ház - Nyíregyháza
- INGYENES HIRDETÉS FELADÁS
Ingatlan adatai
- Eladó vagy kiadó:Eladó
- Település:Nyíregyháza
- Kategória:Ház
- Alkategória:Ikerház
- Alapterület:93 m2
- Telekterület:550 m2
- Csere is:Nem
- Hirdető:Cég
- Élő videón megtekinthető:Nem
- Építés éve:2026
- Szobaszám:4
- Állapot:Új építésű
- Hány szintes az ingatlan:Földszintes
- Tetőtér:nincs megadva
- Komfortosság:nincs megadva
- Pince:Nincs
- Parkolási lehetőség:Garázsban
- Fűtés:nincs megadva
- Bútorozottság:nincs megadva
- Fényviszony:nincs megadva
- Tájolás:D
- Kilátás:nincs megadva
- Internet:nincs megadva
- Klíma:nincs megadva
- Akadálymentesített:nincs megadva
- Energiatanúsítvány:nincs megadva
- Villany:Van
- Víz:Van
- Gáz:Van
- Csatorna:Van
- Kapcsolatfelvétel

Zborayné Barkaszi Anikó
+36-(30)-536-4371
Mondd meg a hirdetőnek, hogy a megveszLAK-on találtad a hirdetést.
Hitel ajánlatok
Ingatlan hirdetés leírása
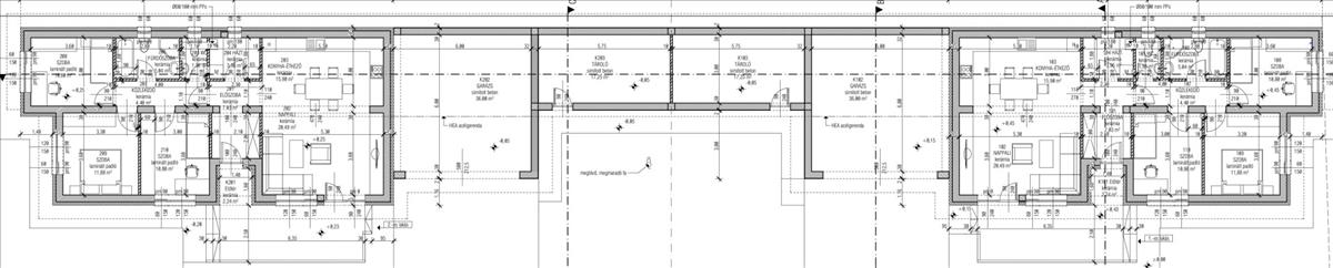
Már 2026 nyarán költözhet!
Nyírszőlős fejlődő, kertvárosias részén dupla garázsos ikerház eladó!
- Tégla építésű, 30-as porotherm tégla, szigetelt
- fekete antracit tető
- 93 m2-s lakótér: amerikai konyhás nappali, 3 hálószoba, fürdő-WC, külön wc, háztartási helyiség
- 550m2-s telek
- 36m2-s, dupla garázs, itt is wc
- 17m2- tároló
- tágas terasz a bejárattól a garázsig
- műanyag nyílászárók, elektromos redőny előkészítve
- kondenzációs kazán, padlófűtés
- energetikai besorolás BB
- választható beltéri burkolatok, egyedi igények megbeszélés tárgyát képezik
mindennapi nyugalom, mégis könnyen megközelíthető a belváros.
Miért különleges?
- Modern, letisztult építészet
- Tágas, világos terek
. - Nagy terasz a családi élet központja
- Két autó számára garázs, praktikus tároló
- Saját magánút, parkosított környezet
- Csendes, fejlődő kertvárosi rész
- Belváros percek alatt
- a két ikerrészt nem csak a garázs, hanem egy-egy tároló is elválasztja
Kinek ajánlom?
- Akik nem akarnak a költözéssel télig várni
- Családoknak, akik nyugalmat keresnek
- Pároknak, akik modern otthonra vágynak
- Befektetőknek, akik értéktartó ingatlant keresnek
Bővebb információért, teljes körű, ingyenes, bankfüggetlen ügyintézéssel várom hívását! FIX 3% lakáshitelre megvehető
Tetszett ez az eladó Nyíregyházai új építésű 4 szobás ikerház? Hívd fel a hirdetőt most, és tudj meg mindent erről az eladó ikerházról! Ha gondolod nézelődj tovább az eladó ház Nyíregyháza oldal hirdetései között. Ennek az eladó háznak az ára 80900000 Ft és mivel az alapterülete 93 négyzetméter, ezért az átlagos négyzetméterára 869892 HUF/m2.
Az eladó házak menüpontban további hirdetések között is böngészhetsz. Ha van kedved, akkor böngészhetsz a Zborayné Barkaszi Anikó összes hirdetése között, vagy akár a/az Elements Group összes hirdetése között is.

