Eladó új építésű ház - Nyíregyháza
- INGYENES HIRDETÉS FELADÁS
Ingatlan adatai
- Eladó vagy kiadó:Eladó
- Település:Nyíregyháza
- Kategória:Ház
- Alkategória:Ikerház
- Alapterület:150 m2
- Telekterület:920 m2
- Csere is:Nem
- Hirdető:Cég
- Élő videón megtekinthető:Nem
- Építés éve:2026
- Szobaszám:4
- Állapot:Új építésű
- Hány szintes az ingatlan:nincs megadva
- Tetőtér:nincs megadva
- Komfortosság:nincs megadva
- Pince:nincs megadva
- Parkolási lehetőség:nincs megadva
- Fűtés:nincs megadva
- Bútorozottság:nincs megadva
- Fényviszony:nincs megadva
- Tájolás:nincs megadva
- Kilátás:nincs megadva
- Internet:nincs megadva
- Klíma:nincs megadva
- Akadálymentesített:nincs megadva
- Energiatanúsítvány:nincs megadva
- Villany:nincs megadva
- Víz:nincs megadva
- Gáz:nincs megadva
- Csatorna:nincs megadva
- Kapcsolatfelvétel

Balla Anett
+36303397954
Mondd meg a hirdetőnek, hogy a megveszLAK-on találtad a hirdetést.
Hitel ajánlatok
Ingatlan hirdetés leírása
Eladó ikerház Nyíregyházán, Nyírszőlősön – garázzsal Nyíregyhá...
Eladó ikerház Nyíregyházán, Nyírszőlősön – garázzsal
Nyíregyháza kedvelt kertvárosi részén, Nyírszőlősön kínálunk megvételre egy igényesen kialakított ikerházat, kiváló belső elrendezéssel és garázzsal.
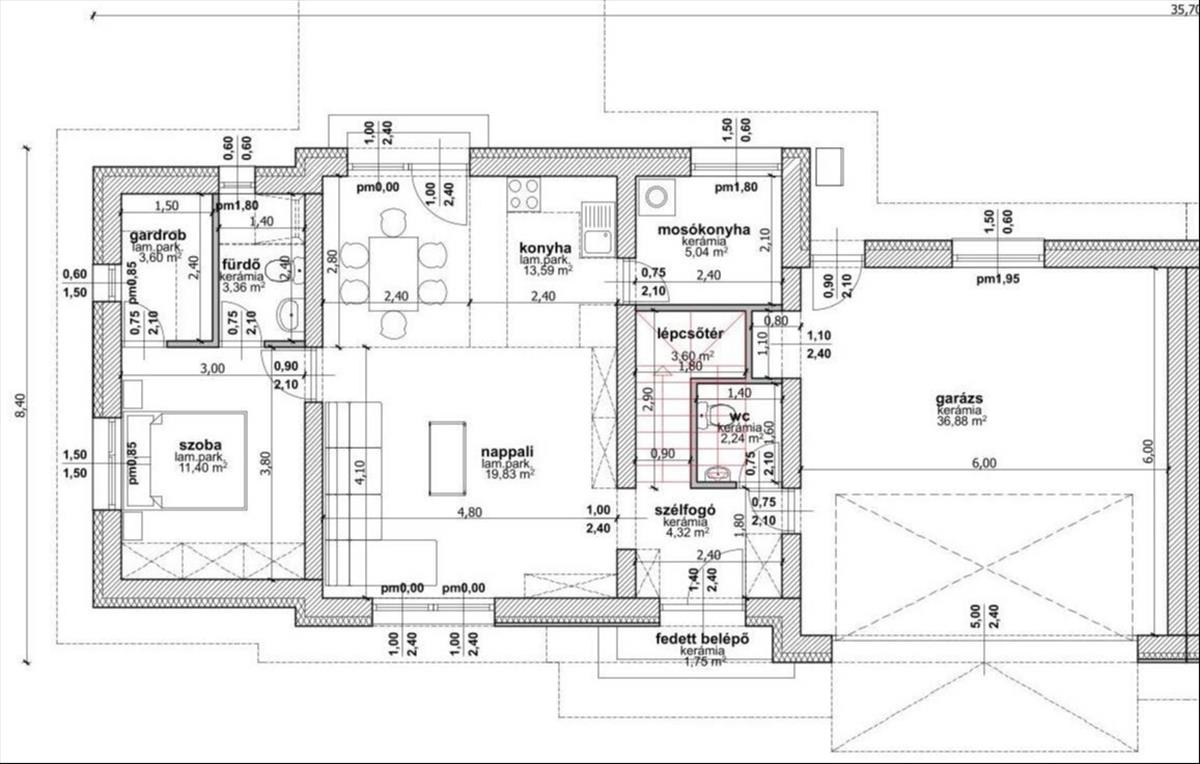
Az ingatlan elosztása:
Földszint:
•tágas nappali
•konyha
•külön mosókonyha
•hálószoba saját gardróbbal
•fürdőszoba
•közvetlen kapcsolattal rendelkező garázs
Emelet:
•két külön nyíló szoba, mindkettő gardróbbal
•fürdőszoba
•külön WC
Az átgondolt alaprajz ( melyeket a galériában megtekinthet) ideális családok számára, a gardróbok és külön helyiségek pedig kényelmes, jól szervezhető életteret biztosítanak.
A hirdetésben látható képek illusztrációk, a lakás építés alatt áll, a végleges kialakítás a műszaki tartalom szerint készül el.
Irányár: 125. 000. 000 Ft
Nyugodt környezet, jó megközelíthetőség, praktikus elrendezés – kiváló választás saját otthonnak vagy értékálló befektetésnek. FIX 3% lakáshitelre megvehető
Tetszett ez az eladó Nyíregyházai új építésű 4 szobás ikerház? Hívd fel a hirdetőt most, és tudj meg mindent erről az eladó ikerházról! Ha gondolod nézelődj tovább az eladó ház Nyíregyháza oldal hirdetései között. Ennek az eladó háznak az ára 125000000 Ft és mivel az alapterülete 150 négyzetméter, ezért az átlagos négyzetméterára 833333 HUF/m2.
Az eladó házak menüpontban további hirdetések között is böngészhetsz. Ha van kedved, akkor böngészhetsz a Balla Anett összes hirdetése között.

