Eladó új építésű ház - Nyíregyháza
- INGYENES HIRDETÉS FELADÁS
Ingatlan adatai
- Eladó vagy kiadó:Eladó
- Település:Nyíregyháza
- Kategória:Ház
- Alkategória:Ikerház
- Alapterület:100 m2
- Telekterület:430 m2
- Csere is:Nem
- Hirdető:Cég
- Élő videón megtekinthető:Nem
- Építés éve:2026
- Szobaszám:2
- Állapot:Új építésű
- Hány szintes az ingatlan:nincs megadva
- Tetőtér:nincs megadva
- Komfortosság:nincs megadva
- Pince:nincs megadva
- Parkolási lehetőség:nincs megadva
- Fűtés:nincs megadva
- Bútorozottság:nincs megadva
- Fényviszony:nincs megadva
- Tájolás:nincs megadva
- Kilátás:nincs megadva
- Internet:nincs megadva
- Klíma:nincs megadva
- Akadálymentesített:nincs megadva
- Energiatanúsítvány:nincs megadva
- Villany:nincs megadva
- Víz:nincs megadva
- Gáz:nincs megadva
- Csatorna:nincs megadva
- Kapcsolatfelvétel

Kovács-Francesco Ádám
+36302719020
Mondd meg a hirdetőnek, hogy a megveszLAK-on találtad a hirdetést.
Hitel ajánlatok
Ingatlan hirdetés leírása
Árcsökkenés!!! 82.999.000 helyett 79.999.000 Az akció az első ...
Árcsökkenés! ! !
82. 999. 000 Helyett 79. 999. 000
Az akció az első ingatlanra érvényes!
Nyíregyháza – Báthory lakópark
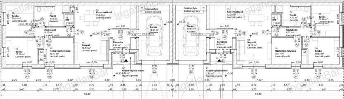
Új építésű, 105 m²-es ikerház 435 m²-es telekkel, garázzsal – 2026. Augusztusi átadással! Eladásra kínálunk Nyíregyháza egyik legkedveltebb, folyamatosan fejlődő részén, a Báthory lakóparkban egy modern, energiatakarékos, 100 m²-es ikerházat, amely egy 435 m²-es, ideális méretű telekkel rendelkezik. Főbb jellemzők: H-tarifa, cserép tető, 105 m² lakótér 3 kényelmes hálószobaTágas nappali – konyha – étkező egyben, világos terekkelKülön WCSaját, önálló garázsAz ikerház csak a garázsnál érintkezik, így szinte teljesen önálló családi ház érzetét nyújtjaPadlófűtés minden helyiségbenHőszivattyús fűtés-hűtésMinőségi nyílászárók és modern, energiatakarékos műszaki megoldásokTervezett átadás: 2026. AugusztusAz ingatlan elhelyezkedése kiváló: csendes, családbarát környezet, új építésű házakkal, jó infrastruktúrával és könnyű megközelíthetőséggel. Ideális választás családoknak vagy azoknak, akik modern, alacsony rezsijű otthont keresnek egy nyugodt, biztonságos környéken. Kovács-Francesco Ádám0630/271-9020IngatlanBár FIX 3% lakáshitelre megvehető
Tetszett ez az eladó Nyíregyházai új építésű 2 szobás ikerház? Hívd fel a hirdetőt most, és tudj meg mindent erről az eladó ikerházról! Ha gondolod nézelődj tovább az eladó ház Nyíregyháza oldal hirdetései között. Ennek az eladó háznak az ára 79999000 Ft és mivel az alapterülete 100 négyzetméter, ezért az átlagos négyzetméterára 799990 HUF/m2.
Az eladó házak menüpontban további hirdetések között is böngészhetsz. Ha van kedved, akkor böngészhetsz a Kovács-Francesco Ádám összes hirdetése között, vagy akár a/az IngatlanBár Nyíregyháza összes hirdetése között is.

